À¾¿´ºØ¶¶¤Ç¿·µ¬µ¯¶È¤¤¤«¤¬
13.42ËüËü±ß
¡Ê¶¦¡§27,500±ß¡Ë
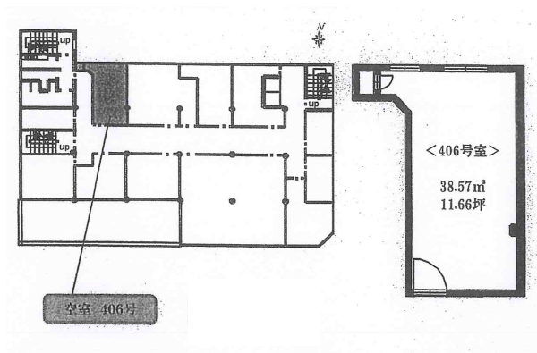
11.28ÄÚ
¡ÊÀì¡§37.29㎡¡Ë
Âçºå»ÔÃæ±û¶èÀ¾¿´ºØ¶¶1ÃúÌÜ
¡¦
¿´ºØ¶¶±Ø ÅÌÊâ2ʬ
Âçºå¥á¥È¥í¸æÆ²¶ÚÀþ¡Ú¿´ºØ¶¶±Ø¡ÛÅÌÊâ2ʬ¸æÆ²¶Ú¤â¤¹¤°¤½¤³¡¢Ä¹ËÙÄ̤ê¤ËÌ̤¹¤ëΩÃÏ 1983ǯÃۡʶ¦ÍÑÉôÂ絬ÌϲþÁõºÑ¤ß¡ËÅ´¹üÅ´¶Ú¥³¥ó¥¯¥ê¡¼¥È¤ÃϾå10³¬Ãϲ¼1³¬ Ìó37.29ÖÌó11.2..


























