À¾¿´ºØ¶¶¤Ç¿·µ¬µ¯¶È¤¤¤«¤¬
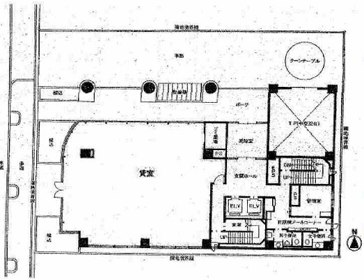
Âçºå¥á¥È¥í¸æÆ²¶ÚÀþ¡Ú¿´ºØ¶¶±Ø¡ÛÅÌÊâ2ʬ¸æÆ²¶Ú¤â¤¹¤°¤½¤³¡¢Ä¹ËÙÄ̤ê¤ËÌ̤¹¤ëΩÃÏ 1983ǯÃۡʶ¦ÍÑÉôÂ絬ÌϲþÁõºÑ¤ß¡ËÅ´¹üÅ´¶Ú¥³¥ó¥¯¥ê¡¼¥È¤ÃϾå10³¬Ãϲ¼1³¬ Ìó37.29ÖÌó11.2..

ŹÊÞʪ·ï¡¢µïÈ´¤Å¹ÊÞ¡¢¥Æ¥Ê¥ó¥Èʪ·ï¤òõ¤¹¤Ê¤é
Âçºå¤ÎÂߏÊÞ¾ðÊó¥µ¥¤¥ÈÂߏÊޥʥӤǡª
·ÇºÜ¿ô¡§821·ï ¡¿ ¿·Ã塦¹¹¿·¿ô¡§0·ï
2026ǯ05·î02Æü¸½ºß
Âçºå¥á¥È¥í¸æÆ²¶ÚÀþ¡Ú¿´ºØ¶¶±Ø¡ÛÅÌÊâ2ʬ¸æÆ²¶Ú¤â¤¹¤°¤½¤³¡¢Ä¹ËÙÄ̤ê¤ËÌ̤¹¤ëΩÃÏ 1983ǯÃۡʶ¦ÍÑÉôÂ絬ÌϲþÁõºÑ¤ß¡ËÅ´¹üÅ´¶Ú¥³¥ó¥¯¥ê¡¼¥È¤ÃϾå10³¬Ãϲ¼1³¬ Ìó37.29ÖÌó11.2..
Ãæ±û¶è¤Î¿Íµ¤¥ê¥Î¥Ù¡¼¥·¥ç¥ó¥·¥ê¡¼¥º¤Ë ¶õ¼¼¤¬½Ð¤Þ¤·¤¿¡£Âçºå¥á¥È¥í¸æÆ²¶ÚÀþ¡ÚÍä²°¶¶±Ø¡ÛÅÌÊâ5ʬÂçºå¥á¥È¥í»Í¤Ä¶¶Àþ¡ÚÈî¸å¶¶±Ø¡ÛÅÌÊâ4ʬËÜÄ®¤Ë¤â¥¢¥¯¥»¥¹Îɹ¥¤Ê¥Ó¥¸¥Í¥¹¤Ë¤âºÇŬ¤ÊΩÃÏ »Í¥Ä¶¶¶Ú¡¢¸æÆ²..
À¾¶è¤ÎÃæ¤Ç¤â¿Íµ¤¤Î¹â¤¤¡ÚµþÄ®ËÙ1ÃúÌÜ¡Û1Åï¥Õ¥ë¥ê¥Î¥Ù¡¼¥·¥ç¥óʪ·ï¤Î4³¬¶è²è¤ËÊ罸¤¬½Ð¤Þ¤·¤¿¡£ µþÄ®ËÙ¥¨¥ê¥¢¤ÎÃæ¤Ç¤â¿Íµ¤¤Î¥«¥Õ¥§¤ä°û¿©Å¹¤¬½¸¤Þ¤ë°ì³ÑÅ´¹ü¤5³¬·ú¤Æ &nb..
Ãæ±û¶è¤Î¥Ó¥¸¥Í¥¹¥¨¥ê¥¢¤ÎÃæ¿´ÃÏËÜÄ®¤Ë¿Íµ¤¤Î¥ê¥Î¥Ù¡¼¥·¥ç¥ó¥ª¥Õ¥£¥¹¤¬Ê罸³«»Ï Å´¶Ú¥³¥ó¥¯¥ê¡¼¥È¤ÃϾå9³¬·ú¡¢Ãϲ¼1³¬Áí¸Í¿ô29¸Í2026ǯ4·îƲ¡¹¤Î¥ê¥Î¥Ù¡¼¥·¥ç¥ó´°Î»¥Ï¥¤¥»¥ó¥¹¤Ê¶¦ÍÉôʬ¤Ï2³¬..
Åö¥µ¥¤¥È¤Îʪ·ï¼è¤ê°·¤¤Å¹ÊޤǤ¹¡£