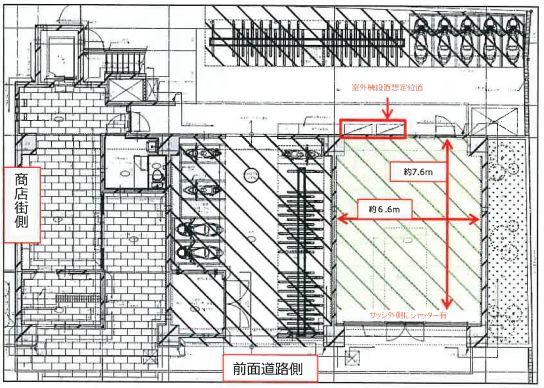
1³¬Ï©ÌÌŹÊÞ¡÷ºàÌÚÄ®
Ãæ±û¶èºàÌÚÄ®2026ǯ3·îÃۤο·ÃÛʪ·ï¤Ë1³¬Ï©Ì̶è²èÊ罸¤¬½Ð¤Æ¤ª¤ê¤Þ¤¹¡£¾¾²°Ä®¶Ú¤ËÌ̤·¤Æ¤ª¤ê´Ö¸ý¤â¹¤¯»ëǧÀ¤Î¹â¤¤¤Ç¤¹¡£93.83ÖÌó28.38ÄÚ¤ª¹¥¤ß¤ÎÆâÁõ¤òºî¤ê¤³¤á¤ë¥¹¥±¥ë¥È¥ó¾õÂÖ¡£ÈþÍÆ¼¼¤äÀ°Âα¢..

ŹÊÞʪ·ï¡¢µïÈ´¤Å¹ÊÞ¡¢¥Æ¥Ê¥ó¥Èʪ·ï¤òõ¤¹¤Ê¤é
Âçºå¤ÎÂߏÊÞ¾ðÊó¥µ¥¤¥ÈÂߏÊޥʥӤǡª
·ÇºÜ¿ô¡§821·ï ¡¿ ¿·Ã塦¹¹¿·¿ô¡§0·ï
2026ǯ05·î03Æü¸½ºß
Ãæ±û¶èºàÌÚÄ®2026ǯ3·îÃۤο·ÃÛʪ·ï¤Ë1³¬Ï©Ì̶è²èÊ罸¤¬½Ð¤Æ¤ª¤ê¤Þ¤¹¡£¾¾²°Ä®¶Ú¤ËÌ̤·¤Æ¤ª¤ê´Ö¸ý¤â¹¤¯»ëǧÀ¤Î¹â¤¤¤Ç¤¹¡£93.83ÖÌó28.38ÄÚ¤ª¹¥¤ß¤ÎÆâÁõ¤òºî¤ê¤³¤á¤ë¥¹¥±¥ë¥È¥ó¾õÂÖ¡£ÈþÍÆ¼¼¤äÀ°Âα¢..
¥Ó¥¸¥Í¥¹¤È¥«¥ë¥Á¥ã¡¼¤¬Äø¤è¤¯º®¤¶¤ë¥¨¥ê¥¢¡£Æî¿¹Ä®¥¨¥ê¥¢¤è¤ê1³¬Ï©Ì̤ξ®µ¬ÌÏŹÊÞ¤¬Ê罸½Ð¤Þ¤·¤¿ËÙÀ¿À¼Ò¶á¤¯¤ÎÏ©Ì̶è²è¥ì¥È¥í¤Ê³°´Ñ¤¬Ìܤò°ú¤¯Å´¹ü¤3³¬·ú¤ÆÂçºå¥á¥È¥íëĮÀþ¡ÚÆî¿¹Ä®±Ø¡ÛÅÌÊâ7ʬ¤ÎΩÃϵサ¥¨..
º£²ó¤Ï¡¢ÂçºåÉܺæ»Ôºæ¶èÂçÄ®Åì¤Ë°ÌÃÖ¤¹¤ëÌ¥ÎÏŪ¤ÊÂߏÊÞ¤ò¤´¾Ò²ð¤·¤Þ¤¹¡£ºåºæÀþ¡Ö½É±¡±Ø¡×¤«¤éÅÌÊâ1ʬ¡¢¤µ¤é¤ËÆî³¤ËÜÀþ¡Öºæ±Ø¡×¤«¤é¤âÅÌÊâ10ʬ¤È¤¤¤¦¹¥Î©ÃϤǡ¢½¸µÒÎϤι⤤¥¨¥ê¥¢¤Ë°ÌÃÖ¤·¤Æ¤¤¤Þ¤¹¡£ËÜʪ·ï¤Ï1³¬..
Âçºå»ÔÀ¾¶è¹¾¸ÍËÙ3ÃúÌܤè¤ê»ëǧÀ¤ÎÎɤ¤¡¢Ï©ÌÌŹÊÞ»ö̳½ê¤ÎÊ罸¤¬½Ð¤Þ¤·¤¿¡£ ÅÚº´ËÙÄ̤ê¤ËÌ̤¹¤ë1997ǯÃÛ¤ÎÅ´¹üÅ´¶Ú¥³¥ó¥¯¥ê¡¼¥È¤Âçºå¥á¥È¥íÃæ±ûÀþ/ÀéÆüÁ°Àþ¡Ú°¤ÇȺ±ءÛÅÌÊâ8ʬ¥·¥ã¥Ã¥¿¡¼ÉÕ¤¤Î..
Âçºå»ÔÀ¾¶è¿·Ä®2ÃúÌܤ˰ÌÃÖ¤¹¤ë¡¢Ì¥ÎÏŪ¤Ê°ìÅïÂߤ·Å¹ÊÞʪ·ï¤Î¤´¾Ò²ð¤Ç¤¹¡£Ä¹ËÙÄḫÎÐÃÏÀþ¡ÖÀ¾Âç¶¶¡×±Ø¤«¤éÅÌÊâÌó3ʬ¤È¤¤¤¦¹¥Î©ÃϤˤ¢¤ê¡¢½¸µÒÎϤò½Å»ë¤µ¤ì¤ë»ö¶È¼ÔÍͤˤԤ俤ê¤Îʪ·ï¤Ç¤¹¡£¼þÊդϥª¥Õ¥£¥¹¤ä½»Âð¤¬..
Âçºå»ÔÀ¾¶èËÜÄ®¥¨¥ê¥¢¤Ç¡¢¥¢¥¯¥»¥¹¤ÎÎɤ¤Å¹ÊÞ¡¦»ö̳½êʪ·ï¤ò¤ªÃµ¤·¤ÎÊý¤Ë¤ª¤¹¤¹¤á¤ÎÄÂÂß¾ðÊó¤ò¤´¾Ò²ð¤·¤Þ¤¹¡£Ãϲ¼Å´»Í¤Ä¶¶Àþ¡ÖËÜÄ®±Ø¡×¤«¤éÅÌÊâÌó3ʬ¤È¤¤¤¦Èó¾ï¤ËÊØÍø¤ÊΩÃϤˤ¢¤ê¤Þ¤¹¡£¼þÊդˤϥª¥Õ¥£¥¹¥Ó¥ë¤¬Â¿¤¯..
Âçºå»ÔÀ¾¶è¹¾¸ÍËÙ¥¨¥ê¥¢¤Ë¡¢»ëǧÀ¤Î¹â¤¤´õ¾¯¤Ê1³¬Ï©ÌÌŹÊÞ¡Ö¥í¥¤¥ä¥ë¥Ó¥ëµ¡×¤ÎÊ罸¤¬³«»Ï¤·¤Þ¤·¤¿¡£Ãϲ¼Å´³ÆÀþ¡Ö°¤ÇȺ¡ױؤ«¤éÅÌÊâ8ʬ¤È¤¤¤¦¥¢¥¯¥»¥¹¤ÎÎɤ¤Î©ÃϤˤ¢¤ê¡¢¥ª¥Õ¥£¥¹³¹¤È½»Â𥨥ꥢ¤¬º®ºß¤¹¤ë³èµ¤¤Î..
º£²ó¤Ï¡¢Âçºå»ÔÀ¾¶èÀéÂåºê¤Ë°ÌÃÖ¤¹¤ëŹÊÞʪ·ï¡Ö¥µ¥ó¥é¥¤¥ºÀéÂåºê¡×¤ò¤´¾Ò²ð¤¤¤¿¤·¤Þ¤¹¡£¸½ºß¡¢´ü´Ö¸ÂÄê¤ÎÄÂÎÁ¥À¥¦¥ó¥¥ã¥ó¥Ú¡¼¥ó¤ò¼Â»Ü¤·¤Æ¤ª¤ê¡¢Ä̾ïÄÂÎÁ330,000±ß¡ÊÀǹþ¡Ë¤Î¤È¤³¤í¡¢297,000±ß¡ÊÀǹþ..
Åö¥µ¥¤¥È¤Îʪ·ï¼è¤ê°·¤¤Å¹ÊޤǤ¹¡£