ǯËöǯ»Ï±Ä¶È¤Î¤ªÃΤ餻

Open

- MENU -

 
¸¡º÷¥á¥Ë¥å¡¼

¥«¥Æ¥´¥ê¤«¤éõ¤¹

1³¬Ï©ÌÌŹÊÞ¡÷ºàÌÚÄ®

55ËüËü±ß ¡Ê¶¦¡§-¡Ë
28.38ÄÚ ¡ÊÀì¡§93.83㎡¡Ë
Âçºå»ÔÃæ±û¶èºàÌÚÄ® ¡¦ ºæ¶ÚËÜÄ®±Ø ÅÌÊâ7ʬ

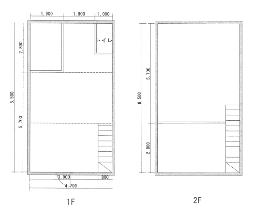
Ãæ±û¶èºàÌÚÄ®2026ǯ3·îÃۤο·ÃÛʪ·ï¤Ë1³¬Ï©Ì̶è²èÊ罸¤¬½Ð¤Æ¤ª¤ê¤Þ¤¹¡£¾¾²°Ä®¶Ú¤ËÌ̤·¤Æ¤ª¤ê´Ö¸ý¤â¹­¤¯»ëǧÀ­¤Î¹â¤¤¤Ç¤¹¡£93.83­ÖÌó28.38ÄÚ¤ª¹¥¤ß¤ÎÆâÁõ¤òºî¤ê¤³¤á¤ë¥¹¥±¥ë¥È¥ó¾õÂÖ¡£ÈþÍÆ¼¼¤äÀ°Âα¢..

Ë̶èÌîºêĮϩÌÌŹÊÞ

13.2ËüËü±ß ¡Ê¶¦¡§0±ß¡Ë
6.65ÄÚ ¡ÊÀì¡§22㎡¡Ë
Âçºå»ÔË̶èÌîºêÄ® ¡¦ Æî¿¹Ä®±Ø ÅÌÊâ7ʬ

¥Ó¥¸¥Í¥¹¤È¥«¥ë¥Á¥ã¡¼¤¬Äø¤è¤¯º®¤¶¤ë¥¨¥ê¥¢¡£Æî¿¹Ä®¥¨¥ê¥¢¤è¤ê1³¬Ï©Ì̤ξ®µ¬ÌÏŹÊÞ¤¬Ê罸½Ð¤Þ¤·¤¿ËÙÀ¿À¼Ò¶á¤¯¤ÎÏ©Ì̶è²è¥ì¥È¥í¤Ê³°´Ñ¤¬Ìܤò°ú¤¯Å´¹ü¤3³¬·ú¤ÆÂçºå¥á¥È¥íëĮÀþ¡ÚÆî¿¹Ä®±Ø¡ÛÅÌÊâ7ʬ¤ÎΩÃϵサ¥¨..

±Ø¶á1ʬ¡ªºæ»Ô¤ÎÏ¿©µïÈ´¤­Å¹ÊÞ

39.93ËüËü±ß ¡Ê¶¦¡§33,000±ß¡Ë
132.7ÄÚ ¡ÊÀì¡§438.67㎡¡Ë
ºæ»Ôºæ¶èÂçÄ®Åì1ÃúÌÜ ¡¦ ºæ±Ø ÅÌÊâ10ʬ

º£²ó¤Ï¡¢ÂçºåÉܺæ»Ôºæ¶èÂçÄ®Åì¤Ë°ÌÃÖ¤¹¤ëÌ¥ÎÏŪ¤ÊÂߏÊÞ¤ò¤´¾Ò²ð¤·¤Þ¤¹¡£ºåºæÀþ¡Ö½É±¡±Ø¡×¤«¤éÅÌÊâ1ʬ¡¢¤µ¤é¤ËÆî³¤ËÜÀþ¡Öºæ±Ø¡×¤«¤é¤âÅÌÊâ10ʬ¤È¤¤¤¦¹¥Î©ÃϤǡ¢½¸µÒÎϤι⤤¥¨¥ê¥¢¤Ë°ÌÃÖ¤·¤Æ¤¤¤Þ¤¹¡£ËÜʪ·ï¤Ï1³¬..

ÅÚº´ËÙÄ̤ê±è¤¤¡¢1³¬Ï©ÌÌ

26.4ËüËü±ß ¡Ê¶¦¡§-¡Ë
18.46ÄÚ ¡ÊÀì¡§61.04㎡¡Ë
Âçºå»ÔÀ¾¶è¹¾¸ÍËÙ3ÃúÌÜ ¡¦ °¤ÇÈºÂ±Ø ÅÌÊâ8ʬ

Âçºå»ÔÀ¾¶è¹¾¸ÍËÙ3ÃúÌܤè¤ê»ëǧÀ­¤ÎÎɤ¤¡¢Ï©ÌÌŹÊÞ»ö̳½ê¤ÎÊ罸¤¬½Ð¤Þ¤·¤¿¡£ ÅÚº´ËÙÄ̤ê¤ËÌ̤¹¤ë1997ǯÃÛ¤ÎÅ´¹üÅ´¶Ú¥³¥ó¥¯¥ê¡¼¥È¤Âçºå¥á¥È¥íÃæ±ûÀþ/ÀéÆüÁ°Àþ¡Ú°¤ÇȺ±ءÛÅÌÊâ8ʬ¥·¥ã¥Ã¥¿¡¼ÉÕ¤­¤Î..

¡ÚÂçºå¡¦¿·Ä®¥¨¥ê¥¢¡Û3³¬·ú¤Æ°ìÅïÂߏÊÞ

42ËüËü±ß ¡Ê¶¦¡§0±ß¡Ë
47.7ÄÚ ¡ÊÀì¡§157.71㎡¡Ë
Âçºå»ÔÀ¾¶è¿·Ä®2ÃúÌÜ ¡¦ À¾Âç¶¶±Ø ÅÌÊâ3ʬ

Âçºå»ÔÀ¾¶è¿·Ä®2ÃúÌܤ˰ÌÃÖ¤¹¤ë¡¢Ì¥ÎÏŪ¤Ê°ìÅïÂߤ·Å¹ÊÞʪ·ï¤Î¤´¾Ò²ð¤Ç¤¹¡£Ä¹ËÙÄḫÎÐÃÏÀþ¡ÖÀ¾Âç¶¶¡×±Ø¤«¤éÅÌÊâÌó3ʬ¤È¤¤¤¦¹¥Î©ÃϤˤ¢¤ê¡¢½¸µÒÎϤò½Å»ë¤µ¤ì¤ë»ö¶È¼ÔÍͤˤԤ俤ê¤Îʪ·ï¤Ç¤¹¡£¼þÊդϥª¥Õ¥£¥¹¤ä½»Âð¤¬..

ð׸ø±à¶á¤¯¤Î¥³¥ó¥Ñ¥¯¥ÈŹÊÞ»ö̳½ê

20.9ËüËü±ß ¡Ê¶¦¡§0±ß¡Ë
10.98ÄÚ ¡ÊÀì¡§36.3㎡¡Ë
Âçºå»ÔÀ¾¶èð×ËÜÄ®1ÃúÌÜ ¡¦ ËÜÄ®±Ø ÅÌÊâ3ʬ

Âçºå»ÔÀ¾¶èËÜÄ®¥¨¥ê¥¢¤Ç¡¢¥¢¥¯¥»¥¹¤ÎÎɤ¤Å¹ÊÞ¡¦»ö̳½êʪ·ï¤ò¤ªÃµ¤·¤ÎÊý¤Ë¤ª¤¹¤¹¤á¤ÎÄÂÂß¾ðÊó¤ò¤´¾Ò²ð¤·¤Þ¤¹¡£Ãϲ¼Å´»Í¤Ä¶¶Àþ¡ÖËÜÄ®±Ø¡×¤«¤éÅÌÊâÌó3ʬ¤È¤¤¤¦Èó¾ï¤ËÊØÍø¤ÊΩÃϤˤ¢¤ê¤Þ¤¹¡£¼þÊդˤϥª¥Õ¥£¥¹¥Ó¥ë¤¬Â¿¤¯..

À¾¶è¹¾¸ÍË٤Σ±³¬Ï©ÌÌŹÊÞ

26.4ËüËü±ß ¡Ê¶¦¡§0±ß¡Ë
18.46ÄÚ ¡ÊÀì¡§61.04㎡¡Ë
Âçºå»ÔÀ¾¶è¹¾¸ÍËÙ3ÃúÌÜ ¡¦ °¤ÇÈºÂ±Ø ÅÌÊâ8ʬ

Âçºå»ÔÀ¾¶è¹¾¸ÍËÙ¥¨¥ê¥¢¤Ë¡¢»ëǧÀ­¤Î¹â¤¤´õ¾¯¤Ê1³¬Ï©ÌÌŹÊÞ¡Ö¥í¥¤¥ä¥ë¥Ó¥ë­µ¡×¤ÎÊ罸¤¬³«»Ï¤·¤Þ¤·¤¿¡£Ãϲ¼Å´³ÆÀþ¡Ö°¤ÇȺ¡ױؤ«¤éÅÌÊâ8ʬ¤È¤¤¤¦¥¢¥¯¥»¥¹¤ÎÎɤ¤Î©ÃϤˤ¢¤ê¡¢¥ª¥Õ¥£¥¹³¹¤È½»Â𥨥ꥢ¤¬º®ºß¤¹¤ë³èµ¤¤Î..

À¾¶èÀéÂåºê¤Î1³¬Ï©ÌÌŹÊÞ

29.7ËüËü±ß ¡Ê¶¦¡§-¡Ë
32.7ÄÚ ¡ÊÀì¡§108.1㎡¡Ë
Âçºå»ÔÀ¾¶èÀéÂåºê2ÃúÌÜ ¡¦ Âçºå¥É¡¼¥àÁ°ÀéÂåºê±Ø ÅÌÊâ2ʬ

º£²ó¤Ï¡¢Âçºå»ÔÀ¾¶èÀéÂåºê¤Ë°ÌÃÖ¤¹¤ëŹÊÞʪ·ï¡Ö¥µ¥ó¥é¥¤¥ºÀéÂåºê¡×¤ò¤´¾Ò²ð¤¤¤¿¤·¤Þ¤¹¡£¸½ºß¡¢´ü´Ö¸ÂÄê¤ÎÄÂÎÁ¥À¥¦¥ó¥­¥ã¥ó¥Ú¡¼¥ó¤ò¼Â»Ü¤·¤Æ¤ª¤ê¡¢Ä̾ïÄÂÎÁ330,000±ß¡ÊÀǹþ¡Ë¤Î¤È¤³¤í¡¢297,000±ß¡ÊÀǹþ..

¡ØÏ©ÌÌŹÊޡ٥ƥʥó¥È¡¦ÂߏÊÞʪ·ï°ìÍ÷

¹¹¤Ë¹Ê¤ê¹þ¤ó¤Ç¸¡º÷ ↕ (Click open)

ÄÂÎÁ
¡Á
 
¹­¤µ
¡Á
 
ÀßÈ÷

Âçºå¡ØÏ©ÌÌŹÊÞ¡Ù¤ÎŹÊÞʪ·ï¡¦¥Æ¥Ê¥ó¥È¤Î°ìÍ÷¤Ç¤¹¡£
Âߤ·Å¹ÊÞʪ·ï¤ò¿·Ãå½ç¤Ëɽ¼¨¤·¤Æ¤¤¤Þ¤¹¡£

µ¤¤Ë¤Ê¤ëʪ·ï¤¬¤¢¤ë¾ì¹ç¤Ï ¡Ö¤ªµ¤¤ËÆþ¤ê¡×¥Ü¥¿¥ó¤ò²¡¤·¤Æ¡¢Êª·ï¤ò¥¹¥È¥Ã¥¯¤¹¤ë»ö¤¬²Äǽ¤Ç¤¹¡ª
ËÜ¥µ¥¤¥È±¦¾å¤Î¡Ö¤ªµ¤¤ËÆþ¤ê¡×¥Ü¥¿¥ó¤è¤ê¥¹¥È¥Ã¥¯¤·¤¿Êª·ï¤¬¤´³Îǧ失¤Þ¤¹¡ª
¤Þ¤¿¡¢Êª·ï¤Î°ì³ç¤ªÌ䤤¹ç¤»¤â¤Ç¤­¤Þ¤¹¤Î¤Ç¡¢ÂçÊÑÊØÍø¤Ç¤¹¡ª¤¼¤Ò¡¢¤´³èÍѲ¼¤µ¤¤¡ª

2763·ïÃæ 1681¡Á1704·ï¤òɽ¼¨¤·¤Æ¤¤¤Þ¤¹¡£

ʤÓÂØ¤¨¡§
 
 

🚉¡Ú»Í¥Ä¶¶¡Û±Ø ÅÌÊâ3ʬ

Âçºå»ÔÀ¾¶è »Í¥Ä¶¶¤ÎŹÊÞ¡¦¥Æ¥Ê¥ó¥ÈÄÂÂߤβèÁü
Âçºå»ÔÀ¾¶è »Í¥Ä¶¶¤ÎŹÊÞ¡¦¥Æ¥Ê¥ó¥ÈÄÂÂߤδּè¤ê²èÁü

¡ÚËÙ¹¾°ìÅùÃÏ¡ÛÏ©ÌÌ¡¡£±ÅïÂß¡¡´õ¾¯

-±ß
23.34ÄÚ¡Ê-㎡¡Ë

¿Íµ¤¤Î¤ªÞ¯Íî³¹ËÙ¹¾¥¢¥Ñ¥ì¥ëŹÊÞ¤äÈþÍÆ¼¼¥ª¥·¥ã¥ì¥«¥Õ¥§¤¬ÅÀºß¤¹¤ëÈ´·²¤ÎΩÃϤǥª..

🏬  Âçºå»ÔÀ¾¶èÆîËÙ¹¾1
·Ú°û¿© ¥¢¥Ñ¥ì¥ë¡¦ÊªÈÎ ÍýÍÆ¼¼¡¦ÈþÍÆ¼¼ ¥Ú¥Ã¥È¥·¥ç¥Ã¥× ±Ø¶á µïÈ´¤­Å¹ÊÞ Ä¶°ìÅùÃÏ Ï©ÌÌŹÊÞ

🚉¡Ú¿·Ê¡Åç¡Û±Ø ÅÌÊâ3ʬ

Âçºå»ÔÊ¡Åç¶è ¿·Ê¡Åç¤ÎŹÊÞ¡¦¥Æ¥Ê¥ó¥ÈÄÂÂߤβèÁü
Âçºå»ÔÊ¡Åç¶è ¿·Ê¡Åç¤ÎŹÊÞ¡¦¥Æ¥Ê¥ó¥ÈÄÂÂߤδּè¤ê²èÁü

´õ¾¯Ê¡Åç¸Í·úŹÊÞ¡ª

-±ß
23.84ÄÚ¡Ê78.68㎡¡Ë

Ê¡Åç¶èÊ¡Åç¿Íµ¤°û¿©Å¹¤¬Î©¤Áʤֺ£Âçºå¤ÇºÇ¤âÇ®¤¤³¹¡£ÆÃ¤Ë¤Õ¤ë¡¼¤¤Ì±²È¤ò²þÁõ¤·¤¿..

🏬  Âçºå»ÔÊ¡Åç¶èÊ¡Åç3
·Ú°û¿© ½Å°û¿© Äê¿©¡¦»Å½Ð¤· ¥Ð¡¼ ¥¢¥Ñ¥ì¥ë¡¦ÊªÈÎ ÍýÍÆ¼¼¡¦ÈþÍÆ¼¼ °åÎÅ¡¦É±¡¡¦¥¯¥ê¥Ë¥Ã¥¯ ¥¨¥¹¥Æ¡¦¥µ¥í¥ó ±Ø¶á ͰìÅùÃÏ °ìÅïÂߤ· Ï©ÌÌŹÊÞ ¥¹¥±¥ë¥È¥óŹÊÞ

🚉¡ÚÌî¹¾ÆâÂå¡Û±Ø ÅÌÊâ8ʬ

Âçºå»ÔÅÔÅç¶è Ìî¹¾ÆâÂå¤ÎŹÊÞ¡¦¥Æ¥Ê¥ó¥ÈÄÂÂߤβèÁü
Âçºå»ÔÅÔÅç¶è Ìî¹¾ÆâÂå¤ÎŹÊÞ¡¦¥Æ¥Ê¥ó¥ÈÄÂÂߤδּè¤ê²èÁü

ÅÔÅç¡¡Ìó9ÄÚ¡¡Ï©ÌÌŹÊÞ

-±ß
9ÄÚ¡Ê-㎡¡Ë

¡ôÅÔÅç¡ô¥Ð¥¹ÄäÌܤÎÁ°¡ôÌó9ÄÚ¡ôÏ©ÌÌŹÊÞ¡ôÈþÍÆ¼¼¡ô°û¿©Å¹¡ô¶È¼ïÁêÃÌOk¡ô¤¤¤«¤¬..

🏬  Âçºå»ÔÅÔÅç¶èÅÔÅçÃæÄÌ2
·Ú°û¿© Äê¿©¡¦»Å½Ð¤· ¥¢¥Ñ¥ì¥ë¡¦ÊªÈÎ ÍýÍÆ¼¼¡¦ÈþÍÆ¼¼ ¥¨¥¹¥Æ¡¦¥µ¥í¥ó Ï©ÌÌŹÊÞ

🚉¡ÚÀ¾ÃæÅçÆîÊý¡Û±Ø ÅÌÊâ4ʬ

Âçºå»ÔÍäÀî¶è À¾ÃæÅçÆîÊý¤ÎŹÊÞ¡¦¥Æ¥Ê¥ó¥ÈÄÂÂߤβèÁü
Âçºå»ÔÍäÀî¶è À¾ÃæÅçÆîÊý¤ÎŹÊÞ¡¦¥Æ¥Ê¥ó¥ÈÄÂÂߤδּè¤ê²èÁü

À¾ÃæÅç¤Î¥é¡¼¥á¥óʵïÈ´¤­

-±ß
10ÄÚ¡Ê-㎡¡Ë

À¾ÃæÅçÆîÊý±Ø¶á¤Î¥é¡¼¥á¥óʵïÈ´¤­Êª·ï¤Ç¤¹¡ª¡ª¡ª¼þÊդϤʤ«¤Ê¤«¤¤¤¤´¶¤¸¤ÎÈ˲ڳ¹..

🏬  Âçºå»ÔÍäÀî¶èÀ¾ÃæÅç3
·Ú°û¿© ½Å°û¿© ¥¢¥Ñ¥ì¥ë¡¦ÊªÈÎ ¥¨¥¹¥Æ¡¦¥µ¥í¥ó ±Ø¶á µïÈ´¤­Å¹ÊÞ Ï©ÌÌŹÊÞ

🚉¡ÚÅ·¿À¶¶¶ÚÏ»ÃúÌÜ¡Û±Ø ÅÌÊâ3ʬ

Âçºå»ÔË̶è Å·¿À¶¶¶ÚÏ»ÃúÌܤÎŹÊÞ¡¦¥Æ¥Ê¥ó¥ÈÄÂÂߤβèÁü
Âçºå»ÔË̶è Å·¿À¶¶¶ÚÏ»ÃúÌܤÎŹÊÞ¡¦¥Æ¥Ê¥ó¥ÈÄÂÂߤδּè¤ê²èÁü

Âçºå»Ô¡¡¸Å̱²È¡¡µþÉ÷Ä®¡¡Å¹ÊÞ

-±ß
31ÄÚ¡Ê-㎡¡Ë

Âçºå»ÔË̶èÉâÅÄ£±ÃúÌÜÂçºå»Ô ¸Å̱²È µþÉ÷Ä® ŹÊ޶ȼïÍ×ÁêÃÌŹÆâ¡¢¥­¥Ã¥Á¥ó¡¦Îä..

🏬  Âçºå»ÔË̶èÉâÅÄ1
·Ú°û¿© ¥¢¥Ñ¥ì¥ë¡¦ÊªÈÎ ÍýÍÆ¼¼¡¦ÈþÍÆ¼¼ °åÎÅ¡¦É±¡¡¦¥¯¥ê¥Ë¥Ã¥¯ ¥¨¥¹¥Æ¡¦¥µ¥í¥ó ±£¤ì²È ±Ø¶á µïÈ´¤­Å¹ÊÞ °ìÅïÂߤ· Ï©ÌÌŹÊÞ

🚉¡ÚÃæºêÄ®¡Û±Ø ÅÌÊâ1ʬ

Âçºå»ÔË̶è ÃæºêÄ®¤ÎŹÊÞ¡¦¥Æ¥Ê¥ó¥ÈÄÂÂߤβèÁü
Âçºå»ÔË̶è ÃæºêÄ®¤ÎŹÊÞ¡¦¥Æ¥Ê¥ó¥ÈÄÂÂߤδּè¤ê²èÁü

ÃæºêÄ®¤ÎŹÊÞ»ö̳½ê¡¡¥¨¥¹¥Æ¤â£Ï£Ë

-±ß
9.45ÄÚ¡Ê31.26㎡¡Ë

Ãæºê±Ø¶á»ö̳½êŹÊÞ¥¨¥¹¥Æ³Ê°ÂÃϲ¼Å´Ã«Ä®Àþ¡ÖÃæºêÄ®¡×±ØÅÌÊ⣱ʬÅÔÅçÄ̤ê¤ËÌ̤¹¤ë..

🏬  Âçºå»ÔË̶èÉâÅÄ1
¥¢¥Ñ¥ì¥ë¡¦ÊªÈÎ °åÎÅ¡¦É±¡¡¦¥¯¥ê¥Ë¥Ã¥¯ ¥¨¥¹¥Æ¡¦¥µ¥í¥ó ±Ø¶á Ï©ÌÌŹÊÞ

🚉¡Ú°¤ÇÈºÂ¡Û±Ø ÅÌÊâ2ʬ

Âçºå»ÔÀ¾¶è °¤ÇȺ¤ÎŹÊÞ¡¦¥Æ¥Ê¥ó¥ÈÄÂÂߤβèÁü
Âçºå»ÔÀ¾¶è °¤ÇȺ¤ÎŹÊÞ¡¦¥Æ¥Ê¥ó¥ÈÄÂÂߤδּè¤ê²èÁü

ËÜÄ®Ä̤ê¤ËÌ̤¹¤ë³ÑÃÏ¡ª1ÅïÂߤ·¡£

-±ß
41.45ÄÚ¡Ê137.2㎡¡Ë

Âçºå»ÔÀ¾¶è¿ÙËÜÄ®3ÃúÌÜËÜÄ®Ä̤ê¤ËÌ̤¹¤ë³ÑÃϤΥӥ뤬1ÅïÂߤ·¤ÇÊç½¸Ãæ¤Ç¤¹¡ª£±¡¦..

🏬  Âçºå»ÔÀ¾¶èð×ËÜÄ®3
·Ú°û¿© Äê¿©¡¦»Å½Ð¤· ¥Ð¡¼ ¥¢¥Ñ¥ì¥ë¡¦ÊªÈÎ ÍýÍÆ¼¼¡¦ÈþÍÆ¼¼ ¥¨¥¹¥Æ¡¦¥µ¥í¥ó ±Ø¶á µïÈ´¤­Å¹ÊÞ °ìÅïÂߤ· Ï©ÌÌŹÊÞ

🚉¡Ú¤Ê¤Ë¤ï¶¶¡Û±Ø ÅÌÊâ8ʬ

Âçºå»ÔËÌ¶è ¤Ê¤Ë¤ï¶¶¤ÎŹÊÞ¡¦¥Æ¥Ê¥ó¥ÈÄÂÂߤβèÁü
Âçºå»ÔËÌ¶è ¤Ê¤Ë¤ï¶¶¤ÎŹÊÞ¡¦¥Æ¥Ê¥ó¥ÈÄÂÂߤδּè¤ê²èÁü

À¾Å·Ëþ¤Î³ÑÃÏÏ©ÌÌŹ

-±ß
17.87ÄÚ¡Ê59㎡¡Ë

À¾Å·Ëþ¤ÎºÛȽ½ê¶á¤¯¤Ë³ÑÃÏŹÊÞ¤¬Åо졪¡ª¤â¤È¤â¤ÈÈþ½Ñ²èÏ­¤¬Â¿¤¤¤³¤Î¥¨¥ê¥¢º£²ó¤´..

🏬  Âçºå»ÔË̶èÀ¾Å·Ëþ4
·Ú°û¿© ½Å°û¿© Äê¿©¡¦»Å½Ð¤· ¥Ð¡¼ ¥¢¥Ñ¥ì¥ë¡¦ÊªÈÎ ÍýÍÆ¼¼¡¦ÈþÍÆ¼¼ ±£¤ì²È Ï©ÌÌŹÊÞ

🚉¡Ú»Í¥Ä¶¶¡Û±Ø ÅÌÊâ4ʬ

Âçºå»ÔÀ¾¶è »Í¥Ä¶¶¤ÎŹÊÞ¡¦¥Æ¥Ê¥ó¥ÈÄÂÂߤβèÁü
Âçºå»ÔÀ¾¶è »Í¥Ä¶¶¤ÎŹÊÞ¡¦¥Æ¥Ê¥ó¥ÈÄÂÂߤδּè¤ê²èÁü

ÆîËÙ¹¾¡¡£±³¬Ï©ÌÌŹÊÞ

-±ß
13.5ÄÚ¡Ê-㎡¡Ë

Âçºå»ÔÀ¾¶èÆîËÙ¹¾£±ÃúÌÜ£±³¬Ï©ÌÌŹÊÞ¼ã¼Ô¤¬½¸¤¦Ä®ËÙ¹¾¡¢¥¢¥ó¥Æ¥£¡¼¥¯¹á¤ëÏ©ÌÌŹÊÞ..

🏬  Âçºå»ÔÀ¾¶èÆîËÙ¹¾1
¥¢¥Ñ¥ì¥ë¡¦ÊªÈÎ °åÎÅ¡¦É±¡¡¦¥¯¥ê¥Ë¥Ã¥¯ ±Ø¶á ͰìÅùÃÏ Ï©ÌÌŹÊÞ

🚉¡ÚÃæÄÅ¡Û±Ø ÅÌÊâ6ʬ

Âçºå»ÔË̶è ÃæÄŤÎŹÊÞ¡¦¥Æ¥Ê¥ó¥ÈÄÂÂߤβèÁü
Âçºå»ÔË̶è ÃæÄŤÎŹÊÞ¡¦¥Æ¥Ê¥ó¥ÈÄÂÂߤδּè¤ê²èÁü

ÃæÄŤΥê¥Î¥ÙĹ²°Å¹ÊÞ´°À®¡ª

-±ß
17.14ÄÚ¡Ê56.69㎡¡Ë

¤³¤ì¤¾¡ª¥ì¥È¥í¡ª¡ª¤Ã¤Æ¤Ê´¶¤¸¤Îʪ·ï¤¬Åо졣¾ì½ê¤ÏË̶èË­ºêÃϲ¼Å´¸æÆ²¶ÚÀþ¡ØÃæÄÅ..

🏬  Âçºå»ÔË̶èË­ºê2
¥¢¥Ñ¥ì¥ë¡¦ÊªÈÎ ¥¨¥¹¥Æ¡¦¥µ¥í¥ó Ï©ÌÌŹÊÞ

🚉¡ÚÀÝÄÅÉÙÅÄ¡Û±Ø ÅÌÊâ20ʬ

°ñÌÚ»Ô ÀÝÄÅÉÙÅĤÎŹÊÞ¡¦¥Æ¥Ê¥ó¥ÈÄÂÂߤβèÁü
°ñÌÚ»Ô ÀÝÄÅÉÙÅĤÎŹÊÞ¡¦¥Æ¥Ê¥ó¥ÈÄÂÂߤδּè¤ê²èÁü

¥«¥Õ¥§¡¡µïÈ´¤­Å¹ÊÞ¡¡½»µïÉÕ¤­

-±ß
21ÄÚ¡Ê-㎡¡Ë

ÂçºåÉܰñÌÚ»Ô´õ¾¯½»µïÉÕ¤­Å¹ÊÞ¥«¥Õ¥§¡õ¤¿¤³¾Æ¤­£²³¬¤Ï½»µï¥¹¥Ú¡¼¥¹µïÈ´¤­Å¹ÊޤǤ¹..

🏬  °ñÌÚ»Ô¹âÅÄÄ®
·Ú°û¿© ½Å°û¿© Ï©ÌÌŹÊÞ

🚉¡ÚÊ¿Ìî¡Û±Ø ÅÌÊâ1ʬ

Âçºå»ÔÊ¿Ìî¶è Ê¿Ìî¤ÎŹÊÞ¡¦¥Æ¥Ê¥ó¥ÈÄÂÂߤβèÁü
Âçºå»ÔÊ¿Ìî¶è Ê¿Ìî¤ÎŹÊÞ¡¦¥Æ¥Ê¥ó¥ÈÄÂÂߤδּè¤ê²èÁü

£Ê£ÒÊ¿Ìî±ØÁ°¡¡µïÈ´¤­Å¹ÊÞ

-±ß
35ÄÚ¡Ê116㎡¡Ë

Âçºå»ÔÊ¿Ìî¶èÊ¿ÌîẸ̈ʣҴØÀ¾ËÜÀþÊ¿Ìî±ØÁ°Å¹ÊÞ³ÑÃÏ¡ª¡ª1³¬Ï©ÌÌŹÊÞ¡ª¡ª»ëǧÀ­ºÇ¶¯..

🏬  Âçºå»ÔÊ¿Ìî¶èÊ¿ÌîËÌ1
·Ú°û¿© ¥¢¥Ñ¥ì¥ë¡¦ÊªÈÎ ÍýÍÆ¼¼¡¦ÈþÍÆ¼¼ °åÎÅ¡¦É±¡¡¦¥¯¥ê¥Ë¥Ã¥¯ ±Ø¶á µïÈ´¤­Å¹ÊÞ Â緿ŹÊÞ Ä¶°ìÅùÃÏ Ï©ÌÌŹÊÞ

🚉¡ÚÌîÅĺå¿À¡Û±Ø ÅÌÊâ3ʬ

Âçºå»ÔÊ¡Åç¶è ÌîÅĺå¿À¤ÎŹÊÞ¡¦¥Æ¥Ê¥ó¥ÈÄÂÂߤβèÁü
Âçºå»ÔÊ¡Åç¶è ÌîÅĺå¿À¤ÎŹÊÞ¡¦¥Æ¥Ê¥ó¥ÈÄÂÂߤδּè¤ê²èÁü

±Ø¥Á¥«Î©ÃÏ¡¡Ê¡Å磱ÅïÂߤ·

-±ß
14.86ÄÚ¡Ê49.05㎡¡Ë

Ê¡Åç¶èÌîÅĺå¿À¥¨¥ê¥¢Ãó¼Ö¾ìÉÕ¤­1ÅïÂßʪ·ï¤¬¤ª¼êº¢²Á³Ê¤ÇÅо졪¡ªÃϲ¼Å´ÀéÆüÁ°Àþ..

🏬  Âçºå»ÔÊ¡Åç¶èºí½§1
·Ú°û¿© ½Å°û¿© Äê¿©¡¦»Å½Ð¤· ¥¢¥Ñ¥ì¥ë¡¦ÊªÈÎ ÍýÍÆ¼¼¡¦ÈþÍÆ¼¼ ¥Ú¥Ã¥È¥·¥ç¥Ã¥× °åÎÅ¡¦É±¡¡¦¥¯¥ê¥Ë¥Ã¥¯ ¥¨¥¹¥Æ¡¦¥µ¥í¥ó ±Ø¶á ͰìÅùÃÏ °ìÅïÂߤ· Ï©ÌÌŹÊÞ
 
 

Ãç²ð¼ÂÀÓ»öÎã

ŹÊÞ¤òÊÄŹ¡¦°Üž¤ò¹Í¤¨¤Æ¤¤¤ëÊý¤Ø ÊÄŹ¤ÎºÝ¤Ë¤É¤¦¤·¤Æ¤¤¤¤¤«¤ï¤«¤é¤Ê¤¤¡¢¸½¾õ¤Î¤Þ¤Þ¤Ç°úÅϤ·¤¬¤·¤¿¤¤¿Í¤Ø
°û¿©Å¹¤Î°Üž¡¦ÊÄŹ¤ÇǺ¤ó¤À¤é¤Þ¤º¤ÏÁêÃ̤¯¤À¤µ¤¤¡ª

¤ªÌòΩ¤Á¥³¥ó¥Æ¥ó¥Ä

  • ŹÊÞ³«¶È¤Þ¤Ç¤Î¥Õ¥í¡¼¥Á¥ã¡¼¥È
    ŹÊÞ³«¶È¤Þ¤Ç¤Î
    ¥Õ¥í¡¼¥Á¥ã¡¼¥È
  • ÂߏÊÞõ¤·¤«¤é·ÀÌó¤Îή¤ì
    ÂߏÊÞõ¤·
    ·ÀÌó¤Îή¤ì
 

ŹÊÞ¡¦¥Æ¥Ê¥ó¥È³«¶È ¤ªÌòΩ¤Á¾ðÊó

ŹÊÞʪ·ï¤ªÌòΩ¤Á¥Ê¥Ó ŹÊÞʪ·ïQ&A ÄÂÂߤÎÉÔÆ°»ºÍѸ콸
 
  • ΩÃϤθ«Êý
    ΩÃϤθ«Êý
  • ÂߏÊÞ¤ÎÃç²ð¼ÂÀÓ»öÎã
    ÂߏÊÞ¤Î
    Ãç²ð¼ÂÀÓ»öÎã
 
 

ŹÊÞ°ìÍ÷

Åö¥µ¥¤¥È¤Îʪ·ï¼è¤ê°·¤¤Å¹ÊޤǤ¹¡£

  • BRUNOÉÔÆ°»º³ô¼°²ñ¼Ò ¥¨¥¤¥Ö¥ë¥Í¥Ã¥È¥ï¡¼¥¯Èî¸å¶¶¤¦¤Ä¤Ü¸ø±àÁ°Å¹ 06-6459-4555
  • BRUNOÉÔÆ°»º³ô¼°²ñ¼Ò ¥¨¥¤¥Ö¥ë¥Í¥Ã¥È¥ï¡¼¥¯½»Ç·¹¾¸ø±àŹ 06-6657-7090
 
Copyright 2018. ©ÂߏÊÞNavi. ALL Rights Reserved.
ÂߏÊÞ¡¦µïÈ´¤­Å¹ÊÞ¡¦¥Æ¥Ê¥ó¥Èʪ·ï¾ðÊó ¥Ú¡¼¥¸¥È¥Ã¥×¤Ø