ǯËöǯ»Ï±Ä¶È¤Î¤ªÃΤ餻

Open

- MENU -

 
¸¡º÷¥á¥Ë¥å¡¼

¥«¥Æ¥´¥ê¤«¤éõ¤¹

1³¬Ï©ÌÌŹÊÞ¡÷ºàÌÚÄ®

55ËüËü±ß ¡Ê¶¦¡§-¡Ë
28.38ÄÚ ¡ÊÀì¡§93.83㎡¡Ë
Âçºå»ÔÃæ±û¶èºàÌÚÄ® ¡¦ ºæ¶ÚËÜÄ®±Ø ÅÌÊâ7ʬ

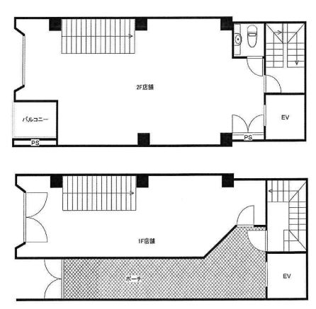
Ãæ±û¶èºàÌÚÄ®2026ǯ3·îÃۤο·ÃÛʪ·ï¤Ë1³¬Ï©Ì̶è²èÊ罸¤¬½Ð¤Æ¤ª¤ê¤Þ¤¹¡£¾¾²°Ä®¶Ú¤ËÌ̤·¤Æ¤ª¤ê´Ö¸ý¤â¹­¤¯»ëǧÀ­¤Î¹â¤¤¤Ç¤¹¡£93.83­ÖÌó28.38ÄÚ¤ª¹¥¤ß¤ÎÆâÁõ¤òºî¤ê¤³¤á¤ë¥¹¥±¥ë¥È¥ó¾õÂÖ¡£ÈþÍÆ¼¼¤äÀ°Âα¢..

Ë̶èÌîºêĮϩÌÌŹÊÞ

13.2ËüËü±ß ¡Ê¶¦¡§0±ß¡Ë
6.65ÄÚ ¡ÊÀì¡§22㎡¡Ë
Âçºå»ÔË̶èÌîºêÄ® ¡¦ Æî¿¹Ä®±Ø ÅÌÊâ7ʬ

¥Ó¥¸¥Í¥¹¤È¥«¥ë¥Á¥ã¡¼¤¬Äø¤è¤¯º®¤¶¤ë¥¨¥ê¥¢¡£Æî¿¹Ä®¥¨¥ê¥¢¤è¤ê1³¬Ï©Ì̤ξ®µ¬ÌÏŹÊÞ¤¬Ê罸½Ð¤Þ¤·¤¿ËÙÀ¿À¼Ò¶á¤¯¤ÎÏ©Ì̶è²è¥ì¥È¥í¤Ê³°´Ñ¤¬Ìܤò°ú¤¯Å´¹ü¤3³¬·ú¤ÆÂçºå¥á¥È¥íëĮÀþ¡ÚÆî¿¹Ä®±Ø¡ÛÅÌÊâ7ʬ¤ÎΩÃϵサ¥¨..

±Ø¶á1ʬ¡ªºæ»Ô¤ÎÏ¿©µïÈ´¤­Å¹ÊÞ

39.93ËüËü±ß ¡Ê¶¦¡§33,000±ß¡Ë
132.7ÄÚ ¡ÊÀì¡§438.67㎡¡Ë
ºæ»Ôºæ¶èÂçÄ®Åì1ÃúÌÜ ¡¦ ºæ±Ø ÅÌÊâ10ʬ

º£²ó¤Ï¡¢ÂçºåÉܺæ»Ôºæ¶èÂçÄ®Åì¤Ë°ÌÃÖ¤¹¤ëÌ¥ÎÏŪ¤ÊÂߏÊÞ¤ò¤´¾Ò²ð¤·¤Þ¤¹¡£ºåºæÀþ¡Ö½É±¡±Ø¡×¤«¤éÅÌÊâ1ʬ¡¢¤µ¤é¤ËÆî³¤ËÜÀþ¡Öºæ±Ø¡×¤«¤é¤âÅÌÊâ10ʬ¤È¤¤¤¦¹¥Î©ÃϤǡ¢½¸µÒÎϤι⤤¥¨¥ê¥¢¤Ë°ÌÃÖ¤·¤Æ¤¤¤Þ¤¹¡£ËÜʪ·ï¤Ï1³¬..

ÅÚº´ËÙÄ̤ê±è¤¤¡¢1³¬Ï©ÌÌ

26.4ËüËü±ß ¡Ê¶¦¡§-¡Ë
18.46ÄÚ ¡ÊÀì¡§61.04㎡¡Ë
Âçºå»ÔÀ¾¶è¹¾¸ÍËÙ3ÃúÌÜ ¡¦ °¤ÇÈºÂ±Ø ÅÌÊâ8ʬ

Âçºå»ÔÀ¾¶è¹¾¸ÍËÙ3ÃúÌܤè¤ê»ëǧÀ­¤ÎÎɤ¤¡¢Ï©ÌÌŹÊÞ»ö̳½ê¤ÎÊ罸¤¬½Ð¤Þ¤·¤¿¡£ ÅÚº´ËÙÄ̤ê¤ËÌ̤¹¤ë1997ǯÃÛ¤ÎÅ´¹üÅ´¶Ú¥³¥ó¥¯¥ê¡¼¥È¤Âçºå¥á¥È¥íÃæ±ûÀþ/ÀéÆüÁ°Àþ¡Ú°¤ÇȺ±ءÛÅÌÊâ8ʬ¥·¥ã¥Ã¥¿¡¼ÉÕ¤­¤Î..

¡ÚÂçºå¡¦¿·Ä®¥¨¥ê¥¢¡Û3³¬·ú¤Æ°ìÅïÂߏÊÞ

42ËüËü±ß ¡Ê¶¦¡§0±ß¡Ë
47.7ÄÚ ¡ÊÀì¡§157.71㎡¡Ë
Âçºå»ÔÀ¾¶è¿·Ä®2ÃúÌÜ ¡¦ À¾Âç¶¶±Ø ÅÌÊâ3ʬ

Âçºå»ÔÀ¾¶è¿·Ä®2ÃúÌܤ˰ÌÃÖ¤¹¤ë¡¢Ì¥ÎÏŪ¤Ê°ìÅïÂߤ·Å¹ÊÞʪ·ï¤Î¤´¾Ò²ð¤Ç¤¹¡£Ä¹ËÙÄḫÎÐÃÏÀþ¡ÖÀ¾Âç¶¶¡×±Ø¤«¤éÅÌÊâÌó3ʬ¤È¤¤¤¦¹¥Î©ÃϤˤ¢¤ê¡¢½¸µÒÎϤò½Å»ë¤µ¤ì¤ë»ö¶È¼ÔÍͤˤԤ俤ê¤Îʪ·ï¤Ç¤¹¡£¼þÊդϥª¥Õ¥£¥¹¤ä½»Âð¤¬..

ð׸ø±à¶á¤¯¤Î¥³¥ó¥Ñ¥¯¥ÈŹÊÞ»ö̳½ê

20.9ËüËü±ß ¡Ê¶¦¡§0±ß¡Ë
10.98ÄÚ ¡ÊÀì¡§36.3㎡¡Ë
Âçºå»ÔÀ¾¶èð×ËÜÄ®1ÃúÌÜ ¡¦ ËÜÄ®±Ø ÅÌÊâ3ʬ

Âçºå»ÔÀ¾¶èËÜÄ®¥¨¥ê¥¢¤Ç¡¢¥¢¥¯¥»¥¹¤ÎÎɤ¤Å¹ÊÞ¡¦»ö̳½êʪ·ï¤ò¤ªÃµ¤·¤ÎÊý¤Ë¤ª¤¹¤¹¤á¤ÎÄÂÂß¾ðÊó¤ò¤´¾Ò²ð¤·¤Þ¤¹¡£Ãϲ¼Å´»Í¤Ä¶¶Àþ¡ÖËÜÄ®±Ø¡×¤«¤éÅÌÊâÌó3ʬ¤È¤¤¤¦Èó¾ï¤ËÊØÍø¤ÊΩÃϤˤ¢¤ê¤Þ¤¹¡£¼þÊդˤϥª¥Õ¥£¥¹¥Ó¥ë¤¬Â¿¤¯..

À¾¶è¹¾¸ÍË٤Σ±³¬Ï©ÌÌŹÊÞ

26.4ËüËü±ß ¡Ê¶¦¡§0±ß¡Ë
18.46ÄÚ ¡ÊÀì¡§61.04㎡¡Ë
Âçºå»ÔÀ¾¶è¹¾¸ÍËÙ3ÃúÌÜ ¡¦ °¤ÇÈºÂ±Ø ÅÌÊâ8ʬ

Âçºå»ÔÀ¾¶è¹¾¸ÍËÙ¥¨¥ê¥¢¤Ë¡¢»ëǧÀ­¤Î¹â¤¤´õ¾¯¤Ê1³¬Ï©ÌÌŹÊÞ¡Ö¥í¥¤¥ä¥ë¥Ó¥ë­µ¡×¤ÎÊ罸¤¬³«»Ï¤·¤Þ¤·¤¿¡£Ãϲ¼Å´³ÆÀþ¡Ö°¤ÇȺ¡ױؤ«¤éÅÌÊâ8ʬ¤È¤¤¤¦¥¢¥¯¥»¥¹¤ÎÎɤ¤Î©ÃϤˤ¢¤ê¡¢¥ª¥Õ¥£¥¹³¹¤È½»Â𥨥ꥢ¤¬º®ºß¤¹¤ë³èµ¤¤Î..

À¾¶èÀéÂåºê¤Î1³¬Ï©ÌÌŹÊÞ

29.7ËüËü±ß ¡Ê¶¦¡§-¡Ë
32.7ÄÚ ¡ÊÀì¡§108.1㎡¡Ë
Âçºå»ÔÀ¾¶èÀéÂåºê2ÃúÌÜ ¡¦ Âçºå¥É¡¼¥àÁ°ÀéÂåºê±Ø ÅÌÊâ2ʬ

º£²ó¤Ï¡¢Âçºå»ÔÀ¾¶èÀéÂåºê¤Ë°ÌÃÖ¤¹¤ëŹÊÞʪ·ï¡Ö¥µ¥ó¥é¥¤¥ºÀéÂåºê¡×¤ò¤´¾Ò²ð¤¤¤¿¤·¤Þ¤¹¡£¸½ºß¡¢´ü´Ö¸ÂÄê¤ÎÄÂÎÁ¥À¥¦¥ó¥­¥ã¥ó¥Ú¡¼¥ó¤ò¼Â»Ü¤·¤Æ¤ª¤ê¡¢Ä̾ïÄÂÎÁ330,000±ß¡ÊÀǹþ¡Ë¤Î¤È¤³¤í¡¢297,000±ß¡ÊÀǹþ..

¡ØÏ©ÌÌŹÊޡ٥ƥʥó¥È¡¦ÂߏÊÞʪ·ï°ìÍ÷

¹¹¤Ë¹Ê¤ê¹þ¤ó¤Ç¸¡º÷ ↕ (Click open)

ÄÂÎÁ
¡Á
 
¹­¤µ
¡Á
 
ÀßÈ÷

Âçºå¡ØÏ©ÌÌŹÊÞ¡Ù¤ÎŹÊÞʪ·ï¡¦¥Æ¥Ê¥ó¥È¤Î°ìÍ÷¤Ç¤¹¡£
Âߤ·Å¹ÊÞʪ·ï¤ò¿·Ãå½ç¤Ëɽ¼¨¤·¤Æ¤¤¤Þ¤¹¡£

µ¤¤Ë¤Ê¤ëʪ·ï¤¬¤¢¤ë¾ì¹ç¤Ï ¡Ö¤ªµ¤¤ËÆþ¤ê¡×¥Ü¥¿¥ó¤ò²¡¤·¤Æ¡¢Êª·ï¤ò¥¹¥È¥Ã¥¯¤¹¤ë»ö¤¬²Äǽ¤Ç¤¹¡ª
ËÜ¥µ¥¤¥È±¦¾å¤Î¡Ö¤ªµ¤¤ËÆþ¤ê¡×¥Ü¥¿¥ó¤è¤ê¥¹¥È¥Ã¥¯¤·¤¿Êª·ï¤¬¤´³Îǧ失¤Þ¤¹¡ª
¤Þ¤¿¡¢Êª·ï¤Î°ì³ç¤ªÌ䤤¹ç¤»¤â¤Ç¤­¤Þ¤¹¤Î¤Ç¡¢ÂçÊÑÊØÍø¤Ç¤¹¡ª¤¼¤Ò¡¢¤´³èÍѲ¼¤µ¤¤¡ª

2763·ïÃæ 1369¡Á1392·ï¤òɽ¼¨¤·¤Æ¤¤¤Þ¤¹¡£

ʤÓÂØ¤¨¡§
 
 

🚉¡ÚÊÛÅ·Ä®¡Û±Ø ÅÌÊâ6ʬ

Âçºå»Ô¹Á¶è ÊÛÅ·Ä®¤ÎŹÊÞ¡¦¥Æ¥Ê¥ó¥ÈÄÂÂߤβèÁü
Âçºå»Ô¹Á¶è ÊÛÅ·Ä®¤ÎŹÊÞ¡¦¥Æ¥Ê¥ó¥ÈÄÂÂߤδּè¤ê²èÁü

¿·Ãۥǥ¶¥¤¥Ê¡¼¥º¤Î1³¬Ï©ÌÌŹ

-±ß
15.7ÄÚ¡Ê-㎡¡Ë

ÊÛÅ·Ä®¶á¤¯¤Î¿·Ãۥǥ¶¥¤¥Ê¡¼¥º¥Þ¥ó¥·¥ç¥ó¤Î1³¬Ï©ÌÌŹÊޤϤ¤¤«¤¬¤Ç¤·¤ç¤¦¤«¡©£±£µ..

🏬  Âçºå»Ô¹Á¶è°ëÏ©2
·Ú°û¿© Äê¿©¡¦»Å½Ð¤· ¥¢¥Ñ¥ì¥ë¡¦ÊªÈÎ ÍýÍÆ¼¼¡¦ÈþÍÆ¼¼ °åÎÅ¡¦É±¡¡¦¥¯¥ê¥Ë¥Ã¥¯ ¥¨¥¹¥Æ¡¦¥µ¥í¥ó Ï©ÌÌŹÊÞ ¥¹¥±¥ë¥È¥óŹÊÞ

🚉¡Ú¿´ºØ¶¶¡Û±Ø ÅÌÊâ3ʬ

Âçºå»ÔÃæ±û¶è ¿´ºØ¶¶¤ÎŹÊÞ¡¦¥Æ¥Ê¥ó¥ÈÄÂÂߤβèÁü
Âçºå»ÔÃæ±û¶è ¿´ºØ¶¶¤ÎŹÊÞ¡¦¥Æ¥Ê¥ó¥ÈÄÂÂߤδּè¤ê²èÁü

¡ÚÆîÁ¥¾ì£³¡Û¡¡°ìÅïÂߥӥë

-±ß
95.59ÄÚ¡Ê316㎡¡Ë

Ãæ±û¶èÆîÁ¥¾ì£³³Ñ°ìÅïÂߥӥëÆîÁ¥¾ì£³Ãϲ¼Å´¸æÆ²¶ÚÀþ¡¦Ä¹ËÙÄḫÎÐÃÏÀþ¡Ö¿´ºØ¶¶¡×±Ø..

🏬  Âçºå»ÔÃæ±û¶èÆîÁ¥¾ì3
·Ú°û¿© Äê¿©¡¦»Å½Ð¤· ¥Ð¡¼ ¥¢¥Ñ¥ì¥ë¡¦ÊªÈÎ ÍýÍÆ¼¼¡¦ÈþÍÆ¼¼ ¥Ú¥Ã¥È¥·¥ç¥Ã¥× °åÎÅ¡¦É±¡¡¦¥¯¥ê¥Ë¥Ã¥¯ ¥¨¥¹¥Æ¡¦¥µ¥í¥ó ¾¦Å¹³¹ ±Ø¶á µïÈ´¤­Å¹ÊÞ Â緿ŹÊÞ Ä¶°ìÅùÃÏ °ìÅïÂߤ· Ï©ÌÌŹÊÞ ¥¹¥±¥ë¥È¥óŹÊÞ

🚉¡ÚÅ·Ëþ¶¶¡Û±Ø ÅÌÊâ6ʬ

Âçºå»ÔÃæ±û¶è Å·Ëþ¶¶¤ÎŹÊÞ¡¦¥Æ¥Ê¥ó¥ÈÄÂÂߤβèÁü
Âçºå»ÔÃæ±û¶è Å·Ëþ¶¶¤ÎŹÊÞ¡¦¥Æ¥Ê¥ó¥ÈÄÂÂߤδּè¤ê²èÁü

½Å°û¿©ÁêÃ̲ġªÅ·Ëþ¶¶¤Î£±³¬Ï©ÌÌŹ

-±ß
9.4ÄÚ¡Ê31㎡¡Ë

¥ª¥Õ¥£¥¹¥Ó¥ë¤È½»µïÍÑ¥Þ¥ó¥·¥ç¥ó¤¬º®Æ±¤¹¤ëÅ·Ëþ¶¶¥¨¥ê¥¢¡ª½Å°û¿©²Äǽ¤Ê£±³¬Ï©ÌÌŹ..

🏬  Âçºå»ÔÃæ±û¶èÆâøϩĮ2
·Ú°û¿© ½Å°û¿© Äê¿©¡¦»Å½Ð¤· ¥Ð¡¼ ¥¢¥Ñ¥ì¥ë¡¦ÊªÈÎ ÍýÍÆ¼¼¡¦ÈþÍÆ¼¼ ±£¤ì²È µïÈ´¤­Å¹ÊÞ Ï©ÌÌŹÊÞ

🚉¡ÚÆî¿¹Ä®¡Û±Ø ÅÌÊâ3ʬ

Âçºå»ÔËÌ¶è Æî¿¹Ä®¤ÎŹÊÞ¡¦¥Æ¥Ê¥ó¥ÈÄÂÂߤβèÁü
Âçºå»ÔËÌ¶è Æî¿¹Ä®¤ÎŹÊÞ¡¦¥Æ¥Ê¥ó¥ÈÄÂÂߤδּè¤ê²èÁü

Æî¿¹Ä®¡¡¾ÆÄ»Å¹¡¡µïÈ´¤­¡¡¾¦Å¹³¹¶á¤·

-±ß
18.51ÄÚ¡Ê61.2㎡¡Ë

µ®½Å¤Ê½Å°û¿©ÁêÃÌŹÊÞ¡ªÅо졪Æî¿¹Ä®±Ø¶á¤¯¡¢Ï©ÃϤËÌ̤·¤¿Ï©ÌÌŹÊÞ¡£±£¤ì²ÈŪ¤ÊΩ..

🏬  Âçºå»ÔË̶èÅ·¿À¶¶1
·Ú°û¿© ½Å°û¿© Äê¿©¡¦»Å½Ð¤· ¾¦Å¹³¹ ±£¤ì²È ±Ø¶á µïÈ´¤­Å¹ÊÞ Ï©ÌÌŹÊÞ

🚉¡ÚÅìÍäÀî¡Û±Ø ÅÌÊâ1ʬ

Âçºå»ÔÅìÍäÀî¶è ÅìÍäÀî¤ÎŹÊÞ¡¦¥Æ¥Ê¥ó¥ÈÄÂÂߤβèÁü
Âçºå»ÔÅìÍäÀî¶è ÅìÍäÀî¤ÎŹÊÞ¡¦¥Æ¥Ê¥ó¥ÈÄÂÂߤδּè¤ê²èÁü

¡Ú¿·Âçºå¡Û±ØÁ°¡¡³ÑÃÏ¡¡Ï©ÌÌŹÊÞ

-±ß
12.8ÄÚ¡Ê42.4㎡¡Ë

ÅìÍäÀî¶èÀ¾Ã¸Ï©1ÃúÌÜÅ쳤ƻËÜÀþ¡ÖÅìÍäÀî¡×ÅÌÊâ20Éáֿ·Âçºå¡×¡õ¡ÖÅì»°¹ñ¡×¤Þ¤Ç..

🏬  Âçºå»ÔÅìÍäÀî¶èÀ¾Ã¸Ï©1
¥¢¥Ñ¥ì¥ë¡¦ÊªÈÎ ÍýÍÆ¼¼¡¦ÈþÍÆ¼¼ °åÎÅ¡¦É±¡¡¦¥¯¥ê¥Ë¥Ã¥¯ ¥¨¥¹¥Æ¡¦¥µ¥í¥ó ±Ø¶á Ï©ÌÌŹÊÞ ¥¹¥±¥ë¥È¥óŹÊÞ

🚉¡ÚÇßÅÄ¡Û±Ø ÅÌÊâ7ʬ

Âçºå»ÔË̶è ÇßÅĤÎŹÊÞ¡¦¥Æ¥Ê¥ó¥ÈÄÂÂߤβèÁü
Âçºå»ÔË̶è ÇßÅĤÎŹÊÞ¡¦¥Æ¥Ê¥ó¥ÈÄÂÂߤδּè¤ê²èÁü

¡Ú¿·ÃÛÏ©ÌÌ¡ÛÇßÅÄ¡¡Ï©ÌÌ¡¡Âç·¿

-±ß
110ÄÚ¡Ê-㎡¡Ë

µ¤¾Ý¾ðÊóÀè¹ÔÊ罸¡ª¡ª¸½ºß½×¹©Í½ÄêÆü¤âÄê¤Þ¤Ã¤Æ¤ª¤ê¤Þ¤»¤ó¤¬¡¢¡¢¡¢ÇßÅĤÎÂç·¿Ï©ÌÌ..

🏬  Âçºå»ÔË̶èÃæºêÀ¾3
·Ú°û¿© ¥¢¥Ñ¥ì¥ë¡¦ÊªÈÎ ÍýÍÆ¼¼¡¦ÈþÍÆ¼¼ °åÎÅ¡¦É±¡¡¦¥¯¥ê¥Ë¥Ã¥¯ ¥¨¥¹¥Æ¡¦¥µ¥í¥ó Â緿ŹÊÞ Ä¶°ìÅùÃÏ Ï©ÌÌŹÊÞ ¥¹¥±¥ë¥È¥óŹÊÞ

🚉¡ÚËÜÄ®¡Û±Ø ÅÌÊâ2ʬ

Âçºå»ÔÀ¾¶è ËÜÄ®¤ÎŹÊÞ¡¦¥Æ¥Ê¥ó¥ÈÄÂÂߤβèÁü
Âçºå»ÔÀ¾¶è ËÜÄ®¤ÎŹÊÞ¡¦¥Æ¥Ê¥ó¥ÈÄÂÂߤδּè¤ê²èÁü

Ãæ±ûÂçÄ̤ê±è¤¤¡¡Ï©ÌÌŹÊÞ¡¡

-±ß
36.53ÄÚ¡Ê-㎡¡Ë

Âçºå»ÔÀ¾¶è°¤ÇȺÂÃæ±ûÂçÄ̤ê±è¤¤¤Î1³¬Ï©ÌÌŹÊÞÃϲ¼Å´»Í¤Ä¶¶Àþ¡¦Ãæ±ûÀþ¤«¤éÅÌÊ⣲..

🏬  Âçºå»ÔÀ¾¶è°¤ÇȺÂ1
·Ú°û¿© ½Å°û¿© Äê¿©¡¦»Å½Ð¤· ¥Ð¡¼ ¥¢¥Ñ¥ì¥ë¡¦ÊªÈÎ ÍýÍÆ¼¼¡¦ÈþÍÆ¼¼ ¥Ú¥Ã¥È¥·¥ç¥Ã¥× °åÎÅ¡¦É±¡¡¦¥¯¥ê¥Ë¥Ã¥¯ ±Ø¶á ͰìÅùÃÏ Ï©ÌÌŹÊÞ ¥¹¥±¥ë¥È¥óŹÊÞ
 
 

Ãç²ð¼ÂÀÓ»öÎã

ŹÊÞ¤òÊÄŹ¡¦°Üž¤ò¹Í¤¨¤Æ¤¤¤ëÊý¤Ø ÊÄŹ¤ÎºÝ¤Ë¤É¤¦¤·¤Æ¤¤¤¤¤«¤ï¤«¤é¤Ê¤¤¡¢¸½¾õ¤Î¤Þ¤Þ¤Ç°úÅϤ·¤¬¤·¤¿¤¤¿Í¤Ø
°û¿©Å¹¤Î°Üž¡¦ÊÄŹ¤ÇǺ¤ó¤À¤é¤Þ¤º¤ÏÁêÃ̤¯¤À¤µ¤¤¡ª

¤ªÌòΩ¤Á¥³¥ó¥Æ¥ó¥Ä

  • ŹÊÞ³«¶È¤Þ¤Ç¤Î¥Õ¥í¡¼¥Á¥ã¡¼¥È
    ŹÊÞ³«¶È¤Þ¤Ç¤Î
    ¥Õ¥í¡¼¥Á¥ã¡¼¥È
  • ÂߏÊÞõ¤·¤«¤é·ÀÌó¤Îή¤ì
    ÂߏÊÞõ¤·
    ·ÀÌó¤Îή¤ì
 

ŹÊÞ¡¦¥Æ¥Ê¥ó¥È³«¶È ¤ªÌòΩ¤Á¾ðÊó

ŹÊÞʪ·ï¤ªÌòΩ¤Á¥Ê¥Ó ŹÊÞʪ·ïQ&A ÄÂÂߤÎÉÔÆ°»ºÍѸ콸
 
  • ΩÃϤθ«Êý
    ΩÃϤθ«Êý
  • ÂߏÊÞ¤ÎÃç²ð¼ÂÀÓ»öÎã
    ÂߏÊÞ¤Î
    Ãç²ð¼ÂÀÓ»öÎã
 
 

ŹÊÞ°ìÍ÷

Åö¥µ¥¤¥È¤Îʪ·ï¼è¤ê°·¤¤Å¹ÊޤǤ¹¡£

  • BRUNOÉÔÆ°»º³ô¼°²ñ¼Ò ¥¨¥¤¥Ö¥ë¥Í¥Ã¥È¥ï¡¼¥¯Èî¸å¶¶¤¦¤Ä¤Ü¸ø±àÁ°Å¹ 06-6459-4555
  • BRUNOÉÔÆ°»º³ô¼°²ñ¼Ò ¥¨¥¤¥Ö¥ë¥Í¥Ã¥È¥ï¡¼¥¯½»Ç·¹¾¸ø±àŹ 06-6657-7090
 
Copyright 2018. ©ÂߏÊÞNavi. ALL Rights Reserved.
ÂߏÊÞ¡¦µïÈ´¤­Å¹ÊÞ¡¦¥Æ¥Ê¥ó¥Èʪ·ï¾ðÊó ¥Ú¡¼¥¸¥È¥Ã¥×¤Ø