ǯËöǯ»Ï±Ä¶È¤Î¤ªÃΤ餻

Open

- MENU -

 
¸¡º÷¥á¥Ë¥å¡¼

¥«¥Æ¥´¥ê¤«¤éõ¤¹

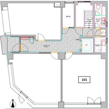
1³¬Ï©ÌÌŹÊÞ¡÷ºàÌÚÄ®

55ËüËü±ß ¡Ê¶¦¡§-¡Ë
28.38ÄÚ ¡ÊÀì¡§93.83㎡¡Ë
Âçºå»ÔÃæ±û¶èºàÌÚÄ® ¡¦ ºæ¶ÚËÜÄ®±Ø ÅÌÊâ7ʬ

Ãæ±û¶èºàÌÚÄ®2026ǯ3·îÃۤο·ÃÛʪ·ï¤Ë1³¬Ï©Ì̶è²èÊ罸¤¬½Ð¤Æ¤ª¤ê¤Þ¤¹¡£¾¾²°Ä®¶Ú¤ËÌ̤·¤Æ¤ª¤ê´Ö¸ý¤â¹­¤¯»ëǧÀ­¤Î¹â¤¤¤Ç¤¹¡£93.83­ÖÌó28.38ÄÚ¤ª¹¥¤ß¤ÎÆâÁõ¤òºî¤ê¤³¤á¤ë¥¹¥±¥ë¥È¥ó¾õÂÖ¡£ÈþÍÆ¼¼¤äÀ°Âα¢..

Ë̶èÌîºêĮϩÌÌŹÊÞ

13.2ËüËü±ß ¡Ê¶¦¡§0±ß¡Ë
6.65ÄÚ ¡ÊÀì¡§22㎡¡Ë
Âçºå»ÔË̶èÌîºêÄ® ¡¦ Æî¿¹Ä®±Ø ÅÌÊâ7ʬ

¥Ó¥¸¥Í¥¹¤È¥«¥ë¥Á¥ã¡¼¤¬Äø¤è¤¯º®¤¶¤ë¥¨¥ê¥¢¡£Æî¿¹Ä®¥¨¥ê¥¢¤è¤ê1³¬Ï©Ì̤ξ®µ¬ÌÏŹÊÞ¤¬Ê罸½Ð¤Þ¤·¤¿ËÙÀ¿À¼Ò¶á¤¯¤ÎÏ©Ì̶è²è¥ì¥È¥í¤Ê³°´Ñ¤¬Ìܤò°ú¤¯Å´¹ü¤3³¬·ú¤ÆÂçºå¥á¥È¥íëĮÀþ¡ÚÆî¿¹Ä®±Ø¡ÛÅÌÊâ7ʬ¤ÎΩÃϵサ¥¨..

±Ø¶á1ʬ¡ªºæ»Ô¤ÎÏ¿©µïÈ´¤­Å¹ÊÞ

39.93ËüËü±ß ¡Ê¶¦¡§33,000±ß¡Ë
132.7ÄÚ ¡ÊÀì¡§438.67㎡¡Ë
ºæ»Ôºæ¶èÂçÄ®Åì1ÃúÌÜ ¡¦ ºæ±Ø ÅÌÊâ10ʬ

º£²ó¤Ï¡¢ÂçºåÉܺæ»Ôºæ¶èÂçÄ®Åì¤Ë°ÌÃÖ¤¹¤ëÌ¥ÎÏŪ¤ÊÂߏÊÞ¤ò¤´¾Ò²ð¤·¤Þ¤¹¡£ºåºæÀþ¡Ö½É±¡±Ø¡×¤«¤éÅÌÊâ1ʬ¡¢¤µ¤é¤ËÆî³¤ËÜÀþ¡Öºæ±Ø¡×¤«¤é¤âÅÌÊâ10ʬ¤È¤¤¤¦¹¥Î©ÃϤǡ¢½¸µÒÎϤι⤤¥¨¥ê¥¢¤Ë°ÌÃÖ¤·¤Æ¤¤¤Þ¤¹¡£ËÜʪ·ï¤Ï1³¬..

ÅÚº´ËÙÄ̤ê±è¤¤¡¢1³¬Ï©ÌÌ

26.4ËüËü±ß ¡Ê¶¦¡§-¡Ë
18.46ÄÚ ¡ÊÀì¡§61.04㎡¡Ë
Âçºå»ÔÀ¾¶è¹¾¸ÍËÙ3ÃúÌÜ ¡¦ °¤ÇÈºÂ±Ø ÅÌÊâ8ʬ

Âçºå»ÔÀ¾¶è¹¾¸ÍËÙ3ÃúÌܤè¤ê»ëǧÀ­¤ÎÎɤ¤¡¢Ï©ÌÌŹÊÞ»ö̳½ê¤ÎÊ罸¤¬½Ð¤Þ¤·¤¿¡£ ÅÚº´ËÙÄ̤ê¤ËÌ̤¹¤ë1997ǯÃÛ¤ÎÅ´¹üÅ´¶Ú¥³¥ó¥¯¥ê¡¼¥È¤Âçºå¥á¥È¥íÃæ±ûÀþ/ÀéÆüÁ°Àþ¡Ú°¤ÇȺ±ءÛÅÌÊâ8ʬ¥·¥ã¥Ã¥¿¡¼ÉÕ¤­¤Î..

¡ÚÂçºå¡¦¿·Ä®¥¨¥ê¥¢¡Û3³¬·ú¤Æ°ìÅïÂߏÊÞ

42ËüËü±ß ¡Ê¶¦¡§0±ß¡Ë
47.7ÄÚ ¡ÊÀì¡§157.71㎡¡Ë
Âçºå»ÔÀ¾¶è¿·Ä®2ÃúÌÜ ¡¦ À¾Âç¶¶±Ø ÅÌÊâ3ʬ

Âçºå»ÔÀ¾¶è¿·Ä®2ÃúÌܤ˰ÌÃÖ¤¹¤ë¡¢Ì¥ÎÏŪ¤Ê°ìÅïÂߤ·Å¹ÊÞʪ·ï¤Î¤´¾Ò²ð¤Ç¤¹¡£Ä¹ËÙÄḫÎÐÃÏÀþ¡ÖÀ¾Âç¶¶¡×±Ø¤«¤éÅÌÊâÌó3ʬ¤È¤¤¤¦¹¥Î©ÃϤˤ¢¤ê¡¢½¸µÒÎϤò½Å»ë¤µ¤ì¤ë»ö¶È¼ÔÍͤˤԤ俤ê¤Îʪ·ï¤Ç¤¹¡£¼þÊդϥª¥Õ¥£¥¹¤ä½»Âð¤¬..

ð׸ø±à¶á¤¯¤Î¥³¥ó¥Ñ¥¯¥ÈŹÊÞ»ö̳½ê

20.9ËüËü±ß ¡Ê¶¦¡§0±ß¡Ë
10.98ÄÚ ¡ÊÀì¡§36.3㎡¡Ë
Âçºå»ÔÀ¾¶èð×ËÜÄ®1ÃúÌÜ ¡¦ ËÜÄ®±Ø ÅÌÊâ3ʬ

Âçºå»ÔÀ¾¶èËÜÄ®¥¨¥ê¥¢¤Ç¡¢¥¢¥¯¥»¥¹¤ÎÎɤ¤Å¹ÊÞ¡¦»ö̳½êʪ·ï¤ò¤ªÃµ¤·¤ÎÊý¤Ë¤ª¤¹¤¹¤á¤ÎÄÂÂß¾ðÊó¤ò¤´¾Ò²ð¤·¤Þ¤¹¡£Ãϲ¼Å´»Í¤Ä¶¶Àþ¡ÖËÜÄ®±Ø¡×¤«¤éÅÌÊâÌó3ʬ¤È¤¤¤¦Èó¾ï¤ËÊØÍø¤ÊΩÃϤˤ¢¤ê¤Þ¤¹¡£¼þÊդˤϥª¥Õ¥£¥¹¥Ó¥ë¤¬Â¿¤¯..

À¾¶è¹¾¸ÍË٤Σ±³¬Ï©ÌÌŹÊÞ

26.4ËüËü±ß ¡Ê¶¦¡§0±ß¡Ë
18.46ÄÚ ¡ÊÀì¡§61.04㎡¡Ë
Âçºå»ÔÀ¾¶è¹¾¸ÍËÙ3ÃúÌÜ ¡¦ °¤ÇÈºÂ±Ø ÅÌÊâ8ʬ

Âçºå»ÔÀ¾¶è¹¾¸ÍËÙ¥¨¥ê¥¢¤Ë¡¢»ëǧÀ­¤Î¹â¤¤´õ¾¯¤Ê1³¬Ï©ÌÌŹÊÞ¡Ö¥í¥¤¥ä¥ë¥Ó¥ë­µ¡×¤ÎÊ罸¤¬³«»Ï¤·¤Þ¤·¤¿¡£Ãϲ¼Å´³ÆÀþ¡Ö°¤ÇȺ¡ױؤ«¤éÅÌÊâ8ʬ¤È¤¤¤¦¥¢¥¯¥»¥¹¤ÎÎɤ¤Î©ÃϤˤ¢¤ê¡¢¥ª¥Õ¥£¥¹³¹¤È½»Â𥨥ꥢ¤¬º®ºß¤¹¤ë³èµ¤¤Î..

À¾¶èÀéÂåºê¤Î1³¬Ï©ÌÌŹÊÞ

29.7ËüËü±ß ¡Ê¶¦¡§-¡Ë
32.7ÄÚ ¡ÊÀì¡§108.1㎡¡Ë
Âçºå»ÔÀ¾¶èÀéÂåºê2ÃúÌÜ ¡¦ Âçºå¥É¡¼¥àÁ°ÀéÂåºê±Ø ÅÌÊâ2ʬ

º£²ó¤Ï¡¢Âçºå»ÔÀ¾¶èÀéÂåºê¤Ë°ÌÃÖ¤¹¤ëŹÊÞʪ·ï¡Ö¥µ¥ó¥é¥¤¥ºÀéÂåºê¡×¤ò¤´¾Ò²ð¤¤¤¿¤·¤Þ¤¹¡£¸½ºß¡¢´ü´Ö¸ÂÄê¤ÎÄÂÎÁ¥À¥¦¥ó¥­¥ã¥ó¥Ú¡¼¥ó¤ò¼Â»Ü¤·¤Æ¤ª¤ê¡¢Ä̾ïÄÂÎÁ330,000±ß¡ÊÀǹþ¡Ë¤Î¤È¤³¤í¡¢297,000±ß¡ÊÀǹþ..

¡ØÏ©ÌÌŹÊޡ٥ƥʥó¥È¡¦ÂߏÊÞʪ·ï°ìÍ÷

¹¹¤Ë¹Ê¤ê¹þ¤ó¤Ç¸¡º÷ ↕ (Click open)

ÄÂÎÁ
¡Á
 
¹­¤µ
¡Á
 
ÀßÈ÷

Âçºå¡ØÏ©ÌÌŹÊÞ¡Ù¤ÎŹÊÞʪ·ï¡¦¥Æ¥Ê¥ó¥È¤Î°ìÍ÷¤Ç¤¹¡£
Âߤ·Å¹ÊÞʪ·ï¤ò¿·Ãå½ç¤Ëɽ¼¨¤·¤Æ¤¤¤Þ¤¹¡£

µ¤¤Ë¤Ê¤ëʪ·ï¤¬¤¢¤ë¾ì¹ç¤Ï ¡Ö¤ªµ¤¤ËÆþ¤ê¡×¥Ü¥¿¥ó¤ò²¡¤·¤Æ¡¢Êª·ï¤ò¥¹¥È¥Ã¥¯¤¹¤ë»ö¤¬²Äǽ¤Ç¤¹¡ª
ËÜ¥µ¥¤¥È±¦¾å¤Î¡Ö¤ªµ¤¤ËÆþ¤ê¡×¥Ü¥¿¥ó¤è¤ê¥¹¥È¥Ã¥¯¤·¤¿Êª·ï¤¬¤´³Îǧ失¤Þ¤¹¡ª
¤Þ¤¿¡¢Êª·ï¤Î°ì³ç¤ªÌ䤤¹ç¤»¤â¤Ç¤­¤Þ¤¹¤Î¤Ç¡¢ÂçÊÑÊØÍø¤Ç¤¹¡ª¤¼¤Ò¡¢¤´³èÍѲ¼¤µ¤¤¡ª

2763·ïÃæ 1249¡Á1272·ï¤òɽ¼¨¤·¤Æ¤¤¤Þ¤¹¡£

ʤÓÂØ¤¨¡§
 
 

🚉¡Úº£Î¤¡Û±Ø ÅÌÊâ1ʬ

Âçºå»ÔÅìÀ®¶è º£Î¤¤ÎŹÊÞ¡¦¥Æ¥Ê¥ó¥ÈÄÂÂߤβèÁü
Âçºå»ÔÅìÀ®¶è º£Î¤¤ÎŹÊÞ¡¦¥Æ¥Ê¥ó¥ÈÄÂÂߤδּè¤ê²èÁü

±ØÁ°¡¡1³¬Ï©ÌÌŹÊÞ

-±ß
15ÄÚ¡Ê-㎡¡Ë

ÀéÆüÁ°Àþ¡¦º£Î¤¶ÚÀþº£Î¤±ØÁ°¤Î1³¬Ï©ÌÌŹÊÞ¤¬Ê罸³«»Ï¤Ç¤¹¡£¸½ºß¤Ï·ÈÂÓ¥·¥ç¥Ã¥×±Ä..

🏬  Âçºå»ÔÅìÀ®¶èÂ纣Τ3
¥¢¥Ñ¥ì¥ë¡¦ÊªÈÎ ÍýÍÆ¼¼¡¦ÈþÍÆ¼¼ ¥¨¥¹¥Æ¡¦¥µ¥í¥ó ±Ø¶á Ï©ÌÌŹÊÞ ¥¹¥±¥ë¥È¥óŹÊÞ

🚉¡ÚÇßÅÄ¡Û±Ø ÅÌÊâ7ʬ

Âçºå»ÔË̶è ÇßÅĤÎŹÊÞ¡¦¥Æ¥Ê¥ó¥ÈÄÂÂߤβèÁü
Âçºå»ÔË̶è ÇßÅĤÎŹÊÞ¡¦¥Æ¥Ê¥ó¥ÈÄÂÂߤδּè¤ê²èÁü

ÅìÄ̤ê°ìÅïÂߤ·Ï©ÌÌŹÊÞ

-±ß
11ÄÚ¡Ê-㎡¡Ë

Âçºå»ÔË̶辮¾¾¸¶Ä®¿ÍÄ̤ê£Í£Á£Ø¤ÊÅìÄ̤ê¤Î°ìÅùÃÏ1³¬Éôʬ¤Ï¥¹¥±¥ë¥È¥ó2³¬¡Á3³¬..

🏬  Âçºå»ÔË̶辮¾¾¸¶Ä®
·Ú°û¿© Äê¿©¡¦»Å½Ð¤· ¥Ð¡¼ ¥¢¥Ñ¥ì¥ë¡¦ÊªÈÎ ÍýÍÆ¼¼¡¦ÈþÍÆ¼¼ ¥Ú¥Ã¥È¥·¥ç¥Ã¥× °åÎÅ¡¦É±¡¡¦¥¯¥ê¥Ë¥Ã¥¯ ¥¨¥¹¥Æ¡¦¥µ¥í¥ó ¾¦Å¹³¹ µïÈ´¤­Å¹ÊÞ Â緿ŹÊÞ Ä¶°ìÅùÃÏ °ìÅïÂߤ· Ï©ÌÌŹÊÞ ¥¹¥±¥ë¥È¥óŹÊÞ

🚉¡ÚëĮϻÃúÌÜ¡Û±Ø ÅÌÊâ2ʬ

Âçºå»ÔÃæ±û¶è ëĮϻÃúÌܤÎŹÊÞ¡¦¥Æ¥Ê¥ó¥ÈÄÂÂߤβèÁü
Âçºå»ÔÃæ±û¶è ëĮϻÃúÌܤÎŹÊÞ¡¦¥Æ¥Ê¥ó¥ÈÄÂÂߤδּè¤ê²èÁü

¶õËÙ¾¦Å¹³¹¡¡£±³¬¡¡Å¹ÊÞ

-±ß
7.2ÄÚ¡Ê23.83㎡¡Ë

ëĮϻÃúÌܶõËÙ¾¦Å¹³¹¤ËÌ̤¹Ìó£·¡¥£¸ÄڤΣ±³¬Ï©ÌÌŹÊÞ¡£ºÇ´ó±ØÃ«Ä®¡¦Ä¹ËÙÄḫÎÐÃÏ..

🏬  Âçºå»ÔÃæ±û¶èëĮ6
¥¢¥Ñ¥ì¥ë¡¦ÊªÈÎ °åÎÅ¡¦É±¡¡¦¥¯¥ê¥Ë¥Ã¥¯ ±Ø¶á Ï©ÌÌŹÊÞ ¥¹¥±¥ë¥È¥óŹÊÞ

🚉¡ÚÀéÎÓ¡Û±Ø ÅÌÊâ2ʬ

Âçºå»Ô°°¶è ÀéÎӤΏÊÞ¡¦¥Æ¥Ê¥ó¥ÈÄÂÂߤβèÁü
Âçºå»Ô°°¶è ÀéÎӤΏÊÞ¡¦¥Æ¥Ê¥ó¥ÈÄÂÂߤδּè¤ê²èÁü

¡ÚÀéÎÓ¡Û¡¡±Ø¶á¡¡£±³¬Ï©ÌÌŹÊÞ

-±ß
24.81ÄÚ¡Ê82㎡¡Ë

°°¶èÀéÎÓ¾¦Å¹³¹£±³¬Ï©ÌÌŹÊÞ¥·¥ã¥Ã¥¿¡¼ÉÕ¤­³Ñ¡ÚÀéÎÓ¾¦Å¹³¹¡ÛµþºåËÜÀþ¡ÖÀéÎÓ¡×±ØÅÌ..

🏬  Âçºå»Ô°°¶èÀéÎÓ1
·Ú°û¿© Äê¿©¡¦»Å½Ð¤· ¥Ð¡¼ ¥¢¥Ñ¥ì¥ë¡¦ÊªÈÎ ÍýÍÆ¼¼¡¦ÈþÍÆ¼¼ °åÎÅ¡¦É±¡¡¦¥¯¥ê¥Ë¥Ã¥¯ ¥¨¥¹¥Æ¡¦¥µ¥í¥ó ¾¦Å¹³¹ ±£¤ì²È ±Ø¶á µïÈ´¤­Å¹ÊÞ Ï©ÌÌŹÊÞ

🚉¡Ú¿ËÃæÌî¡Û±Ø ÅÌÊâ3ʬ

Âçºå»ÔÅì½»µÈ¶è ¿ËÃæÌî¤ÎŹÊÞ¡¦¥Æ¥Ê¥ó¥ÈÄÂÂߤβèÁü
Âçºå»ÔÅì½»µÈ¶è ¿ËÃæÌî¤ÎŹÊÞ¡¦¥Æ¥Ê¥ó¥ÈÄÂÂߤδּè¤ê²èÁü

Âë¹ç¾¦Å¹³¹¤Î½»ÂðÉÕŹÊÞ

-±ß
36ÄÚ¡Ê-㎡¡Ë

Âë¹ç¾¦Å¹³¹¤Î½»ÂðÉÕŹÊޤǤ¹¡£¾¦Å¹³¹Å¹ÊޤǤ¹¤Î¤Ç¿ÍÄ̤ê¤â¿¤¯¤´¼«Âð¤â¤ªÅ¹¤â¤Ã¤Æ..

🏬  Âçºå»ÔÅì½»µÈ¶èÂë¹ç2
·Ú°û¿© Äê¿©¡¦»Å½Ð¤· ¥¢¥Ñ¥ì¥ë¡¦ÊªÈÎ ÍýÍÆ¼¼¡¦ÈþÍÆ¼¼ ¥¨¥¹¥Æ¡¦¥µ¥í¥ó ¾¦Å¹³¹ ±Ø¶á Ï©ÌÌŹÊÞ

🚉¡ÚËÌÉÍ¡Û±Ø ÅÌÊâ2ʬ

Âçºå»ÔÃæ±û¶è ËÌÉͤÎŹÊÞ¡¦¥Æ¥Ê¥ó¥ÈÄÂÂߤβèÁü
Âçºå»ÔÃæ±û¶è ËÌÉͤÎŹÊÞ¡¦¥Æ¥Ê¥ó¥ÈÄÂÂߤδּè¤ê²èÁü

ËÌÉÍ¡¡£±ÅŹÊÞ

-±ß
35ÄÚ¡Ê115.56㎡¡Ë

ËÌÉÍ£±ÃúÌÜ¥ê¥Ð¡¼¥µ¥¤¥É¤Î°ìÅïÂߤ·Å¹ÊޤΤ´¾Ò²ð¡£ºÇ´ó±ØÃϲ¼Å´ºæ¶ÚÀþ¡¦µþºåËÜÀþËÌ..

🏬  Âçºå»ÔÃæ±û¶èËÌÉÍ1
·Ú°û¿© ½Å°û¿© Äê¿©¡¦»Å½Ð¤· ¥Ð¡¼ ¥¢¥Ñ¥ì¥ë¡¦ÊªÈÎ ÍýÍÆ¼¼¡¦ÈþÍÆ¼¼ °åÎÅ¡¦É±¡¡¦¥¯¥ê¥Ë¥Ã¥¯ ¥¨¥¹¥Æ¡¦¥µ¥í¥ó ±Ø¶á °ìÅïÂߤ· Ï©ÌÌŹÊÞ ¥¹¥±¥ë¥È¥óŹÊÞ

🚉¡ÚÌî¹¾¡Û±Ø ÅÌÊâ5ʬ

Âçºå»Ô¾ëÅì¶è Ìî¹¾¤ÎŹÊÞ¡¦¥Æ¥Ê¥ó¥ÈÄÂÂߤβèÁü
Âçºå»Ô¾ëÅì¶è Ìî¹¾¤ÎŹÊÞ¡¦¥Æ¥Ê¥ó¥ÈÄÂÂߤδּè¤ê²èÁü

¥ª¥·¥ã¥ì¤Ê°û¿©ÈþÁõŹÊÞ

-±ß
11ÄÚ¡Ê-㎡¡Ë

¾ëÅì¶èÌî¹¾3ÃúÌܤʤ«¤Ê¤«¥Ç¥£¡¼¥×¤ÊÈþÁõ°û¿©Å¹ÊÞ¥«¥Õ¥§¤äµï¼ò²°¤Ê¤ÉÉý¹­¤¯£Ï£ËÃæ..

🏬  Âçºå»Ô¾ëÅì¶èÌî¹¾3
·Ú°û¿© ½Å°û¿© Äê¿©¡¦»Å½Ð¤· ¥Ð¡¼ ±£¤ì²È ±Ø¶á µïÈ´¤­Å¹ÊÞ Ï©ÌÌŹÊÞ

🚉¡Ú¤Ê¤ó¤Ð¡Û±Ø ÅÌÊâ10ʬ

Âçºå»Ôϲ®¶è ¤Ê¤ó¤Ð¤ÎŹÊÞ¡¦¥Æ¥Ê¥ó¥ÈÄÂÂߤβèÁü
Âçºå»Ôϲ®¶è ¤Ê¤ó¤Ð¤ÎŹÊÞ¡¦¥Æ¥Ê¥ó¥ÈÄÂÂߤδּè¤ê²èÁü

°û¿©Å¹µïÈ´¤­5ÄÚ¡ª¸µÄ®2ÃúÌÜ

-±ß
5ÄÚ¡Ê16.5㎡¡Ë

Âçºå»Ôϲ®¶è¸µÄ®2ÃúÌÜ1³¬Ï©ÌÌŹ5ÄÚ²ÈÄÂ10Ëü±ß4¿Í³Ý¤±¥Æ¡¼¥Ö¥ë2¥»¥Ã¥È¥«¥¦..

🏬  Âçºå»Ôϲ®¶è¸µÄ®2
·Ú°û¿© ½Å°û¿© Äê¿©¡¦»Å½Ð¤· µïÈ´¤­Å¹ÊÞ Ï©ÌÌŹÊÞ

🚉¡ÚÅÔÅç¡Û±Ø ÅÌÊâ5ʬ

Âçºå»ÔÅÔÅç¶è ÅÔÅç¤ÎŹÊÞ¡¦¥Æ¥Ê¥ó¥ÈÄÂÂߤβèÁü
Âçºå»ÔÅÔÅç¶è ÅÔÅç¤ÎŹÊÞ¡¦¥Æ¥Ê¥ó¥ÈÄÂÂߤδּè¤ê²èÁü

ÅÔÅç±ØÅÌÊâ·÷¤Î1³¬Ï©ÌÌŹ

-±ß
23ÄÚ¡Ê-㎡¡Ë

ÅÔÅç±ØÅÌÊâ·÷¤Î1³¬Ï©Ì̵ï¼ò²°µïÈ´¤­Êª·ï¤Ç¤¹¡£µï¼ò²°¤Ï¤â¤Á¤í¤ó¤Î¤³¤È¥«¥Õ¥§¤äÍÎ..

🏬  Âçºå»ÔÅÔÅç¶èÅÔÅçËÜÄÌ3
·Ú°û¿© Äê¿©¡¦»Å½Ð¤· ±Ø¶á µïÈ´¤­Å¹ÊÞ Ï©ÌÌŹÊÞ

🚉¡Ú¿´ºØ¶¶¡Û±Ø ÅÌÊâ3ʬ

Âçºå»ÔÃæ±û¶è ¿´ºØ¶¶¤ÎŹÊÞ¡¦¥Æ¥Ê¥ó¥ÈÄÂÂߤβèÁü
Âçºå»ÔÃæ±û¶è ¿´ºØ¶¶¤ÎŹÊÞ¡¦¥Æ¥Ê¥ó¥ÈÄÂÂߤδּè¤ê²èÁü

¡ÚÆîÁ¥¾ì£³¡Û¡¡£±³¬Ï©ÌÌ¡¡Å¹ÊÞ

-±ß
45.84ÄÚ¡Ê151.54㎡¡Ë

Ãæ±û¶èÆîÁ¥¾ì£±³¬Ï©ÌÌŹÊÞ¡ÚÆîÁ¥¾ì£³¡ÛÃϲ¼Å´¸æÆ²¶ÚÀþ¡¦Ä¹ËÙÄḫÎÐÃÏÀþ¡¦ºæ¶ÚÀþ¡Ö..

🏬  Âçºå»ÔÃæ±û¶èÆîÁ¥¾ì3
¥¢¥Ñ¥ì¥ë¡¦ÊªÈÎ °åÎÅ¡¦É±¡¡¦¥¯¥ê¥Ë¥Ã¥¯ ¥¨¥¹¥Æ¡¦¥µ¥í¥ó ±Ø¶á Â緿ŹÊÞ Ä¶°ìÅùÃÏ Ï©ÌÌŹÊÞ

🚉¡Ú¿´ºØ¶¶¡Û±Ø ÅÌÊâ2ʬ

Âçºå»ÔÃæ±û¶è ¿´ºØ¶¶¤ÎŹÊÞ¡¦¥Æ¥Ê¥ó¥ÈÄÂÂߤβèÁü
Âçºå»ÔÃæ±û¶è ¿´ºØ¶¶¤ÎŹÊÞ¡¦¥Æ¥Ê¥ó¥ÈÄÂÂߤδּè¤ê²èÁü

ޱŽÊŽßŽÚŽÙʪÈÎÆîÁ¥¾ì£´ÃúÌÜŹÊÞ¡ª

-±ß
26.26ÄÚ¡Ê86.65㎡¡Ë

Âçºå¼çÍ×ÀþÏ©¸æÆ²¶ÚÀþ»Í¤Ä¶¶Àþ¿´ºØ¶¶±Ø½Ð¸ý¤è¤êÅÌÊ⣲ʬÆîÁ¥¾ì£´ÃúÌÜ¡ª¥¬¥¹Ìµ¤·°û..

🏬  Âçºå»ÔÃæ±û¶èÆîÁ¥¾ì4
¥¢¥Ñ¥ì¥ë¡¦ÊªÈÎ ±Ø¶á Ï©ÌÌŹÊÞ

🚉¡Úưʪ±àÁ°¡Û±Ø ÅÌÊâ3ʬ

Âçºå»Ôϲ®¶è ưʪ±àÁ°¤ÎŹÊÞ¡¦¥Æ¥Ê¥ó¥ÈÄÂÂߤβèÁü
Âçºå»Ôϲ®¶è ưʪ±àÁ°¤ÎŹÊÞ¡¦¥Æ¥Ê¥ó¥ÈÄÂÂß ²èÁü½àÈ÷Ãæ

¸µ¥Ó¥Ç¥ª²°°û¿©±þÁêÃÌÏ©ÌÌŹ

-±ß
38.7ÄÚ¡Ê127.93㎡¡Ë

ϲ®¶è·ÃÈþ¿ÜÀ¾£³ÃúÌÜÃϲ¼Å´ºæ¶ÚÀþưʪ±àÁ°±ØÅÌÊ⣳ʬ¥É¥ó¥­¥Û¡¼¥Æ¼Ð¤áÁ°ÂçÄ̤ê±è..

🏬  Âçºå»Ôϲ®¶è·ÃÈþ¿ÜÀ¾3
·Ú°û¿© ¥¢¥Ñ¥ì¥ë¡¦ÊªÈÎ ±Ø¶á Ï©ÌÌŹÊÞ
 
 

Ãç²ð¼ÂÀÓ»öÎã

ŹÊÞ¤òÊÄŹ¡¦°Üž¤ò¹Í¤¨¤Æ¤¤¤ëÊý¤Ø ÊÄŹ¤ÎºÝ¤Ë¤É¤¦¤·¤Æ¤¤¤¤¤«¤ï¤«¤é¤Ê¤¤¡¢¸½¾õ¤Î¤Þ¤Þ¤Ç°úÅϤ·¤¬¤·¤¿¤¤¿Í¤Ø
°û¿©Å¹¤Î°Üž¡¦ÊÄŹ¤ÇǺ¤ó¤À¤é¤Þ¤º¤ÏÁêÃ̤¯¤À¤µ¤¤¡ª

¤ªÌòΩ¤Á¥³¥ó¥Æ¥ó¥Ä

  • ŹÊÞ³«¶È¤Þ¤Ç¤Î¥Õ¥í¡¼¥Á¥ã¡¼¥È
    ŹÊÞ³«¶È¤Þ¤Ç¤Î
    ¥Õ¥í¡¼¥Á¥ã¡¼¥È
  • ÂߏÊÞõ¤·¤«¤é·ÀÌó¤Îή¤ì
    ÂߏÊÞõ¤·
    ·ÀÌó¤Îή¤ì
 

ŹÊÞ¡¦¥Æ¥Ê¥ó¥È³«¶È ¤ªÌòΩ¤Á¾ðÊó

ŹÊÞʪ·ï¤ªÌòΩ¤Á¥Ê¥Ó ŹÊÞʪ·ïQ&A ÄÂÂߤÎÉÔÆ°»ºÍѸ콸
 
  • ΩÃϤθ«Êý
    ΩÃϤθ«Êý
  • ÂߏÊÞ¤ÎÃç²ð¼ÂÀÓ»öÎã
    ÂߏÊÞ¤Î
    Ãç²ð¼ÂÀÓ»öÎã
 
 

ŹÊÞ°ìÍ÷

Åö¥µ¥¤¥È¤Îʪ·ï¼è¤ê°·¤¤Å¹ÊޤǤ¹¡£

  • BRUNOÉÔÆ°»º³ô¼°²ñ¼Ò ¥¨¥¤¥Ö¥ë¥Í¥Ã¥È¥ï¡¼¥¯Èî¸å¶¶¤¦¤Ä¤Ü¸ø±àÁ°Å¹ 06-6459-4555
  • BRUNOÉÔÆ°»º³ô¼°²ñ¼Ò ¥¨¥¤¥Ö¥ë¥Í¥Ã¥È¥ï¡¼¥¯½»Ç·¹¾¸ø±àŹ 06-6657-7090
 
Copyright 2018. ©ÂߏÊÞNavi. ALL Rights Reserved.
ÂߏÊÞ¡¦µïÈ´¤­Å¹ÊÞ¡¦¥Æ¥Ê¥ó¥Èʪ·ï¾ðÊó ¥Ú¡¼¥¸¥È¥Ã¥×¤Ø