ǯËöǯ»Ï±Ä¶È¤Î¤ªÃΤ餻

Open

- MENU -

 
¸¡º÷¥á¥Ë¥å¡¼

¥«¥Æ¥´¥ê¤«¤éõ¤¹

±Ø¶á1ʬ¡ªºæ»Ô¤ÎÏ¿©µïÈ´¤­Å¹ÊÞ

39.93ËüËü±ß ¡Ê¶¦¡§33,000±ß¡Ë
132.7ÄÚ ¡ÊÀì¡§438.67㎡¡Ë
ºæ»Ôºæ¶èÂçÄ®Åì1ÃúÌÜ ¡¦ ºæ±Ø ÅÌÊâ10ʬ

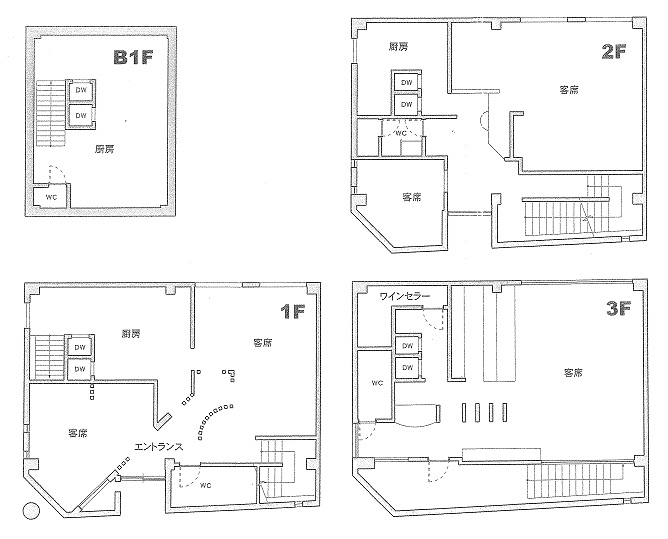
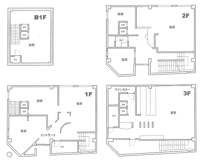
º£²ó¤Ï¡¢ÂçºåÉܺæ»Ôºæ¶èÂçÄ®Åì¤Ë°ÌÃÖ¤¹¤ëÌ¥ÎÏŪ¤ÊÂߏÊÞ¤ò¤´¾Ò²ð¤·¤Þ¤¹¡£ºåºæÀþ¡Ö½É±¡±Ø¡×¤«¤éÅÌÊâ1ʬ¡¢¤µ¤é¤ËÆî³¤ËÜÀþ¡Öºæ±Ø¡×¤«¤é¤âÅÌÊâ10ʬ¤È¤¤¤¦¹¥Î©ÃϤǡ¢½¸µÒÎϤι⤤¥¨¥ê¥¢¤Ë°ÌÃÖ¤·¤Æ¤¤¤Þ¤¹¡£ËÜʪ·ï¤Ï1³¬..

¡ÚÊ¡Åç¡Û½Å°û¿©ÁêÃ̲Ģö1ÅïÂߥӥë

60ËüËü±ß ¡Ê¶¦¡§0±ß¡Ë
42.4ÄÚ ¡ÊÀì¡§140.19㎡¡Ë
Âçºå»ÔÊ¡Åç¶èÊ¡Åç2ÃúÌÜ ¡¦ ¿·Ê¡Åç±Ø ÅÌÊâ4ʬ

Ê¡Å票¥ê¥¢¤Ç¼Â¸½¤¹¤ë¿ºÌ¤Ê¥Ó¥¸¥Í¥¹Å¸³« ¡½ °ìÅï¥Ó¥ë³èÍѤÎÌ¥ÎÏ ¡½Âçºå¡¦Ê¡Å票¥ê¥¢¤Ï¡¢°û¿©Å¹¤ä¥«¥Õ¥§¡¢¥¯¥ê¥¨¥¤¥Æ¥£¥Ö¤Ê¥·¥ç¥Ã¥×¤¬½¸¤Þ¤ë¿Íµ¤¤Î³¹¤È¤·¤Æ¡¢¶áǯ¤Þ¤¹¤Þ¤¹ÃíÌܤò½¸¤á¤Æ¤¤¤Þ¤¹¡£ÇßÅĤ«¤é¤â¤Û¤É¶á¤¯..

¡ÚÂçºå¡¦¿·Ä®¥¨¥ê¥¢¡Û3³¬·ú¤Æ°ìÅïÂߏÊÞ

42ËüËü±ß ¡Ê¶¦¡§0±ß¡Ë
47.7ÄÚ ¡ÊÀì¡§157.71㎡¡Ë
Âçºå»ÔÀ¾¶è¿·Ä®2ÃúÌÜ ¡¦ À¾Âç¶¶±Ø ÅÌÊâ3ʬ

Âçºå»ÔÀ¾¶è¿·Ä®2ÃúÌܤ˰ÌÃÖ¤¹¤ë¡¢Ì¥ÎÏŪ¤Ê°ìÅïÂߤ·Å¹ÊÞʪ·ï¤Î¤´¾Ò²ð¤Ç¤¹¡£Ä¹ËÙÄḫÎÐÃÏÀþ¡ÖÀ¾Âç¶¶¡×±Ø¤«¤éÅÌÊâÌó3ʬ¤È¤¤¤¦¹¥Î©ÃϤˤ¢¤ê¡¢½¸µÒÎϤò½Å»ë¤µ¤ì¤ë»ö¶È¼ÔÍͤˤԤ俤ê¤Îʪ·ï¤Ç¤¹¡£¼þÊդϥª¥Õ¥£¥¹¤ä½»Âð¤¬..

¿·Ä®2ÃúÌÜ1ÅïÂߏÊÞ

42ËüËü±ß ¡Ê¶¦¡§0±ß¡Ë
47.7ÄÚ ¡ÊÀì¡§157.71㎡¡Ë
Âçºå»ÔÀ¾¶è¿·Ä®2ÃúÌÜ ¡¦ À¾Âç¶¶±Ø ÅÌÊâ3ʬ

¿·Ä®¤Ç³ð¤¨¤ë¡¢´¶Å٤ι⤤¥·¥ç¥Ã¥×¤Å¤¯¤ê ¡½ 1ÅïÂߤ·Å¹ÊޤȤ¤¤¦ÆÃÊ̤ÊÁªÂò ¤ª¤·¤ã¤ì¤Ê¥·¥ç¥Ã¥×¤ä¥«¥Õ¥§¡¢¥¯¥ê¥¨¥¤¥Æ¥£¥Ö¤Ê¥ª¥Õ¥£¥¹¤¬½¸¤Þ¤ë¿Íµ¤¥¨¥ê¥¢¡¢¿·Ä®¡£Íî¤ÁÃ夤¤¿³¹Ê¤ߤÈÀöÎý¤µ¤ì¤¿Ê·°Ïµ¤¤¬¶¦..

ëĮϻÃúÌܤËÐʤà¸Å̱²È°ìÅïŹÊÞ

22ËüËü±ß ¡Ê¶¦¡§-¡Ë
22.3ÄÚ ¡ÊÀì¡§73.73㎡¡Ë
Âçºå»ÔÃæ±û¶èëĮ¡Ê£¶¡Á£¹ÃúÌÜ¡Ë6ÃúÌÜ ¡¦ ëĮϻÃúÌÜ±Ø ÅÌÊâ3ʬ

Îò»Ë¤¢¤ë³¹Ê¤ߤËÍϤ±¹þ¤àÌ¥ÎÏŪ¤Ê»ö¶ÈÍÑʪ·ïÂçºå»ÔÃæ±û¶èëĮ6ÃúÌܤˡ¢Îò»Ë¤¢¤ë³¹Ê¤ߤËÍϤ±¹þ¤à¸Å̱²È°ìÅïŹÊÞ¡¦»ö̳½êʪ·ï¤¬Åо줷¤Þ¤·¤¿¡£Íî¤ÁÃ夤¤¿Ê·°Ïµ¤¤¬Ì¥ÎϤÎëĮ¥¨¥ê¥¢¤Ç¡¢¸ÄÀ­Åª¤Ê¤ªÅ¹¤ä¾®¤µ¤¯¤Æ¤â¶¯¤¤..

¡ÚÂçºå¡¦¹¾¸ÍËÙ1ÃúÌÜ¡ÛÊØÍø¤ÊΩÃϤÎÂߏÊÞ

33ËüËü±ß ¡Ê¶¦¡§-¡Ë
16.04ÄÚ ¡ÊÀì¡§53.05㎡¡Ë
Âçºå»ÔÀ¾¶è¹¾¸ÍËÙ1ÃúÌÜ ¡¦ Èî¸å¶¶±Ø ÅÌÊâ2ʬ

Âçºå»ÔÀ¾¶è¡¢¥Ó¥¸¥Í¥¹³¹¤È¤·¤Æ¿Íµ¤¤Î¹â¤¤¹¾¸ÍËÙ1ÃúÌܤˡ¢»È¤¤¾¡¼ê¤ÎÎɤ¤2³¬·ú¤ÆÂߏÊÞ¤¬Ê罸¤µ¤ì¤Æ¤¤¤Þ¤¹¡£ºÇ´ó¤ê¤Ï»Í¤Ä¶¶Àþ¡ÖÈî¸å¶¶±Ø¡×¤«¤éÅÌÊâ¤ï¤º¤«2ʬ¡£¸æÆ²¶ÚÀþ¡ÖÍä²°¶¶±Ø¡×¤Ø¤âÅÌÊâ·÷Æâ¤Ç¡¢¥ª¥Õ¥£¥¹¥ï¡¼¥«..

Èî¸å¶¶±Ø¶á¤¯¡¢Îò»Ë¤¢¤ë¸Å̱²ÈŹÊÞ¤ÎÌ¥ÎÏ

33ËüËü±ß ¡Ê¶¦¡§0±ß¡Ë
14.27ÄÚ ¡ÊÀì¡§47.2㎡¡Ë
Âçºå»ÔÀ¾¶è¹¾¸ÍËÙ1ÃúÌÜ ¡¦ Èî¸å¶¶±Ø ÅÌÊâ5ʬ

Âçºå¡¦Èî¸å¶¶¥¨¥ê¥¢¤Ç¡¢¤É¤³¤«²û¤«¤·¤µ¤ò´¶¤¸¤ë¡Ö¸Å̱²Èʪ·ï¡×¤ò¤´¾Ò²ð¤·¤Þ¤¹¡£¥Ó¥¸¥Í¥¹³¹¤ÎÃæ¤Ë¤Ò¤Ã¤½¤ê¤ÈÐʤàÌÚ¤2³¬·ú¤Æ¤ÎŹÊޤǡ¢µþºåÅÅÅ´ÃæÇ·ÅçÀþ¡ÖÅÏÊÕ¶¶±Ø¡×¤«¤éÅÌÊâ9ʬÂçºå¥á¥È¥í»Í¤Ä¶¶Àþ¡ÖÈî¸å¶¶±Ø¡×¤«¤é..

ÃÛÀõ¡Úð׸ø±à¶á¤¯¡Û½Å°û¿©¤âÁêÃ̲Äǽ¡ª

38.28ËüËü±ß ¡Ê¶¦¡§0±ß¡Ë
14.86ÄÚ ¡ÊÀì¡§49.14㎡¡Ë
Âçºå»ÔÀ¾¶èð×ËÜÄ®2ÃúÌÜ ¡¦ °¤ÇÈºÂ±Ø ÅÌÊâ6ʬ

Âçºå»ÔÀ¾¶è¡¦ð×ËÜÄ®2ÃúÌܤˡ¢´õ¾¯¤Ê¡Ö1ÅïÂߤ·¡×ʪ·ï¤¬Åо줷¤Þ¤·¤¿¡£ËÜÄ®±Ø¤«¤éÅÌÊâ6ʬ¡¢°¤ÇȺ±ؤ«¤éÅÌÊâ7ʬ¤È¥¢¥¯¥»¥¹¤âÎɤ¯¡¢¶áÎ٤ˤÏÎÐË­¤«¤Êð׸ø±à¤¬¹­¤¬¤ë¿Íµ¤¥¨¥ê¥¢¤Ç¤¹¡£ËÜÄ®¼þÊÕ¤ÇŹÊÞŸ³«¤ò¸¡Æ¤¤·¤Æ¤¤..

¡Ø°ìÅïÂߤ·¡¦Âߤ·¥Ó¥ë¡Ù¥Æ¥Ê¥ó¥È¡¦ÂߏÊÞʪ·ï°ìÍ÷

¹¹¤Ë¹Ê¤ê¹þ¤ó¤Ç¸¡º÷ ↕ (Click open)

ÄÂÎÁ
¡Á
 
¹­¤µ
¡Á
 
ÀßÈ÷

Âçºå¡Ø°ìÅïÂߤ·¡¦Âߤ·¥Ó¥ë¡Ù¤ÎŹÊÞʪ·ï¡¦¥Æ¥Ê¥ó¥È¤Î°ìÍ÷¤Ç¤¹¡£
Âߤ·Å¹ÊÞʪ·ï¤ò¿·Ãå½ç¤Ëɽ¼¨¤·¤Æ¤¤¤Þ¤¹¡£

µ¤¤Ë¤Ê¤ëʪ·ï¤¬¤¢¤ë¾ì¹ç¤Ï ¡Ö¤ªµ¤¤ËÆþ¤ê¡×¥Ü¥¿¥ó¤ò²¡¤·¤Æ¡¢Êª·ï¤ò¥¹¥È¥Ã¥¯¤¹¤ë»ö¤¬²Äǽ¤Ç¤¹¡ª
ËÜ¥µ¥¤¥È±¦¾å¤Î¡Ö¤ªµ¤¤ËÆþ¤ê¡×¥Ü¥¿¥ó¤è¤ê¥¹¥È¥Ã¥¯¤·¤¿Êª·ï¤¬¤´³Îǧ失¤Þ¤¹¡ª
¤Þ¤¿¡¢Êª·ï¤Î°ì³ç¤ªÌ䤤¹ç¤»¤â¤Ç¤­¤Þ¤¹¤Î¤Ç¡¢ÂçÊÑÊØÍø¤Ç¤¹¡ª¤¼¤Ò¡¢¤´³èÍѲ¼¤µ¤¤¡ª

489·ïÃæ 433¡Á456·ï¤òɽ¼¨¤·¤Æ¤¤¤Þ¤¹¡£

ʤÓÂØ¤¨¡§
 
 

🚉¡Ú¶ÌÀî¡Û±Ø ÅÌÊâ6ʬ

Âçºå»ÔÊ¡Åç¶è ¶ÌÀî¤ÎŹÊÞ¡¦¥Æ¥Ê¥ó¥ÈÄÂÂߤβèÁü
Âçºå»ÔÊ¡Åç¶è ¶ÌÀî¤ÎŹÊÞ¡¦¥Æ¥Ê¥ó¥ÈÄÂÂߤδּè¤ê²èÁü

»Ô¾ìÁ°°ìÅïÂß

-±ß
20.3ÄÚ¡Ê67.68㎡¡Ë

Ãæ±û²·Çä»Ô¾ìÁ°°ìÅïÂߤǤ¹¡£¶È¼ï¤ÏÁêÃ̰û¿©¤âÁêÃÌÃפ·¤Þ¤¹¤È¤Î»ö¤Ç¤¹¡£²¿¤ò´ë¤ß¤Þ..

🏬  Âçºå»ÔÊ¡Åç¶èÌîÅÄ2
·Ú°û¿© ¥¢¥Ñ¥ì¥ë¡¦ÊªÈÎ °ìÅïÂߤ·

🚉¡ÚÅìÇßÅÄ¡Û±Ø ÅÌÊâ4ʬ

Âçºå»ÔË̶è ÅìÇßÅĤÎŹÊÞ¡¦¥Æ¥Ê¥ó¥ÈÄÂÂߤβèÁü
Âçºå»ÔË̶è ÅìÇßÅĤÎŹÊÞ¡¦¥Æ¥Ê¥ó¥ÈÄÂÂߤδּè¤ê²èÁü

¤ª½éÅ·¿À¿·ÃÛŹÊÞ¡ª¡ª

-±ß
50.53ÄÚ¡Ê167.05㎡¡Ë

´õ¾¯¤Ê¤ª½éÅ·¿À¶¶¶á¤¯¤Ç1Åï¤Î¿·ÃÛŹÊÞ¤¬Êç½¸Ãæ¡ª¡ª´°À®¤ÏÍèǯ¤Ç¤¹¤¬¤«¤Ê¤ê¤Î°ìÅù..

🏬  Âçºå»ÔË̶èÁ¾º¬ºê2
·Ú°û¿© ½Å°û¿© ¥Ð¡¼ ¥¢¥Ñ¥ì¥ë¡¦ÊªÈÎ ÍýÍÆ¼¼¡¦ÈþÍÆ¼¼ °åÎÅ¡¦É±¡¡¦¥¯¥ê¥Ë¥Ã¥¯ ¾¦Å¹³¹ ±Ø¶á Â緿ŹÊÞ Ä¶°ìÅùÃÏ °ìÅïÂߤ· Ï©ÌÌŹÊÞ ¥¹¥±¥ë¥È¥óŹÊÞ

🚉¡ÚÊ¡Åç¡Û±Ø ÅÌÊâ1ʬ

Âçºå»ÔÊ¡Åç¶è Ê¡Åç¤ÎŹÊÞ¡¦¥Æ¥Ê¥ó¥ÈÄÂÂߤβèÁü
Âçºå»ÔÊ¡Åç¶è Ê¡Åç¤ÎŹÊÞ¡¦¥Æ¥Ê¥ó¥ÈÄÂÂߤδּè¤ê²èÁü

Ê¡Åç¤Ç¤¹¡£´õ¾¯¤Ç¤¹¡£¤ªÁá¤á¤Ë¡£

-±ß
39.2ÄÚ¡Ê-㎡¡Ë

Âçºå»ÔÊ¡Åç¶èÊ¡Åç5¡ÚŹÊÞÉÕ¤­½»µï¡ÛÊ罸³«»Ï¤Þ¤º½Ð¤Ê¤¤´õ¾¯¤Ê¾ðÊó¤Ç¤¹ºå¿ÀËÜÀþ¡Ö..

🏬  Âçºå»ÔÊ¡Åç¶èÊ¡Åç5
·Ú°û¿© ½Å°û¿© Äê¿©¡¦»Å½Ð¤· ¥¢¥Ñ¥ì¥ë¡¦ÊªÈÎ ±Ø¶á µïÈ´¤­Å¹ÊÞ °ìÅïÂߤ· Ï©ÌÌŹÊÞ

🚉¡Ú½½»°¡Û±Ø ÅÌÊâ8ʬ

Âçºå»ÔÍäÀî¶è ½½»°¤ÎŹÊÞ¡¦¥Æ¥Ê¥ó¥ÈÄÂÂߤβèÁü
Âçºå»ÔÍäÀî¶è ½½»°¤ÎŹÊÞ¡¦¥Æ¥Ê¥ó¥ÈÄÂÂߤδּè¤ê²èÁü

ÂçÄ̤ê±è¤¤¡¢½»µï·óŹÊÞ¡ª

-±ß
16ÄÚ¡Ê55㎡¡Ë

½½»°¥¨¥ê¥¢¡£ÂçÄ̤ê±è¤¤¤Î½»µï·óŹÊÞ¡£¿·ÃÛ¤ÇåºÎï¤Ç¤¹¡£1³¬Éôʬ¤ÏŹÊÞ¡¦»ö̳½ê¡¦..

🏬  Âçºå»ÔÍäÀî¶è½½»°¸µº£Î¤3
Äê¿©¡¦»Å½Ð¤· ¥¢¥Ñ¥ì¥ë¡¦ÊªÈÎ ÍýÍÆ¼¼¡¦ÈþÍÆ¼¼ ¥Ú¥Ã¥È¥·¥ç¥Ã¥× °åÎÅ¡¦É±¡¡¦¥¯¥ê¥Ë¥Ã¥¯ ¥¨¥¹¥Æ¡¦¥µ¥í¥ó °ìÅïÂߤ·

🚉¡Ú¾¾²°Ä®¡Û±Ø ÅÌÊâ2ʬ

Âçºå»ÔÃæ±û¶è ¾¾²°Ä®¤ÎŹÊÞ¡¦¥Æ¥Ê¥ó¥ÈÄÂÂߤβèÁü
Âçºå»ÔÃæ±û¶è ¾¾²°Ä®¤ÎŹÊÞ¡¦¥Æ¥Ê¥ó¥ÈÄÂÂߤδּè¤ê²èÁü

²¿¾¦²Ä¡ª¡ª£É£ÎÃæ±û¶è

-±ß
59ÄÚ¡Ê-㎡¡Ë

Âçºå»ÔÃæ±û¶è¾¾²°Ä®¶õËÙÄ̤꾦ʳ¹Æþ¤ê¸ý¤¹¤°¡ª¡ª1£Æ£·£µ¡¥£´£µ­Ö2£Æ£·£·¡¥£°£±..

🏬  Âçºå»ÔÃæ±û¶è¾¾²°Ä®
·Ú°û¿© ½Å°û¿© ¥Ð¡¼ ¥¢¥Ñ¥ì¥ë¡¦ÊªÈÎ ÍýÍÆ¼¼¡¦ÈþÍÆ¼¼ ¥Ú¥Ã¥È¥·¥ç¥Ã¥× °åÎÅ¡¦É±¡¡¦¥¯¥ê¥Ë¥Ã¥¯ ¥¨¥¹¥Æ¡¦¥µ¥í¥ó ¾¦Å¹³¹ ±Ø¶á µïÈ´¤­Å¹ÊÞ Ä¶°ìÅùÃÏ °ìÅïÂߤ· Ï©ÌÌŹÊÞ

🚉¡Ú¿´ºØ¶¶¡Û±Ø ÅÌÊâ5ʬ

Âçºå»ÔÃæ±û¶è ¿´ºØ¶¶¤ÎŹÊÞ¡¦¥Æ¥Ê¥ó¥ÈÄÂÂߤβèÁü
Âçºå»ÔÃæ±û¶è ¿´ºØ¶¶¤ÎŹÊÞ¡¦¥Æ¥Ê¥ó¥ÈÄÂÂߤδּè¤ê²èÁü

ͶËÈ롪¡ª

-±ß
58ÄÚ¡Ê-㎡¡Ë

ͶËÈëʪ·ï¡ª¡ª£Ï£Ó£Á£Ë£Á×£Ã£È£Õ£Ï£Õ£Ë£ÕÆîÁ¥¾ì£³ÃúÌܸ½ºß±Ä¶ÈÃæ¤Î..

🏬  Âçºå»ÔÃæ±û¶èÆîÁ¥¾ì3
·Ú°û¿© ½Å°û¿© ¥Ð¡¼ ¥¢¥Ñ¥ì¥ë¡¦ÊªÈÎ ÍýÍÆ¼¼¡¦ÈþÍÆ¼¼ ¥¨¥¹¥Æ¡¦¥µ¥í¥ó ¾¦Å¹³¹ ±Ø¶á µïÈ´¤­Å¹ÊÞ Â緿ŹÊÞ Ä¶°ìÅùÃÏ °ìÅïÂߤ· Ï©ÌÌŹÊÞ

🚉¡Ú¿·Ê¡Åç¡Û±Ø ÅÌÊâ3ʬ

Âçºå»ÔÊ¡Åç¶è ¿·Ê¡Åç¤ÎŹÊÞ¡¦¥Æ¥Ê¥ó¥ÈÄÂÂߤβèÁü
Âçºå»ÔÊ¡Åç¶è ¿·Ê¡Åç¤ÎŹÊÞ¡¦¥Æ¥Ê¥ó¥ÈÄÂÂߤδּè¤ê²èÁü

Ä«ÆüÊüÁ÷¡¡ÌܤÎÁ°¡¡¹¥Î©ÃÏ¡ª

-±ß
21.03ÄÚ¡Ê69.43㎡¡Ë

£±ÅïÂßÏ©ÌÌŹÊÞ¸µ¾Æ¤­Ä»µïÈ´¤­¥ª¥Õ¥£¥¹¤ÎÊý¤ä½÷À­µÒ¤¬´üÂԤǤ­¤Þ¤¹¡ª¿·Ê¡Åç±Ø¤â¶á..

🏬  Âçºå»ÔÊ¡Åç¶èÊ¡Åç1
·Ú°û¿© ½Å°û¿© ¥Ð¡¼ ±Ø¶á µïÈ´¤­Å¹ÊÞ Ä¶°ìÅùÃÏ °ìÅïÂߤ· Ï©ÌÌŹÊÞ

🚉¡Ú¾¾²°Ä®¡Û±Ø ÅÌÊâ2ʬ

Âçºå»ÔÃæ±û¶è ¾¾²°Ä®¤ÎŹÊÞ¡¦¥Æ¥Ê¥ó¥ÈÄÂÂߤβèÁü
Âçºå»ÔÃæ±û¶è ¾¾²°Ä®¤ÎŹÊÞ¡¦¥Æ¥Ê¥ó¥ÈÄÂÂߤδּè¤ê²èÁü

¶õËÙ¾¦Å¹³¹Æþ¸ý¤¹¤°

-±ß
60ÄÚ¡Ê198.34㎡¡Ë

¾¾²°Ä®Ä̤ê¤ä¶õËÙ¾¦Å¹³¹¤¬¥¹¥°¥½¥³¡ª¡ª¡ª±Ø¤âÅÌÊâ2ʬ·÷Æâ¢ö¸µ¥Ú¥Ã¥È¥·¥ç¥Ã¥×ŹÆâ..

🏬  Âçºå»ÔÃæ±û¶è¾¾²°Ä®
·Ú°û¿© ¥Ð¡¼ ¥¢¥Ñ¥ì¥ë¡¦ÊªÈÎ ÍýÍÆ¼¼¡¦ÈþÍÆ¼¼ ¥Ú¥Ã¥È¥·¥ç¥Ã¥× ¥¨¥¹¥Æ¡¦¥µ¥í¥ó ±Ø¶á °ìÅïÂߤ·

🚉¡Ú¾¾²°Ä®¡Û±Ø ÅÌÊâ4ʬ

Âçºå»ÔÃæ±û¶è ¾¾²°Ä®¤ÎŹÊÞ¡¦¥Æ¥Ê¥ó¥ÈÄÂÂߤβèÁü
Âçºå»ÔÃæ±û¶è ¾¾²°Ä®¤ÎŹÊÞ¡¦¥Æ¥Ê¥ó¥ÈÄÂÂߤδּè¤ê²èÁü

¶õËÙ¾¦Å¹³¹¶á¤¯¤ÎŹÊÞÉÕ½»µï¡ª¡ª

-±ß
22.76ÄÚ¡Ê-㎡¡Ë

¶õËÙ¾¦Å¹¤¬¶á¤¯¤ÇŹÊÞÉÕ½»µï¤¬Ê罸¡ª¡ª¤«¤Ê¤ê´õ¾¯¤Ç¤¹¡ª¡ª¤·¤«¤â¡¢¼¼Æâ¤È³°´Ñ¤¬¥­..

🏬  Âçºå»ÔÃæ±û¶è¾¾²°Ä®
·Ú°û¿© ½Å°û¿© Äê¿©¡¦»Å½Ð¤· ¥Ð¡¼ ¥¢¥Ñ¥ì¥ë¡¦ÊªÈÎ ÍýÍÆ¼¼¡¦ÈþÍÆ¼¼ ¥Ú¥Ã¥È¥·¥ç¥Ã¥× °åÎÅ¡¦É±¡¡¦¥¯¥ê¥Ë¥Ã¥¯ ¥¨¥¹¥Æ¡¦¥µ¥í¥ó ¾¦Å¹³¹ ±Ø¶á µïÈ´¤­Å¹ÊÞ °ìÅïÂߤ· Ï©ÌÌŹÊÞ

🚉¡ÚËÌç¡Û±Ø ÅÌÊâ10ʬ

Âçºå»ÔÀ¸Ìî¶è ËÌç¤ÎŹÊÞ¡¦¥Æ¥Ê¥ó¥ÈÄÂÂߤβèÁü
Âçºå»ÔÀ¸Ìî¶è ËÌç¤ÎŹÊÞ¡¦¥Æ¥Ê¥ó¥ÈÄÂÂߤδּè¤ê²èÁü

¡Ú3³¬·ú¤Æ¾ÆÆùŹÊÞ1ÅïÂߤ·¡Û

-±ß
39.53ÄÚ¡Ê130.1㎡¡Ë

20ǯ³¤¤¤¿Í­Ì¾¾ÆÆùŹ¤Î¸µËÜŹÀ×ʪ·ï¤Ç¤¹¡£¡Ê¤½¤Î¾ÆÆùʤµ¤ó¤Ïº£¤âÊ̤ξì½ê¤Ë°Ü..

🏬  Âçºå»ÔÀ¸Ìî¶èçÅì2
·Ú°û¿© ½Å°û¿© ¥Ð¡¼ µïÈ´¤­Å¹ÊÞ °ìÅïÂߤ· Ï©ÌÌŹÊÞ

🚉¡Ú¶å¾ò¡Û±Ø ÅÌÊâ6ʬ

Âçºå»ÔÀ¾¶è ¶å¾ò¤ÎŹÊÞ¡¦¥Æ¥Ê¥ó¥ÈÄÂÂߤβèÁü
Âçºå»ÔÀ¾¶è ¶å¾ò¤ÎŹÊÞ¡¦¥Æ¥Ê¥ó¥ÈÄÂÂߤδּè¤ê²èÁü

¶å¾òÆî3ÃúÌÜ

-±ß
41.74ÄÚ¡Ê138㎡¡Ë

¡ù°ìÅïÂߤ·¡©¡¦°ì·ïÂߤ·¡©¡ù£±£Æ/¥¯¥ì¡¼¥óÍ­¤ê¤Îºî¶È¾ì¡ùÃó¼Ö¾ì(2Âæ²Äǽ)¤È¤·..

🏬  Âçºå»ÔÀ¾¶è¶å¾òÆî3
¥¢¥Ñ¥ì¥ë¡¦ÊªÈÎ µïÈ´¤­Å¹ÊÞ °ìÅïÂߤ· Ï©ÌÌŹÊÞ ¥¹¥±¥ë¥È¥óŹÊÞ

🚉¡Úµþ¶¶¡Û±Ø ÅÌÊâ3ʬ

Âçºå»ÔÅÔÅç¶è µþ¶¶¤ÎŹÊÞ¡¦¥Æ¥Ê¥ó¥ÈÄÂÂߤβèÁü
Âçºå»ÔÅÔÅç¶è µþ¶¶¤ÎŹÊÞ¡¦¥Æ¥Ê¥ó¥ÈÄÂÂߤδּè¤ê²èÁü

µþ¶¶±Ø3ʬ¡ù½Å°û¿©°ì¸Í·ú¤ÆÅ¹ÊÞ

-±ß
29ÄÚ¡Ê95.86㎡¡Ë

Âçºå»ÔÅÔÅç¶èÅìÌîÅÄ¡ù¡ù¡ùµþºåµþ¶¶±Ø¡ù¡ù¡ùÅÌÊâ3ʬ¡¦¡¦¡¦¡¦¡¦¡¦¡¦¡¦¡¦¡¦¡¦¡¦¡¦¡¦..

🏬  Âçºå»ÔÅÔÅç¶èÅìÌîÅÄÄ®1
·Ú°û¿© ½Å°û¿© ±Ø¶á µïÈ´¤­Å¹ÊÞ °ìÅïÂߤ· Ï©ÌÌŹÊÞ

🚉¡Ú¾¼ÏÂÄ®¡Û±Ø ÅÌÊâ1ʬ

Âçºå»Ô°¤ÇÜÌî¶è ¾¼ÏÂÄ®¤ÎŹÊÞ¡¦¥Æ¥Ê¥ó¥ÈÄÂÂߤβèÁü
Âçºå»Ô°¤ÇÜÌî¶è ¾¼ÏÂÄ®¤ÎŹÊÞ¡¦¥Æ¥Ê¥ó¥ÈÄÂÂߤδּè¤ê²èÁü

±Ø¥¦¥¨¤Î°ìÅïÂß

-±ß
56.4ÄÚ¡Ê-㎡¡Ë

Ãϲ¼Å´¸æÆ²¶ÚÀþ¾¼ÏÂÄ®±ØÅÌÊ⣱ʬ£´³¬·ú£±ÅïÂß°û¿©Å¹¡¦ÊªÈÎetc...¤´ÁêÃ̤¯¤À..

🏬  Âçºå»Ô°¤ÇÜÌî¶èºåÆîÄ®1
·Ú°û¿© Äê¿©¡¦»Å½Ð¤· ¥Ð¡¼ ¥¢¥Ñ¥ì¥ë¡¦ÊªÈÎ ÍýÍÆ¼¼¡¦ÈþÍÆ¼¼ °åÎÅ¡¦É±¡¡¦¥¯¥ê¥Ë¥Ã¥¯ ¥¨¥¹¥Æ¡¦¥µ¥í¥ó ±Ø¶á Â緿ŹÊÞ °ìÅïÂߤ· Ï©ÌÌŹÊÞ

🚉¡Ú·ÃÈþ¿ÜÄ®¡Û±Ø ÅÌÊâ1ʬ

Âçºå»Ôϲ®¶è ·ÃÈþ¿ÜÄ®¤ÎŹÊÞ¡¦¥Æ¥Ê¥ó¥ÈÄÂÂߤβèÁü
Âçºå»Ôϲ®¶è ·ÃÈþ¿ÜÄ®¤ÎŹÊÞ¡¦¥Æ¥Ê¥ó¥ÈÄÂÂߤδּè¤ê²èÁü

¤Ç¤ó¤Ç¤ó¥¿¥¦¥ó°ìÅïÂß

-±ß
83ÄÚ¡Ê-㎡¡Ë

±Ø£±Ê¬¤Ç¤ó¤Ç¤ó¥¿¥¦¥ó¤Î£±ÅïÂߣ³£Æ·ú¤ÆÅÅÆ°¥·¥ã¥Ã¥¿¡¼ÉÕ¤­¶È¼ï¤´ÁêÃ̤¯¤À¤µ¤¤&n..

🏬  Âçºå»Ôϲ®¶èÆüËܶ¶5
¥¢¥Ñ¥ì¥ë¡¦ÊªÈÎ °åÎÅ¡¦É±¡¡¦¥¯¥ê¥Ë¥Ã¥¯ ¥¨¥¹¥Æ¡¦¥µ¥í¥ó ¾¦Å¹³¹ ±Ø¶á Â緿ŹÊÞ Ä¶°ìÅùÃÏ °ìÅïÂߤ· Ï©ÌÌŹÊÞ ¥¹¥±¥ë¥È¥óŹÊÞ

🚉¡ÚëĮ¶åÃúÌÜ¡Û±Ø ÅÌÊâ9ʬ

Âçºå»ÔÅ·²¦»û¶è ëĮ¶åÃúÌܤÎŹÊÞ¡¦¥Æ¥Ê¥ó¥ÈÄÂÂߤβèÁü
Âçºå»ÔÅ·²¦»û¶è ëĮ¶åÃúÌܤÎŹÊÞ¡¦¥Æ¥Ê¥ó¥ÈÄÂÂߤδּè¤ê²èÁü

ë¶å£±ÅïÂß

-±ß
42.17ÄÚ¡Ê139㎡¡Ë

Å·²¦»û¶è¤ÏëĮ£¹ÃúÌܱؤ«¤éÅÌÊ⣹ʬ£±ÅïÂߤΥ쥢ʪ·ï´Ö¸ý¤Ï¹­¡¹£¹¥á¡¼¥È¥ë³Æ¼ï¶µ..

🏬  Âçºå»ÔÅ·²¦»û¶è¾å¼®5
¥¢¥Ñ¥ì¥ë¡¦ÊªÈÎ ÍýÍÆ¼¼¡¦ÈþÍÆ¼¼ °åÎÅ¡¦É±¡¡¦¥¯¥ê¥Ë¥Ã¥¯ ¥¨¥¹¥Æ¡¦¥µ¥í¥ó °ìÅïÂߤ· Ï©ÌÌŹÊÞ

🚉¡ÚÆî¿¹Ä®¡Û±Ø ÅÌÊâ4ʬ

Âçºå»ÔËÌ¶è Æî¿¹Ä®¤ÎŹÊÞ¡¦¥Æ¥Ê¥ó¥ÈÄÂÂߤβèÁü
Âçºå»ÔËÌ¶è Æî¿¹Ä®¤ÎŹÊÞ¡¦¥Æ¥Ê¥ó¥ÈÄÂÂߤδּè¤ê²èÁü

Å·¿À¶¶¶Ú¾¦Å¹³¹¥¹¥°¤Î°ìÅïÂߤ·

-±ß
-ÄÚ¡Ê89㎡¡Ë

½Å°û¿©OKŹÊÞÉÕ¤­½»ÂðŹÊÞ¥¹¥Ú¡¼¥¹Ìó£±£°ÄÚJRÂçºå´Ä¾õÀþÅ·Ëþ±Ø¤ÈÃϲ¼Å´Ã«Ä®Àþ..

🏬  Âçºå»ÔË̶èÅ·¿À¶¶3
·Ú°û¿© ½Å°û¿© ÍýÍÆ¼¼¡¦ÈþÍÆ¼¼ ±Ø¶á µïÈ´¤­Å¹ÊÞ °ìÅïÂߤ· Ï©ÌÌŹÊÞ

🚉¡ÚË­Ãæ¡Û±Ø ÅÌÊâ2ʬ

Ë­Ãæ»Ô Ë­Ãæ¤ÎŹÊÞ¡¦¥Æ¥Ê¥ó¥ÈÄÂÂߤβèÁü
Ë­Ãæ»Ô Ë­Ãæ¤ÎŹÊÞ¡¦¥Æ¥Ê¥ó¥ÈÄÂÂߤδּè¤ê²èÁü

Ë­Ãæ±ØÅÌÊâ2ʬ¡¡£±ÅïÂߤ·

-±ß
32.2ÄÚ¡Ê-㎡¡Ë

ºåµÞ¡ØË­Ãæ±Ø¡ÙÅÌÊâ2ʬ±ØÁ°¤Î¾¦Å¹³¹¤Ë¤¢¤ëŹÊÞ¸µÊõÀв°¤µ¤ó¤ÎµïÈ´¤­¤Ç¤¹¡£ÈþÍÆ´Ø..

🏬  Ë­Ãæ»ÔËÜÄ®1
·Ú°û¿© ¥Ð¡¼ ¥¢¥Ñ¥ì¥ë¡¦ÊªÈÎ °åÎÅ¡¦É±¡¡¦¥¯¥ê¥Ë¥Ã¥¯ ¥¨¥¹¥Æ¡¦¥µ¥í¥ó ±Ø¶á µïÈ´¤­Å¹ÊÞ Ä¶°ìÅùÃÏ °ìÅïÂߤ· Ï©ÌÌŹÊÞ

🚉¡Ú¶Ì¤¡Û±Ø ÅÌÊâ8ʬ

Âçºå»ÔÅ·²¦»û¶è ¶Ì¤¤ÎŹÊÞ¡¦¥Æ¥Ê¥ó¥ÈÄÂÂߤβèÁü
Âçºå»ÔÅ·²¦»û¶è ¶Ì¤¤ÎŹÊÞ¡¦¥Æ¥Ê¥ó¥ÈÄÂÂߤδּè¤ê²èÁü

¶È¼ïÁêÃÌ¡¡1ÅöÂߤ·¿·ÃÛŹÊÞ

-±ß
23ÄÚ¡Ê100.13㎡¡Ë

°ìÅïÂߤ·¡ª¶Ì¤¶È¼ï¤Ï¤´ÁêÃ̤¯¤À¤µ¤¤¡ª°û¿©Å¹¤â²Äǽ¤Ç¤¹¡ª

🏬  Âçºå»ÔÅ·²¦»û¶è¶Ì¤¸µÄ®
·Ú°û¿© ½Å°û¿© Äê¿©¡¦»Å½Ð¤· ¥Ð¡¼ ¥¢¥Ñ¥ì¥ë¡¦ÊªÈÎ ÍýÍÆ¼¼¡¦ÈþÍÆ¼¼ °åÎÅ¡¦É±¡¡¦¥¯¥ê¥Ë¥Ã¥¯ ¥¨¥¹¥Æ¡¦¥µ¥í¥ó ¾¦Å¹³¹ °ìÅïÂߤ· ¥¹¥±¥ë¥È¥óŹÊÞ

🚉¡ÚÍä²°¶¶¡Û±Ø ÅÌÊâ2ʬ

Âçºå»ÔÃæ±û¶è Íä²°¶¶¤ÎŹÊÞ¡¦¥Æ¥Ê¥ó¥ÈÄÂÂߤβèÁü
Âçºå»ÔÃæ±û¶è Íä²°¶¶¤ÎŹÊÞ¡¦¥Æ¥Ê¥ó¥ÈÄÂÂߤδּè¤ê²èÁü

Íä²°¶¶¡ª¤Ë1ÅŹÊÞÅоì

-±ß
40.19ÄÚ¡Ê132.87㎡¡Ë

°ìÅïÂߤ· ²áµîµï¼ò²°¤ÎÅöʪ·ï ¾ò·ï¤Ê¤É¤Ï¾Ü¤·¤¯·è¤Þ¤Ã¤Æ¤ª¤ê¤Þ¤»¤ó¡ª Âçºå¤ÇÌ´..

🏬  Âçºå»ÔÃæ±û¶èËÌÉÍ3
·Ú°û¿© ¥Ð¡¼ ±Ø¶á µïÈ´¤­Å¹ÊÞ °ìÅïÂߤ· Ï©ÌÌŹÊÞ

🚉¡Ú¾¾²°Ä®¡Û±Ø ÅÌÊâ2ʬ

Âçºå»ÔÃæ±û¶è ¾¾²°Ä®¤ÎŹÊÞ¡¦¥Æ¥Ê¥ó¥ÈÄÂÂߤβèÁü
Âçºå»ÔÃæ±û¶è ¾¾²°Ä®¤ÎŹÊÞ¡¦¥Æ¥Ê¥ó¥ÈÄÂÂߤδּè¤ê²èÁü

¸µ¥Ú¥Ã¥È¥·¥ç¥Ã¥×

-±ß
60ÄÚ¡Ê-㎡¡Ë

Âçºå»ÔÃæ±û¶è½»µïÉÕ¤­¤Î°ìÅïÂߤ·Å¹ÊÞ¸µ¥Ú¥Ã¥È¥·¥ç¥Ã¥×¤ÎµïÈ´¤­¤Ç¤¹¤ªÁá¤á¤Ë

🏬  Âçºå»ÔÃæ±û¶è¾¾²°Ä®
·Ú°û¿© ¥Ð¡¼ ¥Ú¥Ã¥È¥·¥ç¥Ã¥× °åÎÅ¡¦É±¡¡¦¥¯¥ê¥Ë¥Ã¥¯ ¥¨¥¹¥Æ¡¦¥µ¥í¥ó ±Ø¶á µïÈ´¤­Å¹ÊÞ °ìÅïÂߤ· Ï©ÌÌŹÊÞ

🚉¡Ú¿·Ê¡Åç¡Û±Ø ÅÌÊâ2ʬ

Âçºå»ÔÊ¡Åç¶è ¿·Ê¡Åç¤ÎŹÊÞ¡¦¥Æ¥Ê¥ó¥ÈÄÂÂߤβèÁü
Âçºå»ÔÊ¡Åç¶è ¿·Ê¡Åç¤ÎŹÊÞ¡¦¥Æ¥Ê¥ó¥ÈÄÂÂߤδּè¤ê²èÁü

¿·ÃÛ°ìÅïÂߤ·¡ª¾ò·ïÁêÃ̾µ¤ê¤Þ¤¹¡ª

-±ß
7ÄÚ¡Ê-㎡¡Ë

Ê¡Å磳ÃúÌÜ¿·ÃÛŹÊÞ¤¢¤ß¤ÀÃӶڱ褤¤Î°ìÅï³ÑÃÏÅöŹ¤Î¥¹¥°¤½¤Ð¤Ê¤ó¤Ç¤¹¡ª·Ú°û¿©ÊªÈÎ..

🏬  Âçºå»ÔÊ¡Åç¶èÊ¡Åç3
·Ú°û¿© Äê¿©¡¦»Å½Ð¤· ¥Ð¡¼ ¥¢¥Ñ¥ì¥ë¡¦ÊªÈÎ ÍýÍÆ¼¼¡¦ÈþÍÆ¼¼ ¥¨¥¹¥Æ¡¦¥µ¥í¥ó ±Ø¶á °ìÅïÂߤ· Ï©ÌÌŹÊÞ ¥¹¥±¥ë¥È¥óŹÊÞ

🚉¡ÚËÌç¡Û±Ø ÅÌÊâ10ʬ

Âçºå»ÔÀ¸Ìî¶è ËÌç¤ÎŹÊÞ¡¦¥Æ¥Ê¥ó¥ÈÄÂÂߤβèÁü
Âçºå»ÔÀ¸Ìî¶è ËÌç¤ÎŹÊÞ¡¦¥Æ¥Ê¥ó¥ÈÄÂÂߤδּè¤ê²èÁü

¡Ú1ÅïÂߤ·3³¬·ú¤Æ¾ÆÆùŹÊÞ¡Û

-±ß
39.53ÄÚ¡Ê130.1㎡¡Ë

20ǯ³¤¤¤¿Í­Ì¾¾ÆÆùŹ¤Î¸µËÜŹÀ×ʪ·ï¤Ç¤¹¡£¡Ê¤½¤Î¾ÆÆùʤµ¤ó¤Ïº£¤âÊ̤ξì½ê¤Ë°Ü..

🏬  Âçºå»ÔÀ¸Ìî¶èçÅì2
·Ú°û¿© ½Å°û¿© ¥Ð¡¼ µïÈ´¤­Å¹ÊÞ °ìÅïÂߤ· Ï©ÌÌŹÊÞ
 
 

Ãç²ð¼ÂÀÓ»öÎã

ŹÊÞ¤òÊÄŹ¡¦°Üž¤ò¹Í¤¨¤Æ¤¤¤ëÊý¤Ø ÊÄŹ¤ÎºÝ¤Ë¤É¤¦¤·¤Æ¤¤¤¤¤«¤ï¤«¤é¤Ê¤¤¡¢¸½¾õ¤Î¤Þ¤Þ¤Ç°úÅϤ·¤¬¤·¤¿¤¤¿Í¤Ø
°û¿©Å¹¤Î°Üž¡¦ÊÄŹ¤ÇǺ¤ó¤À¤é¤Þ¤º¤ÏÁêÃ̤¯¤À¤µ¤¤¡ª

¤ªÌòΩ¤Á¥³¥ó¥Æ¥ó¥Ä

  • ŹÊÞ³«¶È¤Þ¤Ç¤Î¥Õ¥í¡¼¥Á¥ã¡¼¥È
    ŹÊÞ³«¶È¤Þ¤Ç¤Î
    ¥Õ¥í¡¼¥Á¥ã¡¼¥È
  • ÂߏÊÞõ¤·¤«¤é·ÀÌó¤Îή¤ì
    ÂߏÊÞõ¤·
    ·ÀÌó¤Îή¤ì
 

ŹÊÞ¡¦¥Æ¥Ê¥ó¥È³«¶È ¤ªÌòΩ¤Á¾ðÊó

ŹÊÞʪ·ï¤ªÌòΩ¤Á¥Ê¥Ó ŹÊÞʪ·ïQ&A ÄÂÂߤÎÉÔÆ°»ºÍѸ콸
 
  • ΩÃϤθ«Êý
    ΩÃϤθ«Êý
  • ÂߏÊÞ¤ÎÃç²ð¼ÂÀÓ»öÎã
    ÂߏÊÞ¤Î
    Ãç²ð¼ÂÀÓ»öÎã
 
 

ŹÊÞ°ìÍ÷

Åö¥µ¥¤¥È¤Îʪ·ï¼è¤ê°·¤¤Å¹ÊޤǤ¹¡£

  • BRUNOÉÔÆ°»º³ô¼°²ñ¼Ò ¥¨¥¤¥Ö¥ë¥Í¥Ã¥È¥ï¡¼¥¯Èî¸å¶¶¤¦¤Ä¤Ü¸ø±àÁ°Å¹ 06-6459-4555
  • BRUNOÉÔÆ°»º³ô¼°²ñ¼Ò ¥¨¥¤¥Ö¥ë¥Í¥Ã¥È¥ï¡¼¥¯½»Ç·¹¾¸ø±àŹ 06-6657-7090
 
Copyright 2018. ©ÂߏÊÞNavi. ALL Rights Reserved.
ÂߏÊÞ¡¦µïÈ´¤­Å¹ÊÞ¡¦¥Æ¥Ê¥ó¥Èʪ·ï¾ðÊó ¥Ú¡¼¥¸¥È¥Ã¥×¤Ø