駅近1分!堺市の和食居抜き店舗
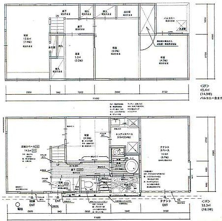
今回は、大阪府堺市堺区大町東に位置する魅力的な貸店舗をご紹介します。阪堺線「宿院駅」から徒歩1分、さらに南海本線「堺駅」からも徒歩10分という好立地で、集客力の高いエリアに位置しています。本物件は1階..

店舗物件、居抜き店舗、テナント物件を探すなら
大阪の貸店舗情報サイト貸店舗ナビで!
掲載数:821件 / 新着・更新数:0件
2026年05月01日現在
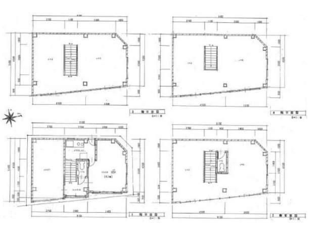
今回は、大阪府堺市堺区大町東に位置する魅力的な貸店舗をご紹介します。阪堺線「宿院駅」から徒歩1分、さらに南海本線「堺駅」からも徒歩10分という好立地で、集客力の高いエリアに位置しています。本物件は1階..
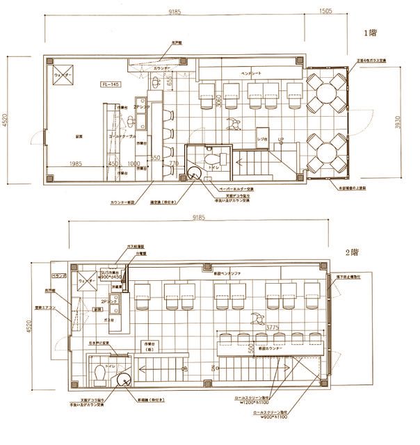
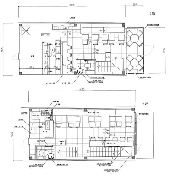
福島エリアで実現する多彩なビジネス展開 ― 一棟ビル活用の魅力 ―大阪・福島エリアは、飲食店やカフェ、クリエイティブなショップが集まる人気の街として、近年ますます注目を集めています。梅田からもほど近く..
大阪市西区新町2丁目に位置する、魅力的な一棟貸し店舗物件のご紹介です。長堀鶴見緑地線「西大橋」駅から徒歩約3分という好立地にあり、集客力を重視される事業者様にぴったりの物件です。周辺はオフィスや住宅が..
新町で叶える、感度の高いショップづくり ― 1棟貸し店舗という特別な選択 おしゃれなショップやカフェ、クリエイティブなオフィスが集まる人気エリア、新町。落ち着いた街並みと洗練された雰囲気が共..
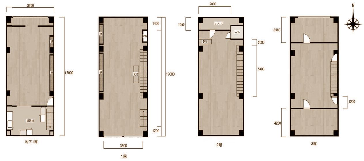
歴史ある街並みに溶け込む魅力的な事業用物件大阪市中央区谷町6丁目に、歴史ある街並みに溶け込む古民家一棟店舗・事務所物件が登場しました。落ち着いた雰囲気が魅力の谷町エリアで、個性的なお店や小さくても強い..
大阪市西区、ビジネス街として人気の高い江戸堀1丁目に、使い勝手の良い2階建て貸店舗が募集されています。最寄りは四つ橋線「肥後橋駅」から徒歩わずか2分。御堂筋線「淀屋橋駅」へも徒歩圏内で、オフィスワーカ..
大阪・肥後橋エリアで、どこか懐かしさを感じる「古民家物件」をご紹介します。ビジネス街の中にひっそりと佇む木造2階建ての店舗で、京阪電鉄中之島線「渡辺橋駅」から徒歩9分大阪メトロ四つ橋線「肥後橋駅」から..
大阪市西区・靱本町2丁目に、希少な「1棟貸し」物件が登場しました。本町駅から徒歩6分、阿波座駅から徒歩7分とアクセスも良く、近隣には緑豊かな靱公園が広がる人気エリアです。本町周辺で店舗展開を検討してい..
店舗を閉店・移転を考えている方へ
閉店の際にどうしていいかわからない、現状のままで引渡しがしたい人へ
飲食店の移転・閉店で悩んだらまずは相談ください!
当サイトの物件取り扱い店舗です。