±Ø¶á1ʬ¡ªºæ»Ô¤ÎÏ¿©µïÈ´¤Å¹ÊÞ
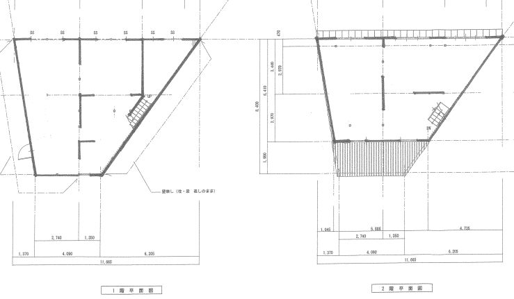
º£²ó¤Ï¡¢ÂçºåÉܺæ»Ôºæ¶èÂçÄ®Åì¤Ë°ÌÃÖ¤¹¤ëÌ¥ÎÏŪ¤ÊÂߏÊÞ¤ò¤´¾Ò²ð¤·¤Þ¤¹¡£ºåºæÀþ¡Ö½É±¡±Ø¡×¤«¤éÅÌÊâ1ʬ¡¢¤µ¤é¤ËÆî³¤ËÜÀþ¡Öºæ±Ø¡×¤«¤é¤âÅÌÊâ10ʬ¤È¤¤¤¦¹¥Î©ÃϤǡ¢½¸µÒÎϤι⤤¥¨¥ê¥¢¤Ë°ÌÃÖ¤·¤Æ¤¤¤Þ¤¹¡£ËÜʪ·ï¤Ï1³¬..

ŹÊÞʪ·ï¡¢µïÈ´¤Å¹ÊÞ¡¢¥Æ¥Ê¥ó¥Èʪ·ï¤òõ¤¹¤Ê¤é
Âçºå¤ÎÂߏÊÞ¾ðÊó¥µ¥¤¥ÈÂߏÊޥʥӤǡª
·ÇºÜ¿ô¡§821·ï ¡¿ ¿·Ã塦¹¹¿·¿ô¡§0·ï
2026ǯ05·î01Æü¸½ºß
º£²ó¤Ï¡¢ÂçºåÉܺæ»Ôºæ¶èÂçÄ®Åì¤Ë°ÌÃÖ¤¹¤ëÌ¥ÎÏŪ¤ÊÂߏÊÞ¤ò¤´¾Ò²ð¤·¤Þ¤¹¡£ºåºæÀþ¡Ö½É±¡±Ø¡×¤«¤éÅÌÊâ1ʬ¡¢¤µ¤é¤ËÆî³¤ËÜÀþ¡Öºæ±Ø¡×¤«¤é¤âÅÌÊâ10ʬ¤È¤¤¤¦¹¥Î©ÃϤǡ¢½¸µÒÎϤι⤤¥¨¥ê¥¢¤Ë°ÌÃÖ¤·¤Æ¤¤¤Þ¤¹¡£ËÜʪ·ï¤Ï1³¬..
Ê¡Å票¥ê¥¢¤Ç¼Â¸½¤¹¤ë¿ºÌ¤Ê¥Ó¥¸¥Í¥¹Å¸³« ¡½ °ìÅï¥Ó¥ë³èÍѤÎÌ¥ÎÏ ¡½Âçºå¡¦Ê¡Å票¥ê¥¢¤Ï¡¢°û¿©Å¹¤ä¥«¥Õ¥§¡¢¥¯¥ê¥¨¥¤¥Æ¥£¥Ö¤Ê¥·¥ç¥Ã¥×¤¬½¸¤Þ¤ë¿Íµ¤¤Î³¹¤È¤·¤Æ¡¢¶áǯ¤Þ¤¹¤Þ¤¹ÃíÌܤò½¸¤á¤Æ¤¤¤Þ¤¹¡£ÇßÅĤ«¤é¤â¤Û¤É¶á¤¯..
Âçºå»ÔÀ¾¶è¿·Ä®2ÃúÌܤ˰ÌÃÖ¤¹¤ë¡¢Ì¥ÎÏŪ¤Ê°ìÅïÂߤ·Å¹ÊÞʪ·ï¤Î¤´¾Ò²ð¤Ç¤¹¡£Ä¹ËÙÄḫÎÐÃÏÀþ¡ÖÀ¾Âç¶¶¡×±Ø¤«¤éÅÌÊâÌó3ʬ¤È¤¤¤¦¹¥Î©ÃϤˤ¢¤ê¡¢½¸µÒÎϤò½Å»ë¤µ¤ì¤ë»ö¶È¼ÔÍͤˤԤ俤ê¤Îʪ·ï¤Ç¤¹¡£¼þÊդϥª¥Õ¥£¥¹¤ä½»Âð¤¬..
¿·Ä®¤Ç³ð¤¨¤ë¡¢´¶Å٤ι⤤¥·¥ç¥Ã¥×¤Å¤¯¤ê ¡½ 1ÅïÂߤ·Å¹ÊޤȤ¤¤¦ÆÃÊ̤ÊÁªÂò ¤ª¤·¤ã¤ì¤Ê¥·¥ç¥Ã¥×¤ä¥«¥Õ¥§¡¢¥¯¥ê¥¨¥¤¥Æ¥£¥Ö¤Ê¥ª¥Õ¥£¥¹¤¬½¸¤Þ¤ë¿Íµ¤¥¨¥ê¥¢¡¢¿·Ä®¡£Íî¤ÁÃ夤¤¿³¹Ê¤ߤÈÀöÎý¤µ¤ì¤¿Ê·°Ïµ¤¤¬¶¦..
Îò»Ë¤¢¤ë³¹Ê¤ߤËÍϤ±¹þ¤àÌ¥ÎÏŪ¤Ê»ö¶ÈÍÑʪ·ïÂçºå»ÔÃæ±û¶èëĮ6ÃúÌܤˡ¢Îò»Ë¤¢¤ë³¹Ê¤ߤËÍϤ±¹þ¤à¸Å̱²È°ìÅïŹÊÞ¡¦»ö̳½êʪ·ï¤¬Åо줷¤Þ¤·¤¿¡£Íî¤ÁÃ夤¤¿Ê·°Ïµ¤¤¬Ì¥ÎϤÎëĮ¥¨¥ê¥¢¤Ç¡¢¸ÄÀŪ¤Ê¤ªÅ¹¤ä¾®¤µ¤¯¤Æ¤â¶¯¤¤..
Âçºå»ÔÀ¾¶è¡¢¥Ó¥¸¥Í¥¹³¹¤È¤·¤Æ¿Íµ¤¤Î¹â¤¤¹¾¸ÍËÙ1ÃúÌܤˡ¢»È¤¤¾¡¼ê¤ÎÎɤ¤2³¬·ú¤ÆÂߏÊÞ¤¬Ê罸¤µ¤ì¤Æ¤¤¤Þ¤¹¡£ºÇ´ó¤ê¤Ï»Í¤Ä¶¶Àþ¡ÖÈî¸å¶¶±Ø¡×¤«¤éÅÌÊâ¤ï¤º¤«2ʬ¡£¸æÆ²¶ÚÀþ¡ÖÍä²°¶¶±Ø¡×¤Ø¤âÅÌÊâ·÷Æâ¤Ç¡¢¥ª¥Õ¥£¥¹¥ï¡¼¥«..
Âçºå¡¦Èî¸å¶¶¥¨¥ê¥¢¤Ç¡¢¤É¤³¤«²û¤«¤·¤µ¤ò´¶¤¸¤ë¡Ö¸Å̱²Èʪ·ï¡×¤ò¤´¾Ò²ð¤·¤Þ¤¹¡£¥Ó¥¸¥Í¥¹³¹¤ÎÃæ¤Ë¤Ò¤Ã¤½¤ê¤ÈÐʤàÌÚ¤2³¬·ú¤Æ¤ÎŹÊޤǡ¢µþºåÅÅÅ´ÃæÇ·ÅçÀþ¡ÖÅÏÊÕ¶¶±Ø¡×¤«¤éÅÌÊâ9ʬÂçºå¥á¥È¥í»Í¤Ä¶¶Àþ¡ÖÈî¸å¶¶±Ø¡×¤«¤é..
Âçºå»ÔÀ¾¶è¡¦ð×ËÜÄ®2ÃúÌܤˡ¢´õ¾¯¤Ê¡Ö1ÅïÂߤ·¡×ʪ·ï¤¬Åо줷¤Þ¤·¤¿¡£ËÜÄ®±Ø¤«¤éÅÌÊâ6ʬ¡¢°¤ÇȺ±ؤ«¤éÅÌÊâ7ʬ¤È¥¢¥¯¥»¥¹¤âÎɤ¯¡¢¶áÎ٤ˤÏÎÐˤ«¤Êð׸ø±à¤¬¹¤¬¤ë¿Íµ¤¥¨¥ê¥¢¤Ç¤¹¡£ËÜÄ®¼þÊÕ¤ÇŹÊÞŸ³«¤ò¸¡Æ¤¤·¤Æ¤¤..
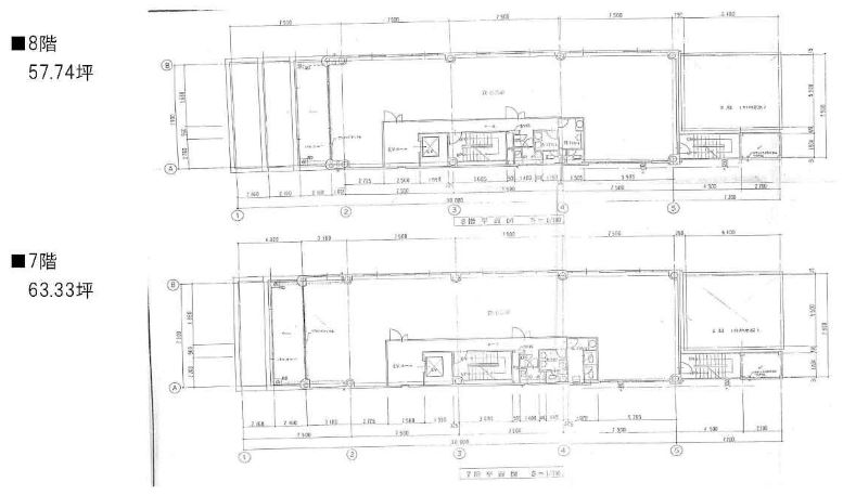
Åö¥µ¥¤¥È¤Îʪ·ï¼è¤ê°·¤¤Å¹ÊޤǤ¹¡£