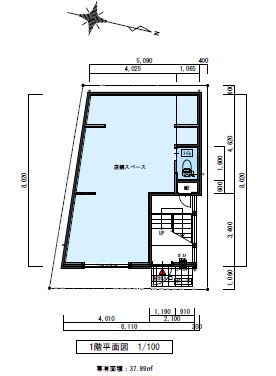
天井高4メートルのデザインオフィス
88万万円
(共:-)
40坪
(専:132.23㎡)
大阪市中央区平野町4丁目
・
淀屋橋駅 徒歩5分
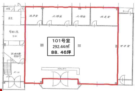
中央区の人気リノベーションシリーズに 空室が出ました。大阪メトロ御堂筋線【淀屋橋駅】徒歩5分大阪メトロ四つ橋線【肥後橋駅】徒歩4分本町にもアクセス良好なビジネスにも最適な立地 四ツ橋筋、御堂..


























