Open

- MENU -

 
検索メニュー

カテゴリから探す

更に絞り込んで検索 ↕ (Click open)

賃料
 
広さ
 
設備

『クリニック・医療・病院』テナント・貸店舗物件一覧

大阪『医療・病院・クリニック』向きの店舗物件・テナントの一覧です。
貸し店舗物件を新着順に表示しています。

気になる物件がある場合は 「お気に入り」ボタンを押して、物件をストックする事が可能です!
本サイト右上の「お気に入り」ボタンよりストックした物件がご確認頂けます!
また、物件の一括お問い合せもできますので、大変便利です!ぜひ、ご活用下さい!

2401件中 289〜312件を表示しています。

並び替え:
 
 

🚉【梅田】駅 徒歩3分

大阪市北区 梅田の店舗・テナント賃貸の画像
大阪市北区 梅田の店舗・テナント賃貸の間取り画像

茶屋町 1階 57坪 稀少な一等地募集

-
57.37坪(189.68㎡)

ご説明不要のターミナル・梅田の中でも、なんと「 茶屋町 」 から!稀少性の高..

🏬  大阪市北区茶屋町
軽飲食 バー アパレル・物販 理容室・美容室 ペットショップ 医療・病院・クリニック エステ・サロン 駅近 大型店舗 超一等地

🚉【心斎橋】駅 徒歩4分

大阪市中央区 心斎橋の店舗・テナント賃貸の画像
大阪市中央区 心斎橋の店舗・テナント賃貸の間取り画像

心斎橋 長堀通沿 ワンフロア 窓多し

-
21.54坪(71.21㎡)

心斎橋駅から徒歩4分、ガラス面が多く明るいワンフロアテナント。立地、広さ、建..

🏬  大阪市中央区東心斎橋1
アパレル・物販 理容室・美容室 医療・病院・クリニック エステ・サロン 隠れ家 駅近 居抜き店舗 超一等地

🚉【淀屋橋】駅 徒歩5分

大阪市中央区 淀屋橋の店舗・テナント賃貸の画像
大阪市中央区 淀屋橋の店舗・テナント賃貸の間取り画像

淀屋橋 天高の開放感

-
28.72坪(94.95㎡)

天井高があり開放的な空間が魅力!おすすめオフィス物件です。店舗利用もご相談く..

🏬  大阪市中央区道修町4
アパレル・物販 医療・病院・クリニック エステ・サロン 隠れ家 駅近

🚉【心斎橋】駅 徒歩5分

大阪市中央区 心斎橋の店舗・テナント賃貸の画像
大阪市中央区 心斎橋の店舗・テナント賃貸の間取り画像

アメ村でマンション店舗はいかが?

-
7.27坪(24.06㎡)

心斎橋の中心地、アメ村でテナントをお考えの方。マンションのワンルームという選..

🏬  大阪市中央区西心斎橋2
アパレル・物販 医療・病院・クリニック エステ・サロン 隠れ家 駅近 居抜き店舗

🚉【心斎橋】駅 徒歩10分

大阪市中央区 心斎橋の店舗・テナント賃貸の画像
大阪市中央区 心斎橋の店舗・テナント賃貸の間取り画像

東心斎橋でマンションタイプはいかが?

-
16.82坪(55.63㎡)

常に人が集まるエリア、心斎橋。キレイめのテナント物件をお探しの方、こちらのマ..

🏬  大阪市中央区東心斎橋1
アパレル・物販 医療・病院・クリニック エステ・サロン 隠れ家

🚉【大阪】駅 徒歩8分

大阪市北区 大阪の店舗・テナント賃貸の画像
大阪市北区 大阪の店舗・テナント賃貸の間取り画像

梅田北ヤード 路面店!

-
51.91坪(171.62㎡)

現在はまだ営業中の物販店様が移転される事になりました。超大手様なので、内装も..

🏬  大阪市北区大淀南1
軽飲食 定食・仕出し アパレル・物販 理容室・美容室 医療・病院・クリニック エステ・サロン 路面店舗

🚉【四ツ橋】駅 徒歩3分

大阪市西区 四ツ橋の店舗・テナント賃貸の画像
大阪市西区 四ツ橋の店舗・テナント賃貸の間取り画像

道路面サインOK 2階 駅近 堀江

-
29坪(95.86㎡)

堀江の駅に近いエリアから、道路に面したガラス面にて視認性良好&コストをグッと..

🏬  大阪市西区北堀江1
アパレル・物販 医療・病院・クリニック エステ・サロン 駅近 居抜き店舗

🚉【四ツ橋】駅 徒歩7分

大阪市西区 四ツ橋の店舗・テナント賃貸の画像
大阪市西区 四ツ橋の店舗・テナント賃貸の間取り画像

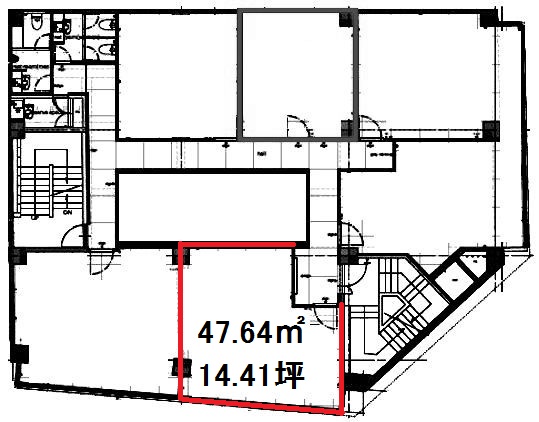
堀江のランドマーク 大通り角地

-
14.41坪(47.64㎡)

先に言ってしまいますと、難点は、エレベーターが無いという事。それ以外は、かな..

🏬  大阪市西区南堀江1
アパレル・物販 医療・病院・クリニック エステ・サロン 居抜き店舗 超一等地

🚉【心斎橋】駅 徒歩3分

大阪市中央区 心斎橋の店舗・テナント賃貸の画像
大阪市中央区 心斎橋の店舗・テナント賃貸の間取り画像

心斎橋デザイナーズオフィス

-
8坪(26㎡)

西心斎橋2丁目 アメ村の三角公園を南に少し下ったところにあるスモールデザイン..

🏬  大阪市中央区西心斎橋2
アパレル・物販 医療・病院・クリニック エステ・サロン 隠れ家 駅近 居抜き店舗 超一等地

🚉【堺筋本町】駅 徒歩4分

大阪市中央区 堺筋本町の店舗・テナント賃貸の画像
大阪市中央区 堺筋本町の店舗・テナント賃貸の間取り画像

北浜駅と堺筋本町駅の間

-
29坪(95.9㎡)

現在まだ飲食店様が営業中。クリニック、物販、飲食店など業種は何でもご相談下さ..

🏬  大阪市中央区瓦町1
軽飲食 定食・仕出し アパレル・物販 医療・病院・クリニック 駅近 路面店舗

🚉【四ツ橋】駅 徒歩1分

大阪市西区 四ツ橋の店舗・テナント賃貸の画像
大阪市西区 四ツ橋の店舗・テナント賃貸の間取り画像

美容室居抜き 北堀江1丁目

-
50坪(165㎡)

北堀江1丁目で、限りなく四ツ橋駅に近い場所で、美容室の居抜き物件。(動く物は..

🏬  大阪市西区北堀江1
アパレル・物販 理容室・美容室 医療・病院・クリニック エステ・サロン 駅近 居抜き店舗 大型店舗 超一等地
 
 

仲介実績事例

店舗を閉店・移転を考えている方へ 閉店の際にどうしていいかわからない、現状のままで引渡しがしたい人へ
飲食店の移転・閉店で悩んだらまずは相談ください!

お役立ちコンテンツ

  • 店舗開業までのフローチャート
    店舗開業までの
    フローチャート
  • 貸店舗探しから契約の流れ
    貸店舗探し
    契約の流れ
 

店舗・テナント開業 お役立ち情報

店舗物件お役立ちナビ 店舗物件Q&A 賃貸の不動産用語集
 
  • 立地の見方
    立地の見方
  • 貸店舗の仲介実績事例
    貸店舗の
    仲介実績事例
 
 

店舗一覧

当サイトの物件取り扱い店舗です。

  • エイブルネットワーク肥後橋うつぼ公園前店 06-6459-4555 9:00~18:00 ※定休日:水曜日/年末年始
  • エイブルネットワーク住之江公園店 06-6657-7090 9:00~18:00 ※定休日:水曜日・年末年始
  • エイブルネットワーク箕面店 072-737-6699 9:00~18:00 ※定休日:水曜日/年末年始
 
Copyright 2018. ©貸店舗Navi. ALL Rights Reserved.
貸店舗・居抜き店舗・テナント物件情報 ページトップへ