Å·°æ¹â4¥á¡¼¥È¥ë¤Î¥Ç¥¶¥¤¥ó¥ª¥Õ¥£¥¹
88ËüËü±ß
¡Ê¶¦¡§-¡Ë
40ÄÚ
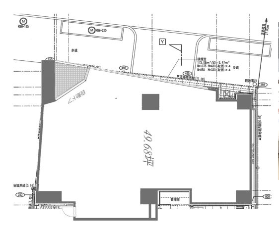
¡ÊÀì¡§132.23㎡¡Ë
Âçºå»ÔÃæ±û¶èÊ¿ÌîÄ®4ÃúÌÜ
¡¦
Íä²°¶¶±Ø ÅÌÊâ5ʬ
Ãæ±û¶è¤Î¿Íµ¤¥ê¥Î¥Ù¡¼¥·¥ç¥ó¥·¥ê¡¼¥º¤Ë ¶õ¼¼¤¬½Ð¤Þ¤·¤¿¡£Âçºå¥á¥È¥í¸æÆ²¶ÚÀþ¡ÚÍä²°¶¶±Ø¡ÛÅÌÊâ5ʬÂçºå¥á¥È¥í»Í¤Ä¶¶Àþ¡ÚÈî¸å¶¶±Ø¡ÛÅÌÊâ4ʬËÜÄ®¤Ë¤â¥¢¥¯¥»¥¹Îɹ¥¤Ê¥Ó¥¸¥Í¥¹¤Ë¤âºÇŬ¤ÊΩÃÏ »Í¥Ä¶¶¶Ú¡¢¸æÆ²..


























