ǯËöǯ»Ï±Ä¶È¤Î¤ªÃΤ餻

Open

- MENU -

 
¸¡º÷¥á¥Ë¥å¡¼

¥«¥Æ¥´¥ê¤«¤éõ¤¹

¡Ø¥¯¥ê¥Ë¥Ã¥¯¡¦°åÎÅ¡¦É±¡¡Ù¥Æ¥Ê¥ó¥È¡¦ÂߏÊÞʪ·ï°ìÍ÷

¹¹¤Ë¹Ê¤ê¹þ¤ó¤Ç¸¡º÷ ↕ (Click open)

ÄÂÎÁ
¡Á
 
¹­¤µ
¡Á
 
ÀßÈ÷

Âçºå¡Ø°åÎÅ¡¦É±¡¡¦¥¯¥ê¥Ë¥Ã¥¯¡Ù¸þ¤­¤ÎŹÊÞʪ·ï¡¦¥Æ¥Ê¥ó¥È¤Î°ìÍ÷¤Ç¤¹¡£
Âߤ·Å¹ÊÞʪ·ï¤ò¿·Ãå½ç¤Ëɽ¼¨¤·¤Æ¤¤¤Þ¤¹¡£

µ¤¤Ë¤Ê¤ëʪ·ï¤¬¤¢¤ë¾ì¹ç¤Ï ¡Ö¤ªµ¤¤ËÆþ¤ê¡×¥Ü¥¿¥ó¤ò²¡¤·¤Æ¡¢Êª·ï¤ò¥¹¥È¥Ã¥¯¤¹¤ë»ö¤¬²Äǽ¤Ç¤¹¡ª
ËÜ¥µ¥¤¥È±¦¾å¤Î¡Ö¤ªµ¤¤ËÆþ¤ê¡×¥Ü¥¿¥ó¤è¤ê¥¹¥È¥Ã¥¯¤·¤¿Êª·ï¤¬¤´³Îǧ失¤Þ¤¹¡ª
¤Þ¤¿¡¢Êª·ï¤Î°ì³ç¤ªÌ䤤¹ç¤»¤â¤Ç¤­¤Þ¤¹¤Î¤Ç¡¢ÂçÊÑÊØÍø¤Ç¤¹¡ª¤¼¤Ò¡¢¤´³èÍѲ¼¤µ¤¤¡ª

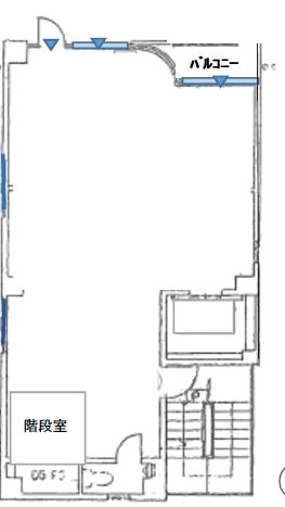
2401·ïÃæ 1345¡Á1368·ï¤òɽ¼¨¤·¤Æ¤¤¤Þ¤¹¡£

ʤÓÂØ¤¨¡§
 
 

🚉¡ÚËÌÉÍ¡Û±Ø ÅÌÊâ5ʬ

Âçºå»ÔÃæ±û¶è ËÌÉͤÎŹÊÞ¡¦¥Æ¥Ê¥ó¥ÈÄÂÂߤβèÁü
Âçºå»ÔÃæ±û¶è ËÌÉͤÎŹÊÞ¡¦¥Æ¥Ê¥ó¥ÈÄÂÂߤδּè¤ê²èÁü

¡ÚËÌÉۡ͡¡¾®È¢¡¡Å¹ÊÞ»ö̳½ê

-±ß
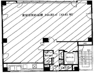
7.57ÄÚ¡Ê25.02㎡¡Ë

ËÌÉÍÅì¹âÎï¶¶ÀìÍѥȥ¤¥ìµëÅò³ÑÉô²°ËÌÉÍ¥¨¥ê¥¢³ÆÀþ¡ÖËÌÉ͡סÖÅ·Ëþ¶¶¡×±ØÅÌÊ⣵ʬ¿Í..

🏬  Âçºå»ÔÃæ±û¶èÅì¹âÎï¶¶
°åÎÅ¡¦É±¡¡¦¥¯¥ê¥Ë¥Ã¥¯ ¥¨¥¹¥Æ¡¦¥µ¥í¥ó ±Ø¶á

🚉¡Ú¿´ºØ¶¶¡Û±Ø ÅÌÊâ3ʬ

Âçºå»ÔÃæ±û¶è ¿´ºØ¶¶¤ÎŹÊÞ¡¦¥Æ¥Ê¥ó¥ÈÄÂÂߤβèÁü
Âçºå»ÔÃæ±û¶è ¿´ºØ¶¶¤ÎŹÊÞ¡¦¥Æ¥Ê¥ó¥ÈÄÂÂߤδּè¤ê²èÁü

ÆîÁ¥¾ì£³ÃúÌÜ¡¡£±³¬Ï©ÌÌŹÊÞ

-±ß
45.84ÄÚ¡Ê-㎡¡Ë

Ãæ±û¶èÆîÁ¥¾ì£³ÃúÌÜ£±³¬45.84ÄÚÁ°¿¦¥´¥ë¥ÕÍÑÉÊŹ¿Íµ¤¤Î£³ÃúÌÜ¥¨¥ê¥¢¸æÆ²¶ÚÀþ..

🏬  Âçºå»ÔÃæ±û¶èÁ¥¾ìÃæ±û3
¥¢¥Ñ¥ì¥ë¡¦ÊªÈÎ ÍýÍÆ¼¼¡¦ÈþÍÆ¼¼ °åÎÅ¡¦É±¡¡¦¥¯¥ê¥Ë¥Ã¥¯ ¥¨¥¹¥Æ¡¦¥µ¥í¥ó ±Ø¶á Â緿ŹÊÞ Ä¶°ìÅùÃÏ Ï©ÌÌŹÊÞ ¥¹¥±¥ë¥È¥óŹÊÞ

🚉¡Ú½»Ç·¹¾¸ø±à¡Û±Ø ÅÌÊâ3ʬ

Âçºå»Ô½»Ç·¹¾¶è ½»Ç·¹¾¸ø±à¤ÎŹÊÞ¡¦¥Æ¥Ê¥ó¥ÈÄÂÂߤβèÁü
Âçºå»Ô½»Ç·¹¾¶è ½»Ç·¹¾¸ø±à¤ÎŹÊÞ¡¦¥Æ¥Ê¥ó¥ÈÄÂÂߤδּè¤ê²èÁü

½»Ç·¹¾¸ø±à¶á¤¯¤Î1³¬Ï©Ì̳ÑÃÏ¡ª

-±ß
20ÄÚ¡Ê-㎡¡Ë

½»Ç·¹¾¸ø±à½»Ç·¹¾¶¥Äú¤Çͭ̾¤Ê½»Ç·¹¾¤Î1³¬Ï©Ì̳ÑÃÏŹÊޤǤ¹¡£¸½ºß¥¹¥±¥ë¥È¥ó¾õÂÖ..

🏬  Âçºå»Ô½»Ç·¹¾¶è¿·ËÌÅç1
·Ú°û¿© Äê¿©¡¦»Å½Ð¤· ¥¢¥Ñ¥ì¥ë¡¦ÊªÈÎ °åÎÅ¡¦É±¡¡¦¥¯¥ê¥Ë¥Ã¥¯ ¥¨¥¹¥Æ¡¦¥µ¥í¥ó ±Ø¶á Ï©ÌÌŹÊÞ ¥¹¥±¥ë¥È¥óŹÊÞ

🚉¡ÚËÜÄ®¡Û±Ø ÅÌÊâ4ʬ

Âçºå»ÔÀ¾¶è ËÜÄ®¤ÎŹÊÞ¡¦¥Æ¥Ê¥ó¥ÈÄÂÂߤβèÁü
Âçºå»ÔÀ¾¶è ËÜÄ®¤ÎŹÊÞ¡¦¥Æ¥Ê¥ó¥ÈÄÂÂߤδּè¤ê²èÁü

´õ¾¯Ëɲ»ÀßÈ÷ƳÆþºÑ¡ªÀ¾¶èΩÇäËÙ¡ª

-±ß
13.43ÄÚ¡Ê44.34㎡¡Ë

Âçºå»ÔÀ¾¶èΩÇäËÙ1ÃúÌÜÃϲ¼Å¹ÊÞ¡ªËɲ»ÀßÈ÷ƳÆþºÑ¤ß¡ª¥è¥¬¡¢¥À¥ó¥¹¶µ¼¼¡¢BAR¡¢..

🏬  Âçºå»ÔÀ¾¶èΩÇäËÙ1
¥¢¥Ñ¥ì¥ë¡¦ÊªÈÎ ÍýÍÆ¼¼¡¦ÈþÍÆ¼¼ °åÎÅ¡¦É±¡¡¦¥¯¥ê¥Ë¥Ã¥¯ ¥¨¥¹¥Æ¡¦¥µ¥í¥ó ±£¤ì²È ±Ø¶á

🚉¡Ú½½»°¡Û±Ø ÅÌÊâ4ʬ

Âçºå»ÔÍäÀî¶è ½½»°¤ÎŹÊÞ¡¦¥Æ¥Ê¥ó¥ÈÄÂÂߤβèÁü
Âçºå»ÔÍäÀî¶è ½½»°¤ÎŹÊÞ¡¦¥Æ¥Ê¥ó¥ÈÄÂÂߤδּè¤ê²èÁü

½½»°¡¡¾¦Å¹³¹¡¡1ÅïÂߤ·

-±ß
44ÄÚ¡Ê-㎡¡Ë

ÍäÀî¶è½½»°ËÜÄ®£±ÃúÌܾ¦Å¹³¹Æâ¤Î¹¥Î©ÃÏŹÊÞ£±³¬¡¦£²³¬½Å°û¿©¤ÏÉԲķڰû¿©¤Ï£Ï£Ë¿Í..

🏬  Âçºå»ÔÍäÀî¶è½½»°ËÜÄ®1
·Ú°û¿© Äê¿©¡¦»Å½Ð¤· ¥Ð¡¼ ¥¢¥Ñ¥ì¥ë¡¦ÊªÈÎ ÍýÍÆ¼¼¡¦ÈþÍÆ¼¼ ¥Ú¥Ã¥È¥·¥ç¥Ã¥× °åÎÅ¡¦É±¡¡¦¥¯¥ê¥Ë¥Ã¥¯ ¥¨¥¹¥Æ¡¦¥µ¥í¥ó ¾¦Å¹³¹ ±Ø¶á Â緿ŹÊÞ Ä¶°ìÅùÃÏ °ìÅïÂߤ· Ï©ÌÌŹÊÞ ¥¹¥±¥ë¥È¥óŹÊÞ

🚉¡Ú°¤ÇÈºÂ¡Û±Ø ÅÌÊâ3ʬ

Âçºå»ÔÀ¾¶è °¤ÇȺ¤ÎŹÊÞ¡¦¥Æ¥Ê¥ó¥ÈÄÂÂß ²èÁü½àÈ÷Ãæ
Âçºå»ÔÀ¾¶è °¤ÇȺ¤ÎŹÊÞ¡¦¥Æ¥Ê¥ó¥ÈÄÂÂߤδּè¤ê²èÁü

À¾¶è¡¡£±³¬¡¡Ï©ÌÌ¡¡°û¿©²Ä

-±ß
45ÄÚ¡Ê146.85㎡¡Ë

À¾¶è¹¾¸ÍËÙ£³ÃúÌܤΣ±³¬Ï©ÌÌŹÊޤΤ´¾Ò²ð¤Ç¤¹¡£¤³¤ì¤Ï¤¹¤°¤Ë·è¤Þ¤Ã¤Æ¤·¤Þ¤¦Êª·ï¤«..

🏬  Âçºå»ÔÀ¾¶è¹¾¸ÍËÙ3
·Ú°û¿© ¥Ð¡¼ ¥¢¥Ñ¥ì¥ë¡¦ÊªÈÎ °åÎÅ¡¦É±¡¡¦¥¯¥ê¥Ë¥Ã¥¯ ¥¨¥¹¥Æ¡¦¥µ¥í¥ó ±£¤ì²È ±Ø¶á ¥¹¥±¥ë¥È¥óŹÊÞ

🚉¡Ú»Í¥Ä¶¶¡Û±Ø ÅÌÊâ1ʬ

Âçºå»ÔÀ¾¶è »Í¥Ä¶¶¤ÎŹÊÞ¡¦¥Æ¥Ê¥ó¥ÈÄÂÂߤβèÁü
Âçºå»ÔÀ¾¶è »Í¥Ä¶¶¤ÎŹÊÞ¡¦¥Æ¥Ê¥ó¥ÈÄÂÂߤδּè¤ê²èÁü

ËÌËÙ¹¾¡¡»Í¥Ä¶¶±è¤¤¡¡»ö̳½ê

-±ß
25.57ÄÚ¡Ê84.53㎡¡Ë

 ËÌËÙ¹¾£±ÃúÌܻͥͶ¶Ú¤ËÌ̤¹¤ëŹÊÞ¡¦»ö̳½ê¤Î¤´¾Ò²ð¤Ç¤¹¡£ºÇ´ó¤ê±Ø»Í..

🏬  Âçºå»ÔÀ¾¶èËÌËÙ¹¾1
¥¢¥Ñ¥ì¥ë¡¦ÊªÈÎ °åÎÅ¡¦É±¡¡¦¥¯¥ê¥Ë¥Ã¥¯ ±Ø¶á ¥¹¥±¥ë¥È¥óŹÊÞ

🚉¡Ú¶Ì½Ð¡Û±Ø ÅÌÊâ5ʬ

Âçºå»Ô½»µÈ¶è ¶Ì½Ð¤ÎŹÊÞ¡¦¥Æ¥Ê¥ó¥ÈÄÂÂߤβèÁü
Âçºå»Ô½»µÈ¶è ¶Ì½Ð¤ÎŹÊÞ¡¦¥Æ¥Ê¥ó¥ÈÄÂÂߤδּè¤ê²èÁü

¡ÚÄëÄÍ»³¡Û¡¡£±³¬Ï©ÌÌ¡¡Å¹ÊÞ»ö̳½ê

-±ß
22.13ÄÚ¡Ê73.15㎡¡Ë

½»µÈ¶èÄëÄÍ»³Æî¹ÁÄ̤êÂçÄ̤꣱³¬Ï©ÌÌŹÊÞ»ö̳½ê¡ÚÄëÄÍ»³¡ÛÃϲ¼Å´ »Í¤Ä¶¶Àþ¡Ö¶Ì½Ð..

🏬  Âçºå»Ô½»µÈ¶èÅìÊ´ÉÍ1
·Ú°û¿© ¥¢¥Ñ¥ì¥ë¡¦ÊªÈÎ ÍýÍÆ¼¼¡¦ÈþÍÆ¼¼ °åÎÅ¡¦É±¡¡¦¥¯¥ê¥Ë¥Ã¥¯ ¥¨¥¹¥Æ¡¦¥µ¥í¥ó ±Ø¶á Ï©ÌÌŹÊÞ

🚉¡Ú¿´ºØ¶¶¡Û±Ø ÅÌÊâ3ʬ

Âçºå»ÔÃæ±û¶è ¿´ºØ¶¶¤ÎŹÊÞ¡¦¥Æ¥Ê¥ó¥ÈÄÂÂߤβèÁü
Âçºå»ÔÃæ±û¶è ¿´ºØ¶¶¤ÎŹÊÞ¡¦¥Æ¥Ê¥ó¥ÈÄÂÂߤδּè¤ê²èÁü

¥Í¥¤¥ë¥µ¥í¥óÀׯîÁ¥¾ì£´ÃúÌÜ¡ª

-±ß
46.39ÄÚ¡Ê153.37㎡¡Ë

Âçºå»ÔÃæ±û¶èÆîÁ¥¾ì£´ÃúÌÜ¡ªÂçºå¤Î¥Õ¥¡¥Ã¥·¥ç¥ó¤Îȯ¿®ÃÏ¡ª¸½ºß¥Í¥¤¥ë¥µ¥í¥ó¤ÎÆâÁõ..

🏬  Âçºå»ÔÃæ±û¶èÆîËÜÄ®4
¥¢¥Ñ¥ì¥ë¡¦ÊªÈÎ °åÎÅ¡¦É±¡¡¦¥¯¥ê¥Ë¥Ã¥¯ ¥¨¥¹¥Æ¡¦¥µ¥í¥ó ±Ø¶á

🚉¡Ú¿´ºØ¶¶¡Û±Ø ÅÌÊâ3ʬ

Âçºå»ÔÃæ±û¶è ¿´ºØ¶¶¤ÎŹÊÞ¡¦¥Æ¥Ê¥ó¥ÈÄÂÂߤβèÁü
Âçºå»ÔÃæ±û¶è ¿´ºØ¶¶¤ÎŹÊÞ¡¦¥Æ¥Ê¥ó¥ÈÄÂÂߤδּè¤ê²èÁü

ÆîÁ¥¾ì¡¡¥Ç¥¶¥¤¥Ê¡¼¥º¡¡£±ÅïÂߤ·

-±ß
95ÄÚ¡Ê316㎡¡Ë

Ãæ±û¶èÆîÁ¥¾ì£³ÃúÌÜ´õ¾¯¤Ê¥Ç¥¶¥¤¥Ê¡¼¥º¥Ó¥ë¤Î£±ÅïÂߤ·Ê罸½Ð¤Þ¤·¤¿¡ª¡ªÃ桹ÊѤï¤Ã..

🏬  Âçºå»ÔÃæ±û¶èÆîÁ¥¾ì3
·Ú°û¿© ½Å°û¿© Äê¿©¡¦»Å½Ð¤· ¥Ð¡¼ ¥¢¥Ñ¥ì¥ë¡¦ÊªÈÎ ÍýÍÆ¼¼¡¦ÈþÍÆ¼¼ ¥Ú¥Ã¥È¥·¥ç¥Ã¥× °åÎÅ¡¦É±¡¡¦¥¯¥ê¥Ë¥Ã¥¯ ¥¨¥¹¥Æ¡¦¥µ¥í¥ó ±Ø¶á µïÈ´¤­Å¹ÊÞ Â緿ŹÊÞ Ä¶°ìÅùÃÏ °ìÅïÂߤ· ¥¹¥±¥ë¥È¥óŹÊÞ

🚉¡ÚÊÛÅ·Ä®¡Û±Ø ÅÌÊâ6ʬ

Âçºå»Ô¹Á¶è ÊÛÅ·Ä®¤ÎŹÊÞ¡¦¥Æ¥Ê¥ó¥ÈÄÂÂߤβèÁü
Âçºå»Ô¹Á¶è ÊÛÅ·Ä®¤ÎŹÊÞ¡¦¥Æ¥Ê¥ó¥ÈÄÂÂߤδּè¤ê²èÁü

¿·Ãۥǥ¶¥¤¥Ê¡¼¥º¤Î1³¬Ï©ÌÌŹ

-±ß
15.7ÄÚ¡Ê-㎡¡Ë

ÊÛÅ·Ä®¶á¤¯¤Î¿·Ãۥǥ¶¥¤¥Ê¡¼¥º¥Þ¥ó¥·¥ç¥ó¤Î1³¬Ï©ÌÌŹÊޤϤ¤¤«¤¬¤Ç¤·¤ç¤¦¤«¡©£±£µ..

🏬  Âçºå»Ô¹Á¶è°ëÏ©2
·Ú°û¿© Äê¿©¡¦»Å½Ð¤· ¥¢¥Ñ¥ì¥ë¡¦ÊªÈÎ ÍýÍÆ¼¼¡¦ÈþÍÆ¼¼ °åÎÅ¡¦É±¡¡¦¥¯¥ê¥Ë¥Ã¥¯ ¥¨¥¹¥Æ¡¦¥µ¥í¥ó Ï©ÌÌŹÊÞ ¥¹¥±¥ë¥È¥óŹÊÞ

🚉¡Ú»Í¥Ä¶¶¡Û±Ø ÅÌÊâ5ʬ

Âçºå»ÔÀ¾¶è »Í¥Ä¶¶¤ÎŹÊÞ¡¦¥Æ¥Ê¥ó¥ÈÄÂÂߤβèÁü
Âçºå»ÔÀ¾¶è »Í¥Ä¶¶¤ÎŹÊÞ¡¦¥Æ¥Ê¥ó¥ÈÄÂÂߤδּè¤ê²èÁü

ÆîËÙ¹¾£±ÃúÌÜ¡¡Å¹ÊÞ¡¡»ö̳½ê

-±ß
31.84ÄÚ¡Ê105.27㎡¡Ë

ÆîËÙ¹¾£±ÃúÌܤΣ±³¬Å¹ÊÞ»ö̳½ê¤Î¤´¾Ò²ð¤Ç¤¹¡£»ö̳½ê¤È¤·¤Æ¤â¡¢Å¹ÊޤȤ·¤Æ¤âÍøÍѲÄ..

🏬  Âçºå»ÔÀ¾¶èÆîËÙ¹¾1
¥¢¥Ñ¥ì¥ë¡¦ÊªÈÎ ÍýÍÆ¼¼¡¦ÈþÍÆ¼¼ °åÎÅ¡¦É±¡¡¦¥¯¥ê¥Ë¥Ã¥¯ ±£¤ì²È ±Ø¶á ͰìÅùÃÏ ¥¹¥±¥ë¥È¥óŹÊÞ

🚉¡ÚËÜÄ®¡Û±Ø ÅÌÊâ3ʬ

Âçºå»ÔÀ¾¶è ËÜÄ®¤ÎŹÊÞ¡¦¥Æ¥Ê¥ó¥ÈÄÂÂߤβèÁü
Âçºå»ÔÀ¾¶è ËÜÄ®¤ÎŹÊÞ¡¦¥Æ¥Ê¥ó¥ÈÄÂÂߤδּè¤ê²èÁü

Ķ¿Íµ¤¿ÙËÜÄ®£±ÃúÌÜÏ©ÌÌŹÊÞ¡ª

-±ß
10.89ÄÚ¡Ê36㎡¡Ë

À¾¶è¤Ç¿Íµ¤¤Î¥ê¥Î¥Ù¡¼¥·¥ç¥ó¥Ó¥ë¡ª¤Ê¤ó¤È»Ä¤ê°ì¼¼Ï©ÌÌŹ¤Î¶õ¤­È¯À¸¡ª¡ª£³£¶­Ö£±£°..

🏬  Âçºå»ÔÀ¾¶èð×ËÜÄ®1
¥¢¥Ñ¥ì¥ë¡¦ÊªÈÎ ¥Ú¥Ã¥È¥·¥ç¥Ã¥× °åÎÅ¡¦É±¡¡¦¥¯¥ê¥Ë¥Ã¥¯ ¥¨¥¹¥Æ¡¦¥µ¥í¥ó ±Ø¶á

🚉¡Ú¿´ºØ¶¶¡Û±Ø ÅÌÊâ3ʬ

Âçºå»ÔÃæ±û¶è ¿´ºØ¶¶¤ÎŹÊÞ¡¦¥Æ¥Ê¥ó¥ÈÄÂÂߤβèÁü
Âçºå»ÔÃæ±û¶è ¿´ºØ¶¶¤ÎŹÊÞ¡¦¥Æ¥Ê¥ó¥ÈÄÂÂߤδּè¤ê²èÁü

¡ÚÆîÁ¥¾ì£³¡Û¡¡°ìÅïÂߥӥë

-±ß
95.59ÄÚ¡Ê316㎡¡Ë

Ãæ±û¶èÆîÁ¥¾ì£³³Ñ°ìÅïÂߥӥëÆîÁ¥¾ì£³Ãϲ¼Å´¸æÆ²¶ÚÀþ¡¦Ä¹ËÙÄḫÎÐÃÏÀþ¡Ö¿´ºØ¶¶¡×±Ø..

🏬  Âçºå»ÔÃæ±û¶èÆîÁ¥¾ì3
·Ú°û¿© Äê¿©¡¦»Å½Ð¤· ¥Ð¡¼ ¥¢¥Ñ¥ì¥ë¡¦ÊªÈÎ ÍýÍÆ¼¼¡¦ÈþÍÆ¼¼ ¥Ú¥Ã¥È¥·¥ç¥Ã¥× °åÎÅ¡¦É±¡¡¦¥¯¥ê¥Ë¥Ã¥¯ ¥¨¥¹¥Æ¡¦¥µ¥í¥ó ¾¦Å¹³¹ ±Ø¶á µïÈ´¤­Å¹ÊÞ Â緿ŹÊÞ Ä¶°ìÅùÃÏ °ìÅïÂߤ· Ï©ÌÌŹÊÞ ¥¹¥±¥ë¥È¥óŹÊÞ

🚉¡Ú¿´ºØ¶¶¡Û±Ø ÅÌÊâ5ʬ

Âçºå»ÔÃæ±û¶è ¿´ºØ¶¶¤ÎŹÊÞ¡¦¥Æ¥Ê¥ó¥ÈÄÂÂߤβèÁü
Âçºå»ÔÃæ±û¶è ¿´ºØ¶¶¤ÎŹÊÞ¡¦¥Æ¥Ê¥ó¥ÈÄÂÂߤδּè¤ê²èÁü

¿´ºØ¶¶¾¦Å¹³¹Æâ¡ª£´£¸ÄÚ¡ª

-±ß
48.65ÄÚ¡Ê160.54㎡¡Ë

¿´ºØ¶¶¾¦Å¹³¹Æâ¤ËÌ̤¹¤ë¹¥Î©ÃÏÂçºå¤Ç¤âÍ­¿ô¤ÎÄ̹ÔÎÌ¡ª¶áÎ٥ƥʥó¥ÈHERMES¡¢..

🏬  Âçºå»ÔÃæ±û¶èÇîϫĮ3
·Ú°û¿© ¥¢¥Ñ¥ì¥ë¡¦ÊªÈÎ ÍýÍÆ¼¼¡¦ÈþÍÆ¼¼ °åÎÅ¡¦É±¡¡¦¥¯¥ê¥Ë¥Ã¥¯ ¥¨¥¹¥Æ¡¦¥µ¥í¥ó ¾¦Å¹³¹ ±Ø¶á ¥¹¥±¥ë¥È¥óŹÊÞ

🚉¡Ú»Í¥Ä¶¶¡Û±Ø ÅÌÊâ3ʬ

Âçºå»ÔÀ¾¶è »Í¥Ä¶¶¤ÎŹÊÞ¡¦¥Æ¥Ê¥ó¥ÈÄÂÂߤβèÁü
Âçºå»ÔÀ¾¶è »Í¥Ä¶¶¤ÎŹÊÞ¡¦¥Æ¥Ê¥ó¥ÈÄÂÂߤδּè¤ê²èÁü

ËÌËÙ¹¾¡¡£±³¬¡¡Å¹ÊÞ

-±ß
39.5ÄÚ¡Ê130.61㎡¡Ë

ËÌËÙ¹¾£±ÃúÌÜ£±³¬Å¹ÊÞ»ö̳½ê¤Î¤´¾Ò²ð¤Ç¤¹¡£Ãϲ¼Å´»Í¤Ä¶¶Àþ»Í¥Ä¶¶±ØÅÌÊ⣲ʬ39...

🏬  Âçºå»ÔÀ¾¶èËÌËÙ¹¾1
·Ú°û¿© ¥¢¥Ñ¥ì¥ë¡¦ÊªÈÎ °åÎÅ¡¦É±¡¡¦¥¯¥ê¥Ë¥Ã¥¯ ±Ø¶á ͰìÅùÃÏ
 
 

Ãç²ð¼ÂÀÓ»öÎã

ŹÊÞ¤òÊÄŹ¡¦°Üž¤ò¹Í¤¨¤Æ¤¤¤ëÊý¤Ø ÊÄŹ¤ÎºÝ¤Ë¤É¤¦¤·¤Æ¤¤¤¤¤«¤ï¤«¤é¤Ê¤¤¡¢¸½¾õ¤Î¤Þ¤Þ¤Ç°úÅϤ·¤¬¤·¤¿¤¤¿Í¤Ø
°û¿©Å¹¤Î°Üž¡¦ÊÄŹ¤ÇǺ¤ó¤À¤é¤Þ¤º¤ÏÁêÃ̤¯¤À¤µ¤¤¡ª

¤ªÌòΩ¤Á¥³¥ó¥Æ¥ó¥Ä

  • ŹÊÞ³«¶È¤Þ¤Ç¤Î¥Õ¥í¡¼¥Á¥ã¡¼¥È
    ŹÊÞ³«¶È¤Þ¤Ç¤Î
    ¥Õ¥í¡¼¥Á¥ã¡¼¥È
  • ÂߏÊÞõ¤·¤«¤é·ÀÌó¤Îή¤ì
    ÂߏÊÞõ¤·
    ·ÀÌó¤Îή¤ì
 

ŹÊÞ¡¦¥Æ¥Ê¥ó¥È³«¶È ¤ªÌòΩ¤Á¾ðÊó

ŹÊÞʪ·ï¤ªÌòΩ¤Á¥Ê¥Ó ŹÊÞʪ·ïQ&A ÄÂÂߤÎÉÔÆ°»ºÍѸ콸
 
  • ΩÃϤθ«Êý
    ΩÃϤθ«Êý
  • ÂߏÊÞ¤ÎÃç²ð¼ÂÀÓ»öÎã
    ÂߏÊÞ¤Î
    Ãç²ð¼ÂÀÓ»öÎã
 
 

ŹÊÞ°ìÍ÷

Åö¥µ¥¤¥È¤Îʪ·ï¼è¤ê°·¤¤Å¹ÊޤǤ¹¡£

  • BRUNOÉÔÆ°»º³ô¼°²ñ¼Ò ¥¨¥¤¥Ö¥ë¥Í¥Ã¥È¥ï¡¼¥¯Èî¸å¶¶¤¦¤Ä¤Ü¸ø±àÁ°Å¹ 06-6459-4555
  • BRUNOÉÔÆ°»º³ô¼°²ñ¼Ò ¥¨¥¤¥Ö¥ë¥Í¥Ã¥È¥ï¡¼¥¯½»Ç·¹¾¸ø±àŹ 06-6657-7090
 
Copyright 2018. ©ÂߏÊÞNavi. ALL Rights Reserved.
ÂߏÊÞ¡¦µïÈ´¤­Å¹ÊÞ¡¦¥Æ¥Ê¥ó¥Èʪ·ï¾ðÊó ¥Ú¡¼¥¸¥È¥Ã¥×¤Ø