-
大阪メトロ御堂筋線『梅田駅』の賃貸 詳細
この物件情報は【】に作成されたものです。




























| 所在階数 | − | 権利金 | − |
|---|---|---|---|
| カテゴリー | 軽飲食/レストラン・カフェ物販スケルトン美容系/エステ・ネイル/まつエク | ||
| 備考 | − | ||
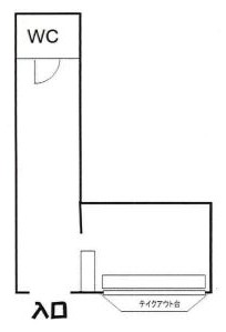
| 所在地 | 大阪市北区 堂山町 googleマップでみる |
|---|---|
| 交通 | 大阪メトロ御堂筋線 「梅田駅」徒歩 5分 |
| 物件構造 | RC造 | 物件階層 | 1階建 |
|---|---|---|---|
| 物件種別 | 店舗 | 完成年月 | − |
| 物件設備 | トイレ/専用設備 | ||
| 物件番号 | UT2-92272 |
|---|---|
| サイト名 | 貸店舗Navi |
06-6657-7090
所在地:大阪府大阪市住之江区南加賀屋2-8-25セジュール24 1階
アクセス:大阪メトロ住之江公園駅4番出口新なにわ筋を渡ってスグ
似た物件を探したい、最新の物件情報を知りたい、希望の物件条件で見つけて欲しい、などお気軽にお問い合わせ下さい。