-
大阪メトロ谷町線『谷町六丁目駅』の賃貸 詳細
この物件情報は【】に作成されたものです。




























| 所在階数 | 1階 | 権利金 | − |
|---|---|---|---|
| カテゴリー | 軽飲食/レストラン・カフェ重飲食/焼肉・中華美容室物販スケルトン美容系/エステ・ネイル/まつエク教室アパレル | ||
| 備考 | − | ||
| 所在地 | 大阪市中央区 安堂寺町2 googleマップでみる |
|---|---|
| 交通 | 大阪メトロ谷町線 「谷町六丁目駅」徒歩 2分 |
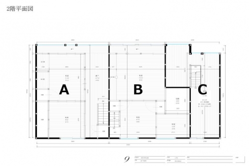
| 物件構造 | 木造 | 物件階層 | 2階建 |
|---|---|---|---|
| 物件種別 | 店舗 | 完成年月 | 1929年 |
| 物件設備 | 24時間利用可看板スペース | ||
| 物件番号 | UT2-113372 |
|---|---|
| サイト名 | 貸店舗Navi |
06-6657-7090
所在地:大阪府大阪市住之江区南加賀屋2-8-25セジュール24 1階
アクセス:大阪メトロ住之江公園駅4番出口新なにわ筋を渡ってスグ
似た物件を探したい、最新の物件情報を知りたい、希望の物件条件で見つけて欲しい、などお気軽にお問い合わせ下さい。